Сервис

8 (800) 300 61 76
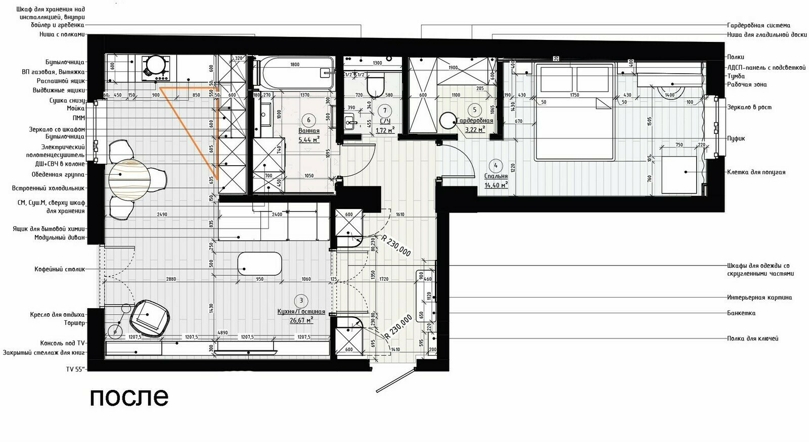
Фотография: Планировки в стиле , Современный, Эклектика, Квартира, Проект дня, Сталинка, 2 комнаты, 40-60 метров, Уфа, Джапанди, Юрий Воробьев – фото на INMYROOM
Закрыть
Marina Timokhina
4,4
– 44 отзыва
Гамма
Другие фото в этом проекте
Сохранить
Подобрать товары
Закрыть
Информация