Сервис

8 (800) 300 61 76
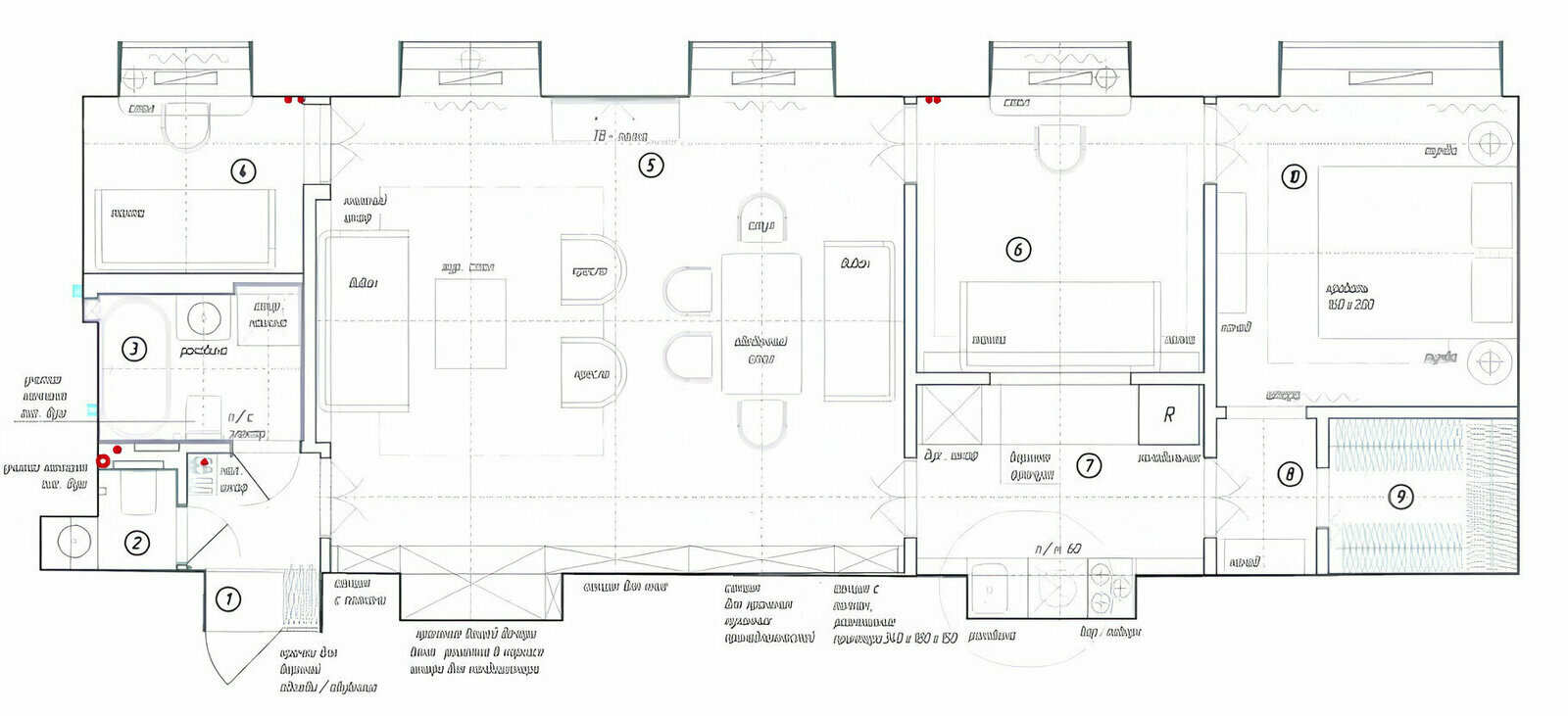
Фотография:  в стиле , Кухня и столовая, Квартира, Интерьер комнат, Интерьерный стиль, Дизайн интерьера, Переделка, маленькая кухня, как оформить интерьер кухни, интерьер кухни, интерьер четырехкомнатной квартиры, Ольга Кондратова, 60-90 метров, ремонт в доходном доме, кухня в доходном доме, доходный дом – фото на INMYROOM
Закрыть
Софья Устинова
Журналист
4,0
– 47 отзывов
Гамма
Сохранить
Закрыть
Информация