Сервис

8 (800) 300 61 76
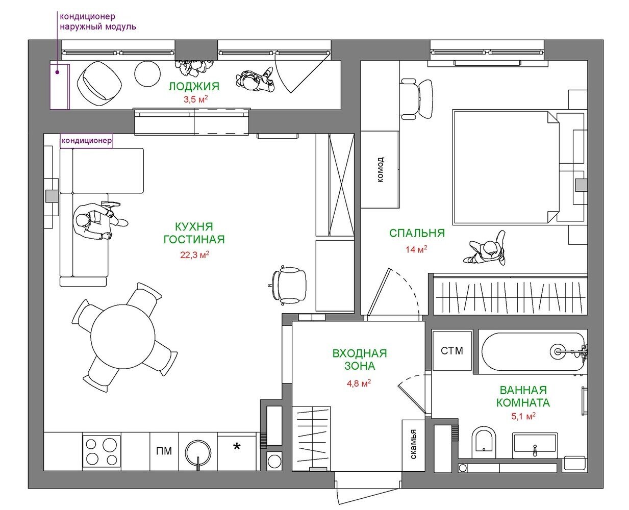
Фотография: Планировки в стиле , Квартира, Проект дня, Санкт-Петербург, 40-60 метров, минимализм, современный, Екатерина Бубнова – фото на INMYROOM
Закрыть
Marina Timokhina
Дизайн
4,7
– 9 отзывов
Гамма
Другие фото в этом проекте
Сохранить
Подобрать товары
Закрыть
Информация