
Закрыть
Marina Timokhina
Фото из статьи
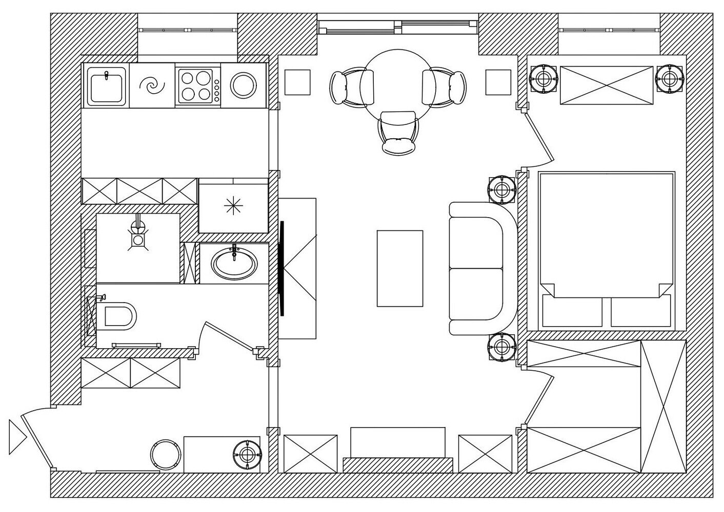
Как дизайнер оформил двушку 39 м² в хрущевкеДизайн
Дмитрий Якубов, RICCO INTERNO
4,7
– 227 отзывов
Гамма
Другие фото в этом проекте
Сохранить
Подобрать товары
Закрыть
Сервис

Разрешить использование cookies?
Мы используем cookies для удобства и персонализации. Подробности в Политике конфиденциальности. Согласие можно отозвать в любой момент.