
Закрыть
Marina Timokhina
Дизайн
Maurizio D’Orsa, Елизавета Шмиткова
4,7
– 11 отзывов
Гамма
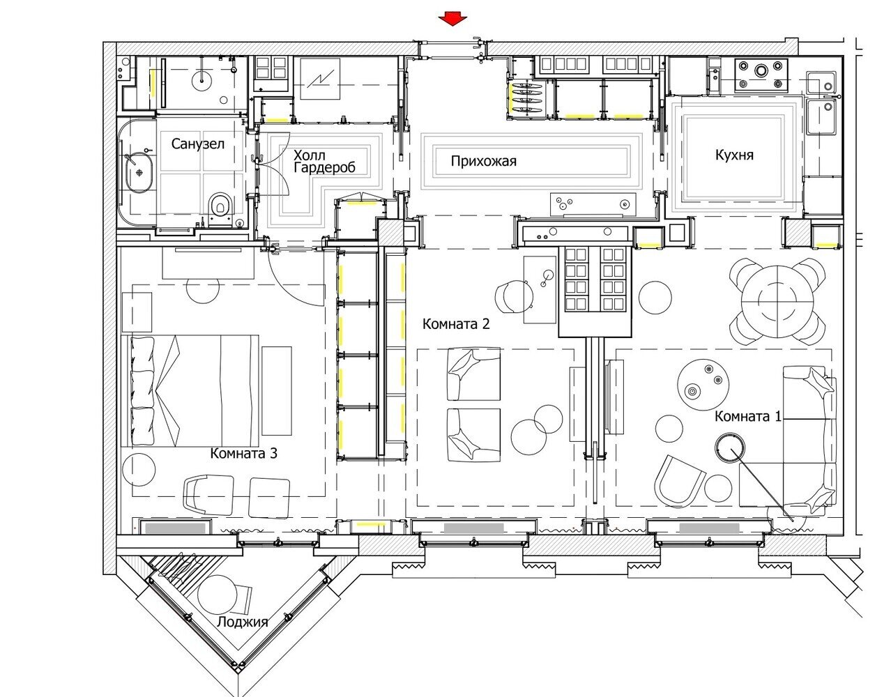
Другие фото в этом проекте
Сохранить
Подобрать товары
Закрыть
Сервис

Разрешить использование cookies?
Мы используем cookies для удобства и персонализации. Подробности в Политике конфиденциальности. Согласие можно отозвать в любой момент.