
Закрыть
Olga Lopteva
Журналист
Фото из статьи
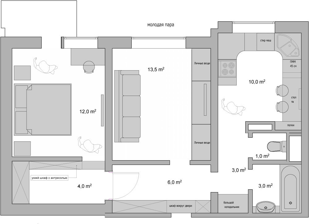
Перепланировка недели: новые идеи обустройства двушкиГамма
Другие фото в этом проекте
Сохранить
Подобрать товары
Закрыть

Разрешить использование cookies?
Мы используем cookies для удобства и персонализации. Подробности в Политике конфиденциальности. Согласие можно отозвать в любой момент.