Сервис

8 (800) 300 61 76
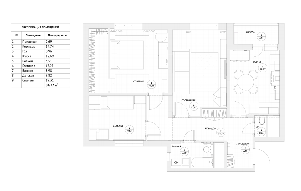
Фотография: Планировки в стиле , Скандинавский, Квартира, Проект недели, Московская область, новостройка, Алена Юдина, Надежда Киреева, Монолитный дом, Путилково, 3 комнаты, 60-90 метров – фото на INMYROOM
Закрыть
Adelia Khmelevskaya
Менеджмент в индустрии
4,8
– 22 отзыва
Гамма
Другие фото в этом проекте
Сохранить
Подобрать товары
Закрыть
Информация