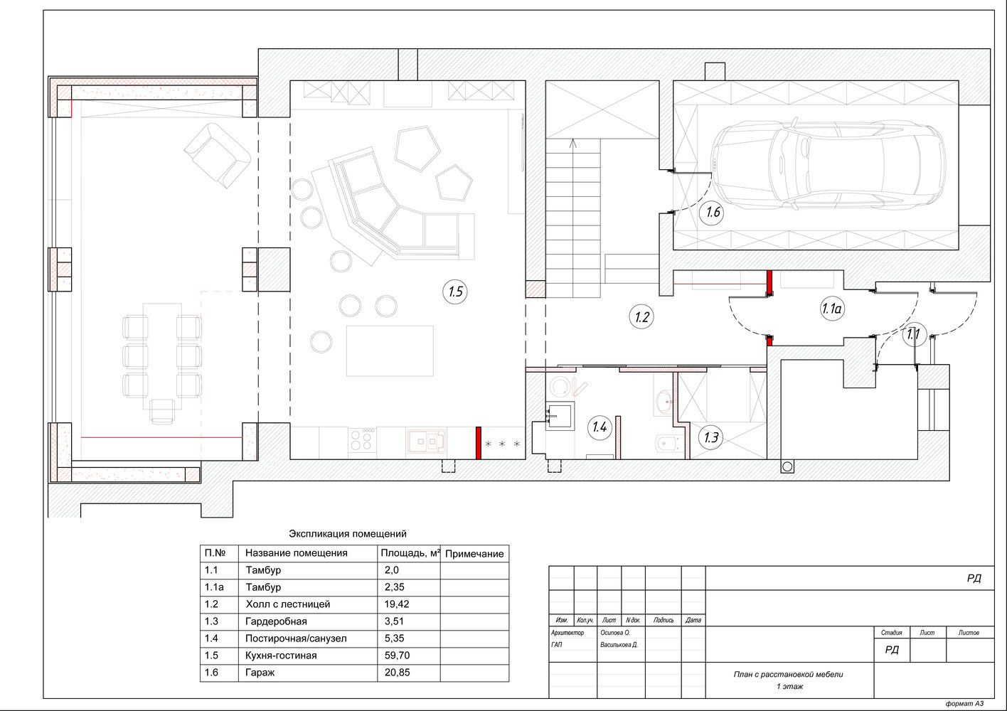
План первого этажа
Закрыть
Сохранить
Подобрать товары
Закрыть
Информация