Сервис

8 (800) 300 61 76
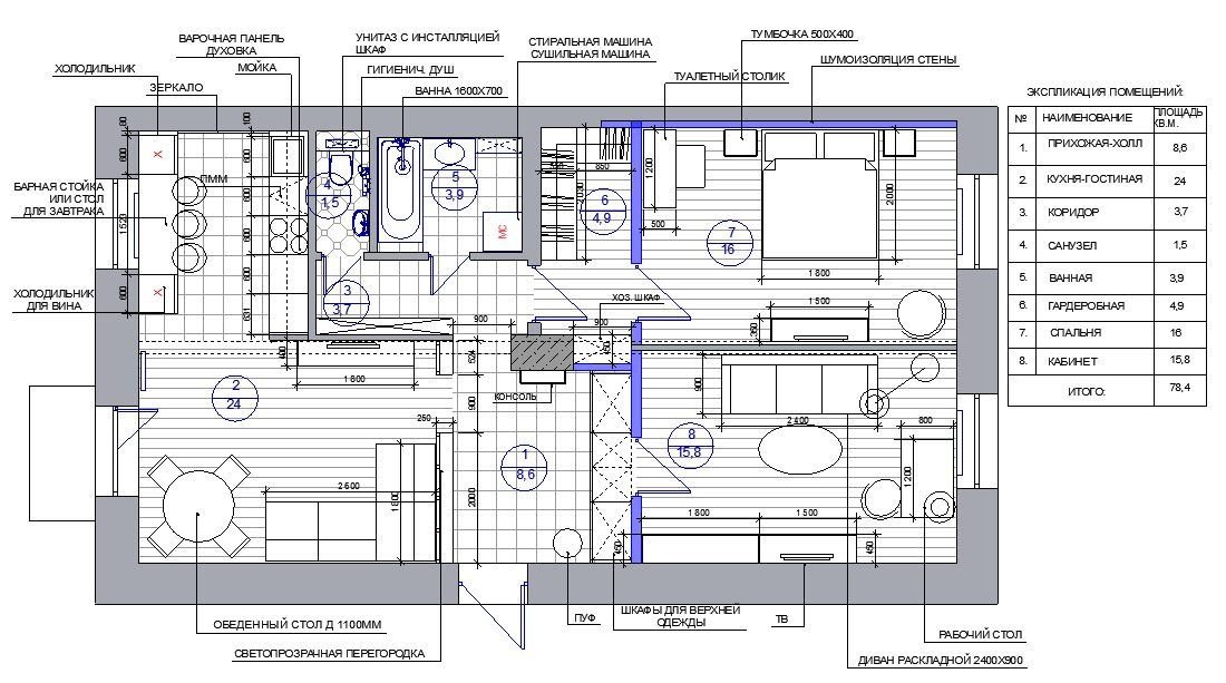
План с расстановкой мебели
Закрыть
Информация