Сервис

8 (800) 300 61 76
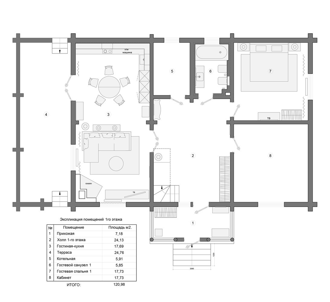
Фотография: Планировки в стиле , Прованс и Кантри, Дом, Проект недели, Подмосковье, Московская область, 4 и больше, Более 90 метров, Новоглаголево, Евгений Жданов, Студия GP Project, Павел Годяев – фото на INMYROOM
Закрыть
Mariya Stepanova
Журналист
4,6
– 68 отзывов
Гамма
Другие фото в этом проекте
Сохранить
Подобрать товары
Закрыть
Информация