
Закрыть
Анастасия Дубровина
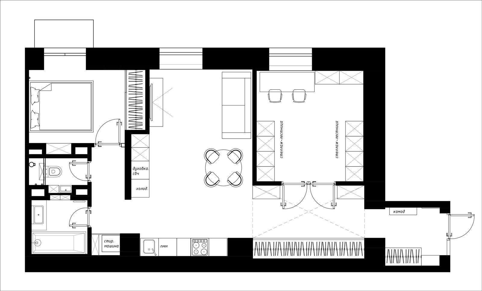
Фото из статьи
Перепланировка двушки для большой семьи: 2 идеи4,2
– 19 отзывов
Гамма
Другие фото в этом проекте
Сохранить
Подобрать товары
Закрыть
Сервис

Разрешить использование cookies?
Мы используем cookies для удобства и персонализации. Подробности в Политике конфиденциальности. Согласие можно отозвать в любой момент.