
Закрыть
Татьяна Климова
Журналист
Фото из статьи
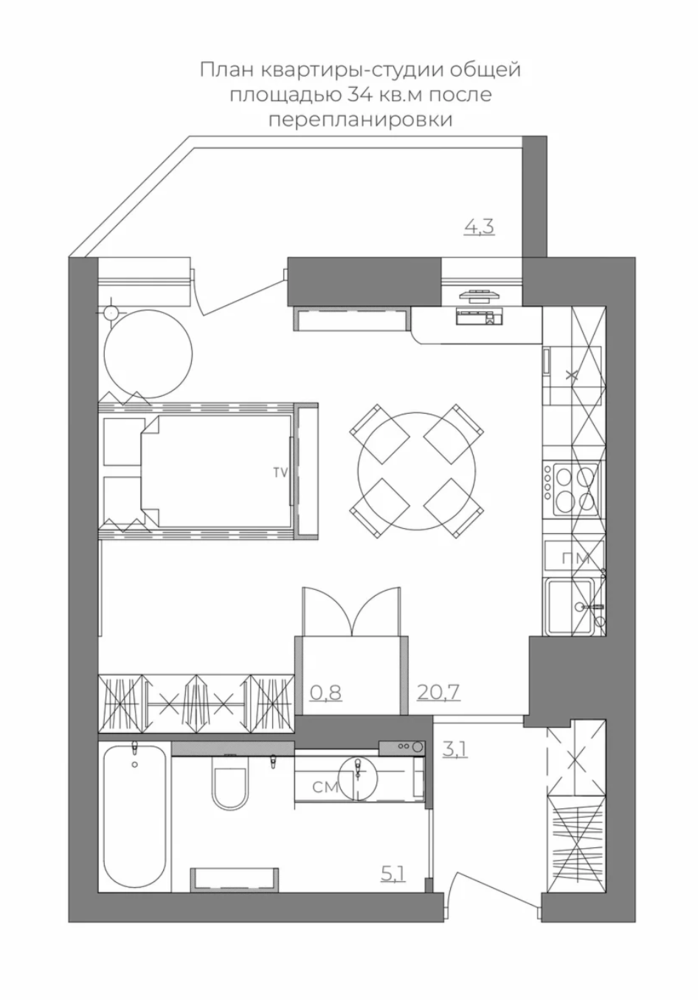
Дизайнер оформила студию 34 м² для себя: получился маленький пентхаус с мебелью из фанеры4,5
– 39 отзывов
Гамма
Сохранить
Закрыть
Сервис

Разрешить использование cookies?
Мы используем cookies для удобства и персонализации. Подробности в Политике конфиденциальности. Согласие можно отозвать в любой момент.