Сервис

8 (831) 215 40 41
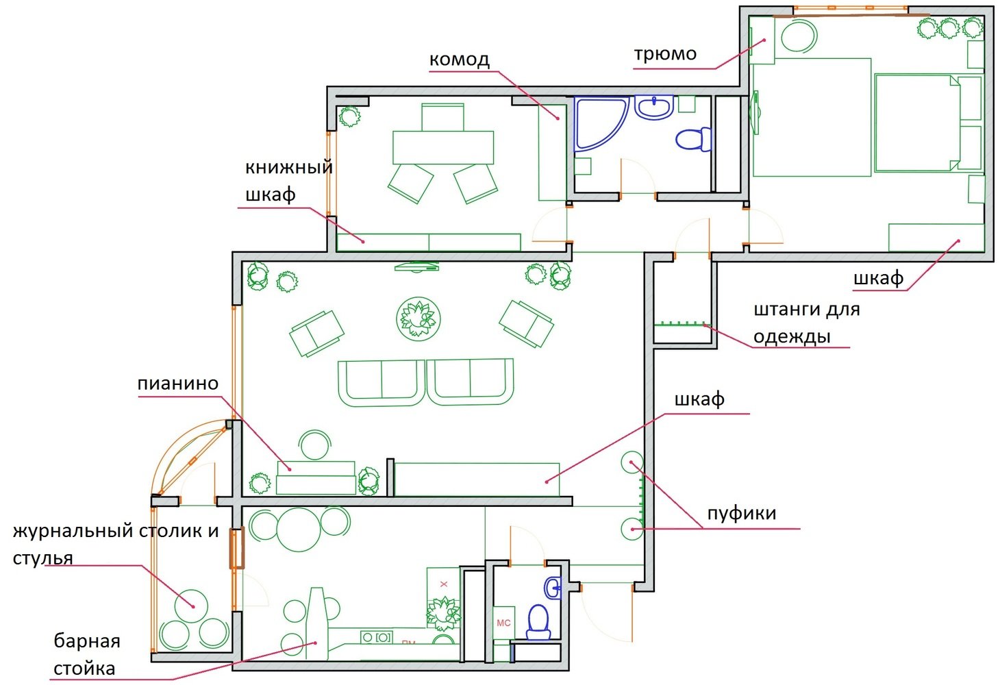
Фотография: Планировки в стиле , Квартира, Перепланировка, Валентина Донская, П44т, энциклопедия_перепланировка – фото на INMYROOM
Закрыть
Olga Lopteva
Журналист
4,6
– 5 отзывов
Гамма
Другие фото в этом проекте
Сохранить
Подобрать товары
Закрыть
Информация