Сервис

8 (800) 300 61 76
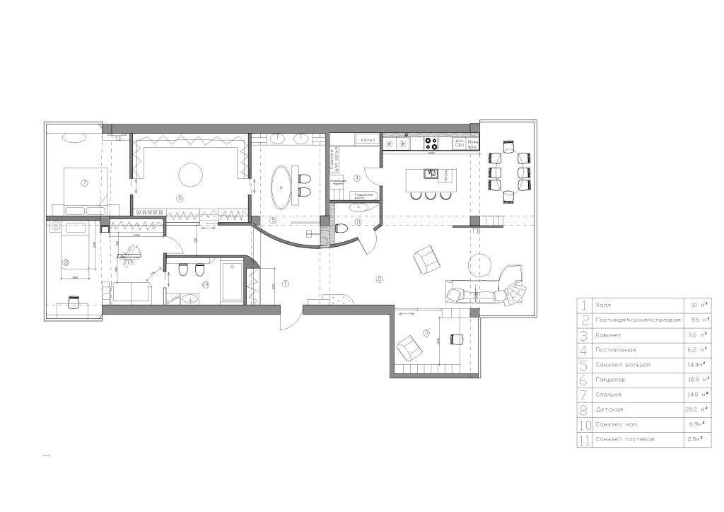
Фотография:  в стиле , Современный, Квартира, Россия, Планировки, Декор, Белый, Минимализм, Проект недели, Бежевый, Синий, Голубой, Бирюзовый, Сочи, GraniStudio – фото на INMYROOM
Закрыть
Olga Lopteva
Журналист
4,0
– 2 отзыва
Гамма
Другие фото в этом проекте
Сохранить
Закрыть
Информация