
Закрыть
Marina Timokhina
Фото из статьи
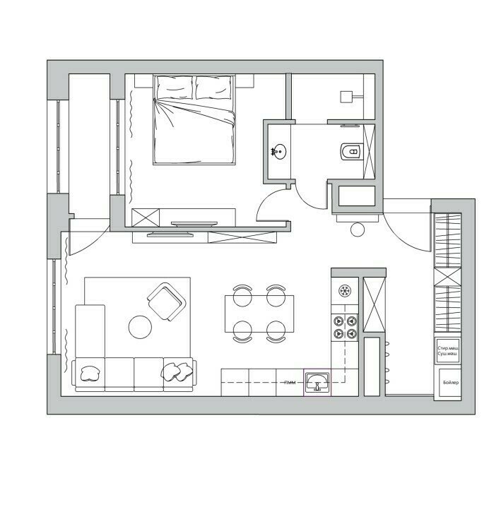
Брутальная евродвушка 50 м² с авторскими арт-объектамиДизайн
Артем Шакуров
4,7
– 3 отзыва
Гамма
Другие фото в этом проекте
Сохранить
Подобрать товары
Закрыть
Сервис

Разрешить использование cookies?
Мы используем cookies для удобства и персонализации. Подробности в Политике конфиденциальности. Согласие можно отозвать в любой момент.