Сервис

8 (800) 300 61 76
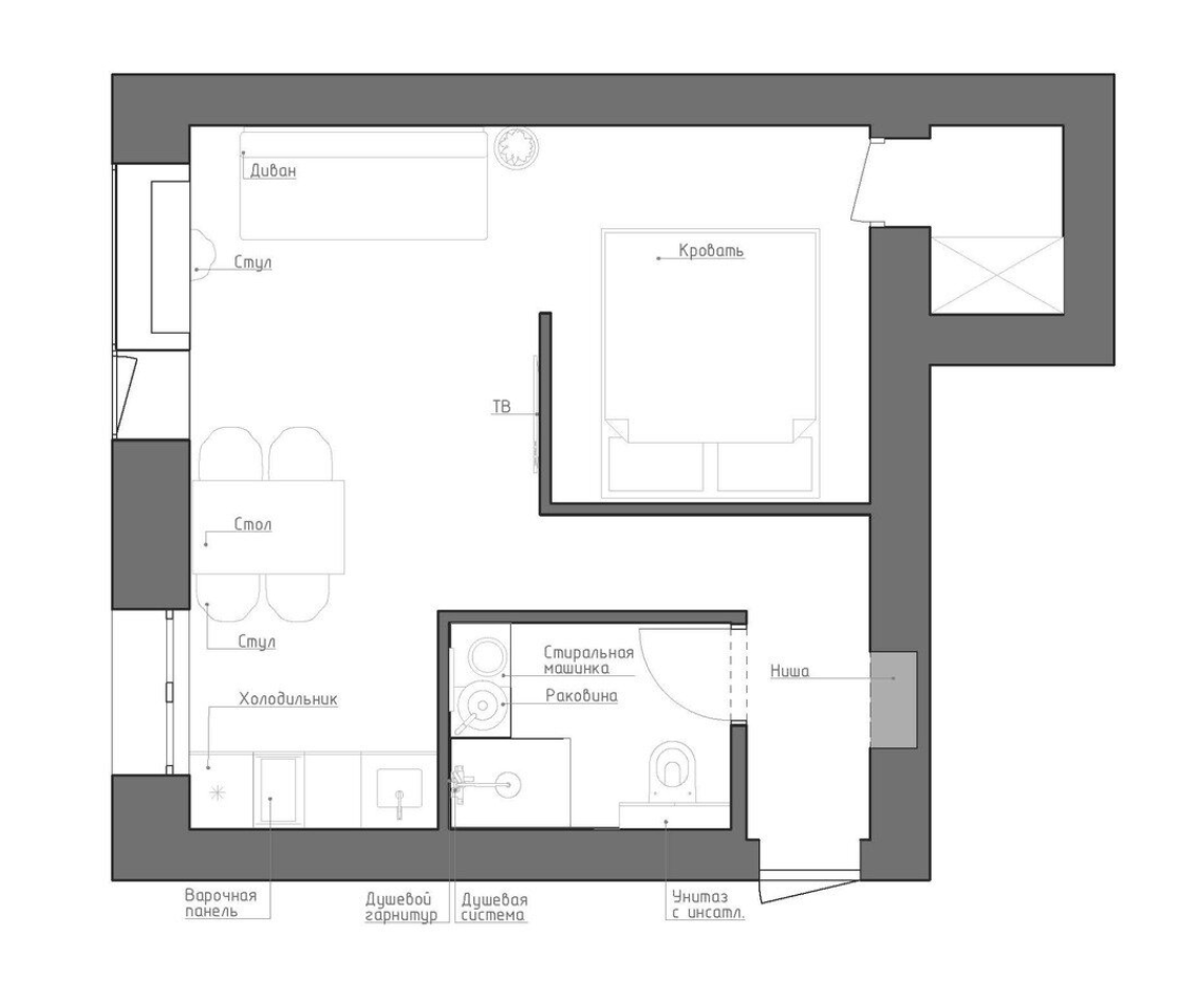
Фотография:  в стиле , Прихожая, Советы – фото на INMYROOM
Закрыть
Marina Timokhina
3,8
– 11 отзывов
Гамма
Сохранить
Закрыть
Информация