Сервис

8 (800) 300 61 76
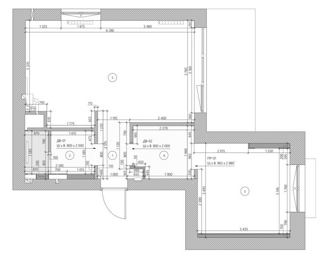
Фотография: Планировки в стиле , Современный, Квартира, Проект дня, 2 комнаты, 40-60 метров, Светлогорск, Студия Forum, Дарья Малоросьянова – фото на INMYROOM
Закрыть
Marina Timokhina
4,8
– 13 отзывов
Гамма
Другие фото в этом проекте
Сохранить
Подобрать товары
Закрыть
Информация