Вкратце
Дизайнеру предстояло оформить интерьер в духе старой Москвы для девушки и вписать в него живопись из коллекции хозяйки. А еще — найти достаточно места для хранения и обустроить душевую зону. Первую задачу помогли решить сложные, глубокие тона отделки и микс классической и современной мебели. Вторую — небольшая перепланировка.
Подробности
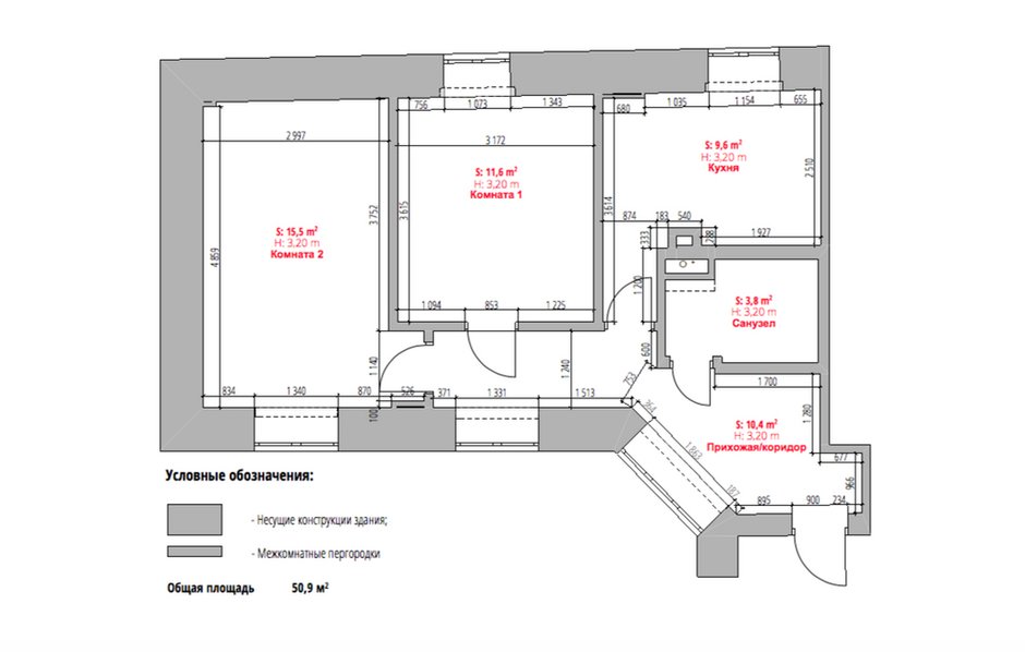
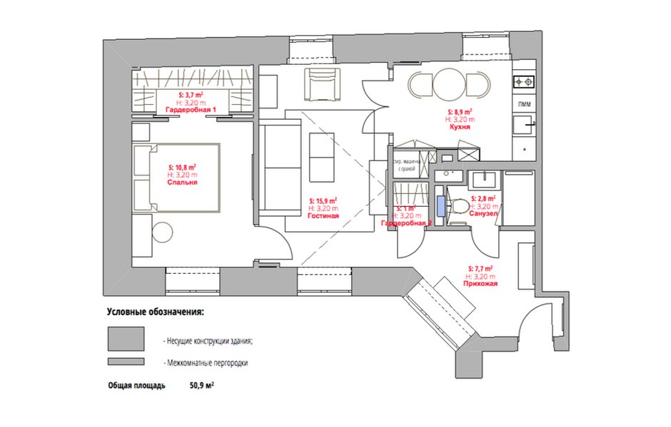
Главные особенности планировки — помещения неправильной формы и скошенная стена в прихожей. Она делает очень узким проход в основную часть квартиры. Исходную планировку немного изменили. Вход в кухню сделали из комнаты — поскольку плита газовая, кухню отделили высокими распашными дверями. Заказчица не принимает ванну, а после расширения прохода санузел получился маленьким — меньше трех квадратов, — поэтому вместо ванной поставили душевую кабину.
Чтобы согласовать устройство душевой, строители смонтировали поддон с ревизионным люком доступа в облегченной конструкции — за счет этого уменьшается нагрузка на перекрытие. Там, где изначально располагался коридор, разместили встроенный шкаф со стиральной машиной и небольшой гардероб. Основную же гардеробную сделали в спальне.
Колористическое решение продумали так, чтобы создать удачный фон для арт-объектов. Спальню и большую гардеробную окрасили в глубокий серо-оливковый, а кухню, гостиную, прихожую — в слегка пыльный серый оттенок. Ванную оформили на контрасте черного и теплого пыльно-розового.
На пол уложили инженерную доску — наиболее практичный вариант среди натуральных деревянных покрытий. Стены во всех помещениях отдали под покраску — выбрали краску Little Greene. В санузле для отделки стен использовали плитку и краску — и сохранили баланс между практичностью и ощущением уюта.
Роль хранения взяли на себя гардеробные со шведскими системами Elfa. Несколько встроенных шкафов на кухне изготовили на заказ в столярной мастерской. В санузле нишу с полками для хранения закрыли зеркальными дверцами — они зрительно увеличивают пространство.
Большую часть мебели и освещения заказали в США, но поставщик внезапно обанкротился, и пришлось искать аналоги в России. Всю мягкую и встраиваемую мебель изготовили по эскизам дизайнера в Москве — она оказалась дешевле американских аналогов. Большую акцентную люстру в гостиной сделали на заказ в Петербурге, туалетный столик и прикроватную тумбу — во Франции.
Роль основного декора взяли на себя произведения живописи. А электрический щиток в прихожей закрывает панно из разных типов металла, выполненное по эскизам и чертежам дизайнера.
Планировка
Бренды, представленные в проекте
Холл
Отделка: краска, Little Greene; плитка, TopCerМебель: банкетка, ROOMA Design & Furniture; обувница, Kavelio
Текстиль: на заказ
Декор: панно на заказ; картина из собрания заказчика
Освещение: люстра, Currey and Company
Гостиная
Отделка: краска, Little GreeneНапольное покрытие: на заказ
Мебель: консоль и витрина, Hooker Furniture
Текстиль: на заказ
Освещение: на заказ
Спальня
Отделка: краска, Little GreeneНапольное покрытие: на заказ
Мебель: пуф, ROOMA Design & Furniture; туалетный столик и прикроватная тумба, Grange
Текстиль: на заказ
Освещение: люстра и бра, Gramercy Home
Кухня
Отделка: краска, Little GreeneНапольное покрытие: на заказ
Мебель: стулья, Interlude Home; стол, Arteriors Home
Гарнитур: на заказ
Бытовая техника: Smeg
Смесители: Blanco
Освещение: бра, Arteriors Home; люстра, Hinkley Lighting
Ванная комната
Отделка: краска, Little Greene; плитка, FAP CeramicheНапольное покрытие: плитка, FAP Ceramiche
Мебель: тумба, Caprigo
Санфаянс: унитаз подвесной, Villeroy & Boch
Смесители: Nicolazzi
Освещение: люстра и бра, Elstead Lighting






















