Вкратце
Если метров мало, нужно использовать их с умом. В работе над проектом студии площадью 27 квадратов дизайнеры сделали ставку на встроенную мебель по индивидуальным чертежам. В итоге полноценную двуспальную кровать спрятали в подиуме, а телевизор встроили в шкаф.
Подробности
Заказчица — молодая женщина — не планирует жить в этой квартире постоянно: это будет место, где можно отдохнуть, расслабиться и провести время с близкими. При этом на весьма скромной площади хотелось разместить максимум нужных вещей.
Дизайнеры Яна Грошева и Диана Бганова начали работу над проектом с планировки. Разбили маленькое помещение на зоны: сделали полноценную кухню с небольшой барной стойкой для утреннего завтрака и чаепития, а на подиуме разместили зону отдыха с диваном и кофейным столиком. Кстати, подиум с секретом: из него выкатывается полноценная двуспальная кровать.
Напротив спроектировали шкаф с местами для хранения и открытыми нижними полками для книг или импровизированного камина. Шкаф спроектировали специально для этого проекта, чтобы вмонтировать в него телевизор.
«Хотелось максимально интегрировать в интерьер не только системы хранения, но и технику. Телевизор Samsung QLED TV 65Q9 F — настоящая находка, он помог нам решить сразу две задачи, — рассказывают дизайнеры. — Во-первых, благодаря плоскому экрану телевизор встает вплотную к стене и подключается к электросети через прозрачный оптический кабель. Это очень удобно, так как мы планируем поставить его в нишу в шкафу и каждый сантиметр на счету.
Во-вторых, заказчица сможет смотреть фильмы, сериалы и передачи с максимально четкой картинкой. У ТВ есть технология Q Contrast Elite: экран не отсвечивает, даже если в комнате яркое освещение».
Кстати, маленькая площадь — не повод отказываться от телевизора с большой диагональю. Смотреть кино на экране размером 65 дюймов комфортно с любого расстояния за счет высокого качества изображения.
Отделка в квартире довольно простая: стены оклеили флизелиновыми обоями под покраску и украсили декоративными молдингами. В интерьер балкона отлично вписались яркие обои с пальмами. На полу — ламинат и испанская плитка.
В ванной сделали душевую зону: ее оформили керамической плиткой и керамогранитом под мрамор.
Так как заказчица не живет в квартире постоянно, то и мест для хранения не нужно было много. Хватило одного гардероба для верхней одежды в прихожей и шкафа в комнате. Все корпусные изделия будут изготовлены в местных мастерских.
Цветовая палитра нейтральная: использовали преимущественно розовые, бежевые, светло-серые оттенки. Их нужно было чем-то разбавить. Так пришла идея выделить кабинет на лоджии насыщенным болотным цветом. А в жилой зоне сделали ставку на декор: картина профессионального художника, декоративные подушки, римские шторы с кантом добавили контрастных пятен и стали завершающим штрихом в создании интерьера.
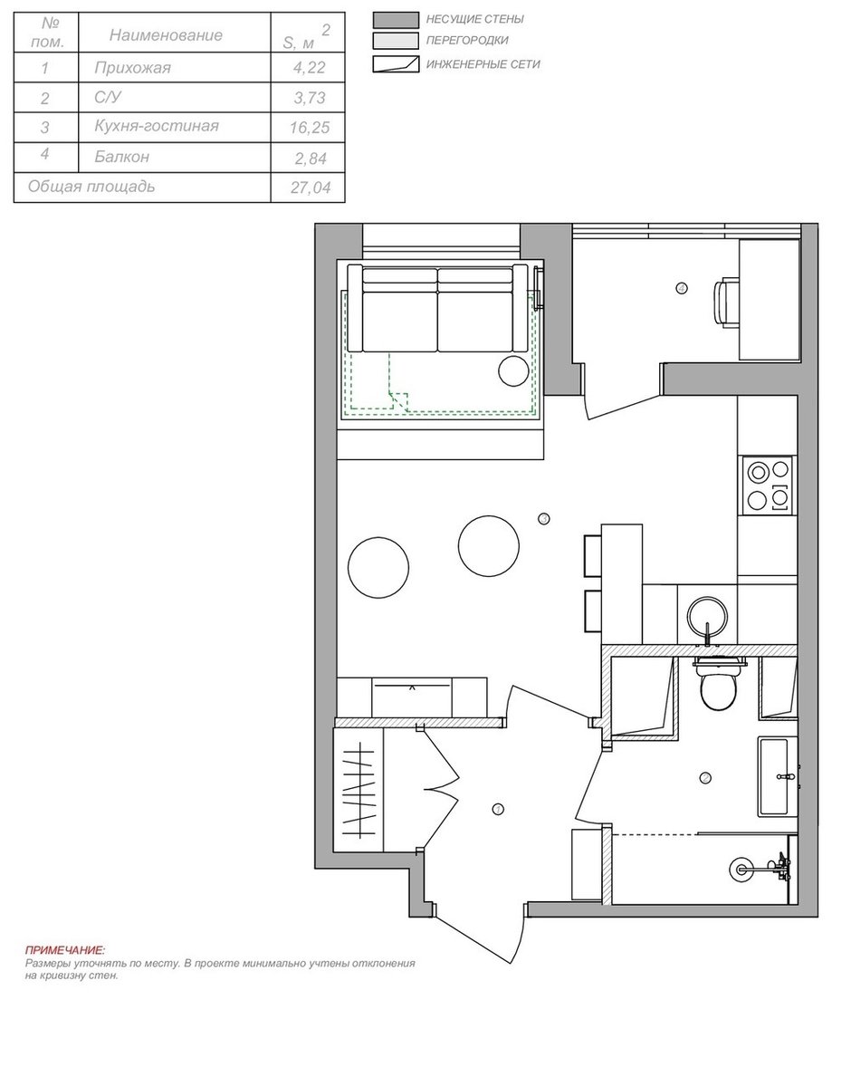
Планировка
Бренды, представленные в проекте
Отделка: краска, Little Greenе
Напольное покрытие: плитка, Equipe
Освещение: подвесная люстра, Arte Lamp Bruno
Отделка: краска, Little Greenе
Напольное покрытие: ламинат, Quick-Step
Мебель: диван, SK Design
Освещение: встраиваемые точечные светильники, Denkirs
Техника: телевизор, Samsung QLED TV 65Q9F
Кухня
Отделка: плитка, Vives
Напольное покрытие: ламинат, Quick-Step
Мебель: барные стулья, Charles Ghost
Гарнитур: Bianta
Освещение: встраиваемые точечные светильники, Denkirs
Ванная комната
Отделка: плитка, Equipe; Kerama Marazzi; Vives
Хотите, чтобы ваш проект был опубликован на INMYROOM? Присылайте фотографии интерьера на wow@inmyroom.ru















