Вкратце
Интерьер этой квартиры дизайнер создавала для пары из Парижа: они живут в России по 2–3 месяца в год, но даже в это время хотят чувствовать себя как дома. Ремонт нужен был быстрый, без больших затрат, стильный и функциональный — ведь в квартире хозяйка планировала не только отдыхать, но и работать.
Интерьер получился лаконичный, но с интересными акцентами. Не меняя планировку, в проект удалось вписать две изолированные спальные зоны в каждой комнате, кабинет и даже оставить много места для хранения. Одной из главных помощниц в реализации стала мебель ИКЕА.
Подробности
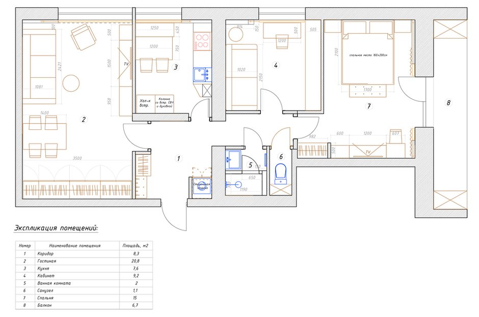
Масштабную перепланировку заказчики делать не хотели: им важно было сохранить две изолированные спальни и отдельную кухню. К тому же не хотелось затягивать ремонтные работы надолго. Единственную небольшую перепланировку позволили в коридоре — немного сдвинули стену в сторону гостиной и освободили место для ниши под шкаф в прихожей. Также в коридоре сделали встроенный шкаф для стиральной машины и хранения чистящих средств.
В отделке использовали простые и практичные решения. Квартиру оформили в светлых холодных оттенках. Их дополнили теплыми оттенками дерева и яркими вставками металла. Графичности и выразительности добавили вставки черного цвета в светильниках, декоре, орнаменте на плитке.
Для пола на кухне и в коридоре выбрали керамогранит под белый мрамор. Для стен почти везде — краску. Только для кабинета и акцентной стены в спальне в изголовье кровати выбрали более «теплое» покрытие — обои. В гостиной для отделки одной из стен использовали молдинги: вертикальные рамы зрительно увеличили высоту потолка. В спальне этот прием с молдингами повторили, цвет для них выбрали контрастный белый.
При выборе мебели важно было, чтобы она была недорогой и ее можно было купить в Москве. Во многом выбор пал на ИКЕА: шкаф в гостиной, витрины и тумба под ТВ, туалетный столик и стеллаж в спальне. На заказ изготавливали только кухонный гарнитур, библиотеку в кабинете и встроенные шкафы. С особым вниманием дизайнер подошла к организации систем хранения. В гостиной во всю стену разместили шкаф ИКЕА Пакс, для хранения в спальне выбрали встроенный шкаф с раздвижными дверцами и стеллажи для книг. В кабинете для хозяйки сделали библиотеку во всю стену.
«Поскольку заказчики живут в Париже, в эту квартиру мне хотелось привнести нотки французского интерьера, для которого характерны спокойная цветовая гамма, изящная простота, благородство и чувство меры», — рассказала дизайнер. В итоге у дизайнера получилось создать такой интерьер, в который легко впишутся и предметы современного искусства, и декор с историей. Поэтому заказчики легко смогут обживать интерьер и наполнять его любимым декором.
Планировка
Хотите, чтобы ваш проект был опубликован на INMYROOM? Присылайте фотографии интерьера на wow@inmyroom.ru
Бренды, представленные в проекте
Холл
Отделка: краска, Little Greene
Напольное покрытие: керамогранит, ITALON
Мебель: шкаф, полка и тумба, все — «ОГОГО Обстановочка»
Освещение: Branching Bubbles 3 Long Nickel by Lindsey Adelman
Гостиная
Отделка: краска, Little Greene; молдинги, Orac Decor
Напольное покрытие: ламинат, QUICK-STEP
Мебель: диван и стол, «ОГОГО Обстановочка»; шкаф, тумба под ТВ, витрины, все — ИКЕА; стулья — Томас; E-Style; журнальный столик, Zara Home
Ковер: ИКЕА
Освещение: люстра, MW-Light; бра, Odeon Light; споты, Lightstar
Спальня
Отделка: краска, Little Greene; обои, Eco
Напольное покрытие: ламинат, QUICK-STEP
Мебель: кровать, Anrie Moretti; тумбочки прикроватные, «ОГОГО Обстановочка»; стул, Victoria Ghost; тумба под ТВ, стеллаж, туалетный столик, все — ИКЕА; зеркало, Zara Home
Освещение: люстра, Bogates; споты, Lightstar; настольные лампы, Arti Lampadari
Кабинет
Отделка: обои, Borastapeter; краска, Little Greene
Напольное покрытие: ламинат, QUICK-STEP
Мебель: стол, Lulu Store; стул, DANTONE HOME; диван, «ОГОГО Обстановочка»
Текстиль: римская штора, Harlequin
Освещение: люстра, Eurosvet; бра, Globo; настольная лампа, Odeon Light
Кухня
Отделка: краска, Little Greene; плитка на фартуке, Aparici
Напольное покрытие: керамогранит, ITALON
Мебель: стол, Lulu Store; стулья, Cosmorelax
Гарнитур: кухонный гарнитур, МИКСОН
Освещение: подвесной светильник, Paulmann; споты, Citilux
Ванная комната
Отделка: плитка, ITALON
Напольное покрытие: плитка, Vives Ceramica
Мебель: тумба с раковиной, ASTRA FORM
Смесители: душевая стойка, Grohe; смеситель, D&K
Освещение: бра, Nowodvorski; встроенные светильники, Lightstar




















