Вкратце
Владелец квартиры, молодой холостяк, попросил Юлию Тельнову сделать из небольшой студии удобное жилье. Обязательным условием было наличие вместительных систем хранения, полноценной кровати и кухни со всей необходимой техникой: заказчик любит готовить и удивлять кулинарными шедеврами своих гостей.
Подробности
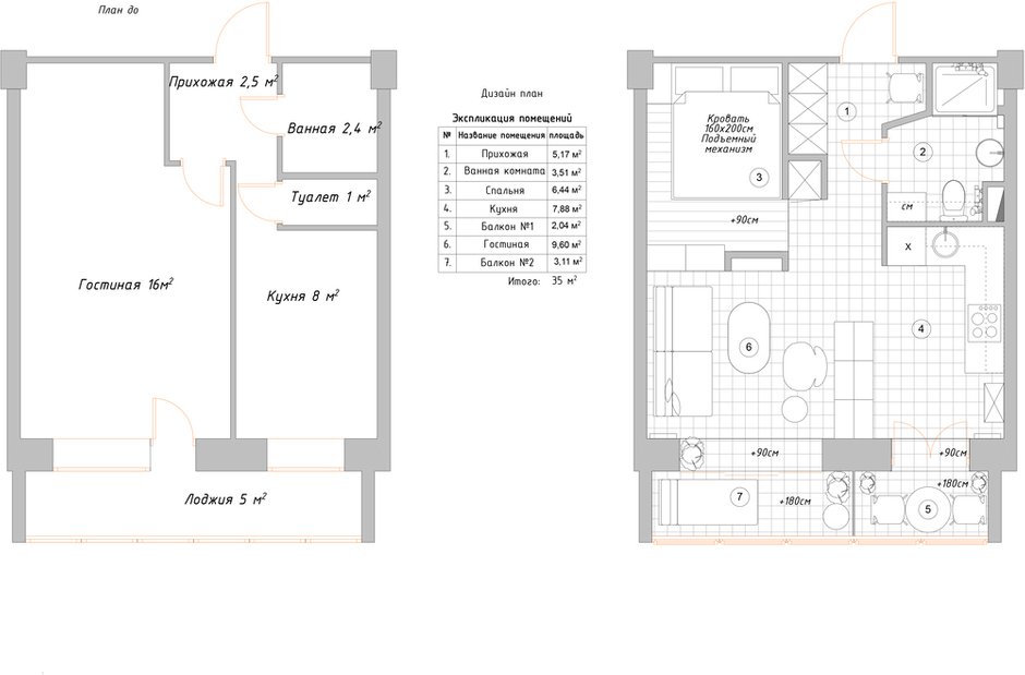
Чтобы учесть все пожелания и создать максимально просторное и функциональное пространство, дизайнер сделала санузел совмещенным, объединила гостиную с кухней и присоединила лоджию, на которую вынесли обеденную зону.
Изначальную высоту потолков во всей квартире опустили на 7 см для встраиваемого точечного освещения, а в зоне спальни еще ниже — на 25 см, — чтобы сделать дополнительную вентиляцию.
Ключевой деталью проекта является шкаф, разделяющий кухню и гостиную: его центральная часть декорирована металлической сеткой для создания воздушного эффекта.
«Со стороны гостиной шкаф служит консолью, комодом и стеллажом, — рассказывает Юлия, — а со стороны кухни он полностью функционален — есть даже винный холодильник».
При присоединении лоджии радиаторы заменили на вертикальные дизайнерские модели, а окна — на панорамные раздвижные перегородки: когда гостей много, пространство гостиной легко можно увеличить.
Декоративное покрытие на стене, имитирующее состаренную покраску, наносилось художником вручную. «Диван на таком брутальном фоне смотрится еще более мягким и уютным», — поясняет дизайнер.
Один из немногих цветовых акцентов в квартире — синий стеллаж в гостиной, в котором владелец может разместить особо дорогие ему предметы, книги или аксессуары.
Основное же хранение предполагается в гардеробе в спальне, в нише под кроватью, оборудованной специальным подъемным механизмом, и в прихожей, где встроены два практически незаметных шкафа без ручек: их наличие выдают только контрастные контуры.
Пол в квартире, кроме зоны спальни, выложен керамической плиткой с мелким геометрическим рисунком — такой прием визуально увеличивает пространство и помогает поддерживать общую концепцию всех зон.
«Текстура плитки имитирует ткань, поэтому плитка не создает ощущения „холодного“ материала, — объясняет дизайнер. — К тому же система теплого пола помогает поддерживать температуру на комфортном уровне».
Центральное место в ванной занимает напольная раковина, а большое зеркало за ней визуально расширяет пространство.
«Так как все системы хранения удалось расположить вне санузла, раковина не имеет тумбы и служит в основном для эстетического удовольствия», — говорит Юлия.
Планировка
Бренды, представленные в проекте
Гостиная
Напольное покрытие: керамическая плитка, Equipe
Отделка: краска, Benjamin Moore; Dulux
Мебель: диван, West elm; диван-кровать, IKEA; кресло, Made; столик, Bludot; столик, Roche Bobois; столик, Calligaris; стеллаж изготовлен на заказ
Освещение: подвесной светодиодный
светильник, Favourite; подвесной светильник, Flos; настенный светильник, Megalux
Кухня
Напольное покрытие: керамическая плитка, Equipe
Отделка: краска, Benjamin
Moore; Dulux
Мебель: стулья, Drill Design; мебель изготовлена на заказ
Освещение: подвесной светильник, Axo
Light
Спальня
Напольное покрытие: паркетная доска, Tarkett
Отделка: краска, Benjamin Moore
Мебель: кровать, MZ5 group; комод, тумбочка, перегородка из закаленного стекла изготовлены на заказ
Освещение: подвесной светильник, Flos
Ванная комната
Напольное покрытие: керамическая плитка, Equipe
Отделка: краска, Benjamin Moore; Dulux
Мебель: изготовлена на заказ
Санфаянс: раковина, Inbani; унитаз, Jika Mio; душевой поддон, Cezares
Смесители: Inbani; Grohe; Dornbracht
Освещение: подвесной светильник, Secto Design
Прихожая
Напольное покрытие: керамическая плитка, Equipe
Отделка: краска, Benjamin Moore; Dulux
Мебель: стул, Umbra; шкаф изготовлен на заказ
Освещение: точечные светильники, Lightstar; настенный светильник, Megalux











