Вкратце
В интерьере этого загородного дома дизайнер сочетала функциональный минимализм и декоративные элементы в духе ар-деко. Большую площадь подчеркнули открытой планировкой общей зоны кухни, гостиной, столовой и холла, лаконичной серо-бежевой гаммой и натуральным камнем в отделке.
Подробности
Коттедж находится в КП «Потапово» в Южном Бутово. Это монолитный дом на ленточном фундаменте: изначально было запланировано два жилых этажа, но в итоге их получилось целых четыре. Заказчики — семейная пара с двумя дочками, они любят принимать гостей и приглашать к себе с ночевкой близких родственников.
Дизайнер Татьяна Северр проделала большую работу: не только создала стильный интерьер, но и продумала максимально удобную перепланировку. Начали с того, что перенесли вход в дом, оборудовав отдельное помещение под прихожую, а изначальный дверной проем заменили окном в пол.
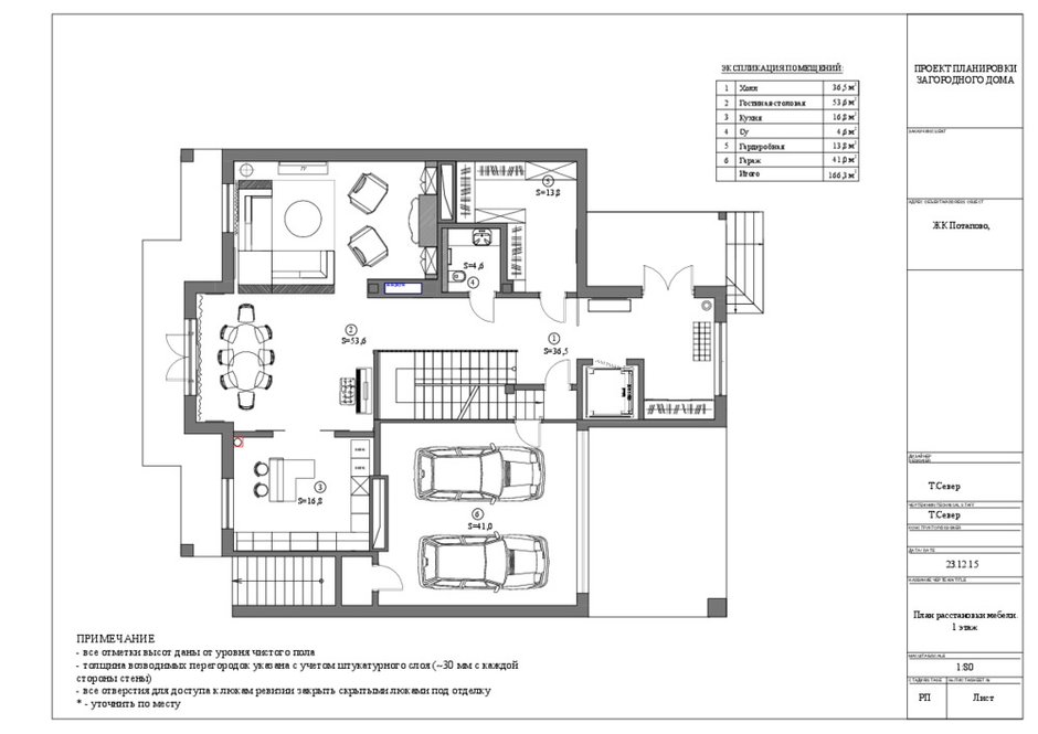
Первый этаж зонировали таким образом, чтобы складывалось ощущение единого пространства: например, прихожую от общей зоны отделяет сквозная перегородка, которая пропускает дневной свет из окна. Кухню можно изолировать с помощью высоких раздвижных дверей с матовым тонированным стеклом. В раскрытом состоянии они выполняют роль симметричных декоративных панелей. В гостиной обустроили ТВ-зону с большим мягким угловым диваном и каминную зону с креслом. Она отделена от коридора перегородкой с встроенным аквариумом.
На втором этаже — личные комнаты: спальня заказчиков, одна большая детская для девочек-погодок и вторая детская на случай прибавления в семье: в этой комнате сделали только отделку.
Дизайнер предложила переделать мансарду, чтобы третий этаж тоже стал жилым: здесь расположили гостевые комнаты для родственников и друзей. Заказчики позаботились о комфорте своих родителей и даже установили лифт — для этого пришлось возводить лифтовую шахту на четыре этажа. В цоколе разместили бильярд, домашний кинотеатр, бар, сауну, душевую, постирочную и санузел, а также технические помещения.
Отделочные материалы выбирались с точки зрения практичности: минималистичные глянцевые поверхности, за ними легко ухаживать. На стенах использовали краску плюс поэкспериментировали с 3D-панелями в виде сот. «Они освещаются направленными спотами: когда их включаешь, создается интересный оптический эффект — соты двоятся, „плывут“ и становятся еще объемнее. Напоминает детскую игрушку „калейдоскоп“. Честно говоря, это было неожиданно, но заказчикам понравилось», — рассказывает Татьяна Северр.
В качестве напольного покрытия использовали натуральное дерево и керамогранит. Панно в обеденной зоне разработали специально для этого проекта: источником вдохновения послужил рисунок плафона настольной лампы эпохи ар-деко.
Системы хранения — это отдельная история. Заказчица хотела, чтобы их было много, но при этом они были незаметными. Для этого спроектировали большие гардеробные при каждой спальне, а шкафы сделали встроенные в цвет стен. На первом этаже организовали хранение под лестницей: дверки шкафов покрасили в цвет стен и оснастили системой без ручек push-pull. Также были пожелания для размещения небольшой библиотеки: ей отвели место во встроенных стеклянных витринах у камина.
На создание интерьера дизайнера вдохновила атмосфера раннего утра и его цветовая палитра: приглушенные серые оттенки, когда солнце еще не взошло и краски еще не яркие, плюс вкрапления теплых зеленых и желтых тонов.
«Только-только пробиваются первые лучи летнего солнца, тишина и спокойствие наполняют прохладный стеклянный воздух, на плечах теплый плед и чашка горячего чая в ладонях — именно такую картину я представляю перед глазами», — делится дизайнер.
Планировка
Бренды, представленные в проекте
Гостиная
Отделка: краска, Little Greenе; настенные гипсовые панели, Artpole
Напольное покрытие: керамогранит, Mirage Italia
Мебель: обеденный стол, Gallotti & Radice; журнальный столик, Orsenigo; встроенная мебель, столярная мастерская Design 01
Освещение: светильники, Vistosi
Ковер: Dovlet House
Декор: Happy Collections; картина «Вечером» над камином, Гаго Рушанян; картина «Лимоны», Владимир Рябчиков
Столовая
Напольное покрытие: панно из керамогранита, Mirage Italia
Мебель: обеденный стол, Gallotti & Radice
Освещение: светильники, Vistosi
Прихожая
Напольное покрытие: керамогранит, Mirage Italia
Сквозная перегородка: столярная мастерская Design 01
Мебель: консоль, Orsenigo
Спальня заказчиков
Мебель: кровать, Bolzan letti
Освещение: светильники, Axo light
Декор: картина «Прага», М. Горбунова; аксессуары, Happy Collections
Гостевая спальня 1
Отделка: обои, BN Wallcoverings
Мебель: прикроватная тумба, Ogogo; кровать, Sonberry
Декор: картина «В парке», Владимир Пивоваров
Ковер: Dovlet House
Гостевая спальня 2
Отделка: обои Marburg, Karim Rashid
Мебель: кровать, Sonberry
Декор: картина «Сон», М. Горбунова; Happy Collections
Детская
Мебель: кровать, Mamka
Ковер: Dovlet House
Домашний кинотеатр
Напольное покрытие: Atlas Concorde
Мебель: диваны, Selesta
Хотите, чтобы ваш проект был опубликован на INMYROOM? Присылайте фотографии интерьера на wow@inmyroom.ru

















