Вкратце
Заказчик — молодой человек, видеоблогер. Он купил квартиру площадью 70 квадратных метров в Нижнем Новгороде. Он работает из дома, в основном в темное время суток, поэтому основным пожеланием было превратить серую бетонную коробку в темный, практически черный, лофт. Реализовать эту идею заказчику помог дизайнер Евгений Аполонов.
Подробности
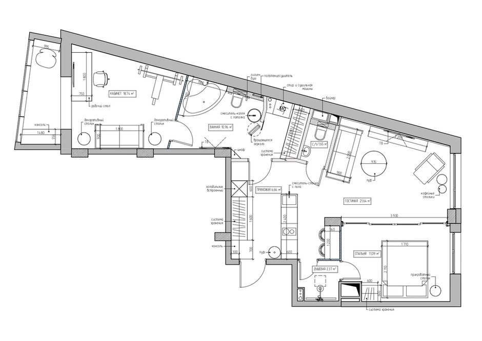
У квартиры сложная форма с множеством неправильных углов. Превратить недостатки в достоинства удалось с помощью перепланировки: причем Евгений Аполонов предложил решение, на которое согласится не каждый заказчик — в этом проекте ванная комната и душевая проходные.
Все пространство разделили на две части: рабочую и домашнюю. В домашнюю входят кухня-прихожая, гостиная и спальня. Между кухонным блоком и спальней находится душевая за стеклянной перегородкой — в нее можно попасть из обоих помещений. Также есть прозрачные перегородки между спальней и гостиной.
Проход в кабинет осуществляется через большую ванную комнату и постирочную, которые расширили за счет коридора. Это необычное планировочное решение отсылает к лофтовой стилистике и планировке. Небольшой по площади интерьер получился максимально функциональным и отражающим стиль жизни своего хозяина.
«Мы не ставили перед собой задачи создать ультрамодный интерьер, эта квартира должна стать продолжением своего хозяина без оглядки на тренды. Самое интересное и сложное в этом проекте — создание атмосферы лофта. С помощью цветовых решений, зонирования и использования необходимых пропорций нам удалось стилизовать это пространство в нужной атмосфере», — рассказывает Евгений Аполонов.
В отделке использовали керамогранит, штукатурку под бетон, деревянные рейки почти черного цвета. Потолок — очень темный. Стены выкрасили в насыщенные оттенки зеленого, изумрудного, синего цветов. На их фоне отлично смотрятся яркие элементы. Например, кухня — это небольшой остров с ярко-оранжевой столешницей и необходимым минимумом по оборудованию. Диван — с синей обивкой, а кровать — с желтой. Атмосферы добавляет светодиодная подсветка — это один из видов декора в этом интерьере.
Планировка
Бренды, представленные в проекте
Отделка: краска, Little Greene
Мебель: кресло, Home Concept
Техника: Bang & Olufsen
Спальня
Отделка: краска, Little Greene
Мебель: Lago
Кухня
Мебель: BY Furniture
Смесители: Tres
Ванная комната
Отделка: керамическая плитка, Equipe
Напольное покрытие: керамогранит, Atlas Concorde
Санфаянс: Kolpasan
Смесители: Tres
Кабинет
Отделка: краска, Little Greene
Декор: шкатулки, Злата Корнилова
Хотите, чтобы ваш проект был опубликован на INMYROOM? Присылайте фотографии интерьера на wow@inmyroom.ru















