Дизайнеры из IA.Buro оформили просторную квартиру площадью 106 квадратных метров в стиле неоклассика. Получился элегантный, дорогой интерьер с интересными деталями. Мы узнали подробности.
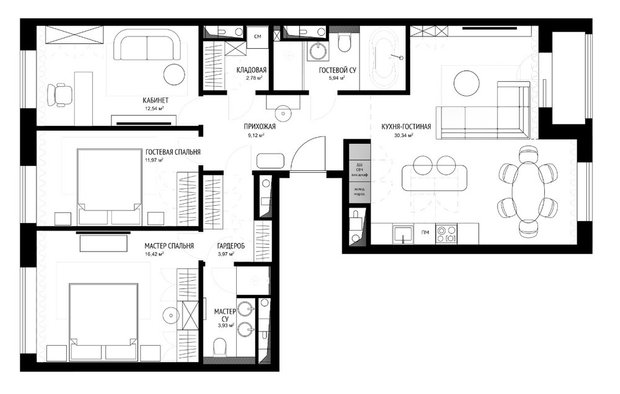
Планировка
Заказчики — молодая и активная семейная пара, пока без детей. Но нужно было предусмотреть все, поэтому вместо спален, которые предлагал застройщик, дизайнеры организовали три полноценные изолированные комнаты: мастер-спальню, гостевую комнату и кабинет, который в будущем может стать детской.
Кухня-гостиная
Заказчики хотели светлый интерьер с классическими элементами и темный мастер-блок с санузлом и гардеробной. Кухню выполнили на заказ: использовали классическое сочетание черных и белых фасадов. Верхние фасады в белой матовой эмали, нижние — в черной.
На стенах использовали классические молдинги из полиуретана, а потолочные карнизы выполнены в гипсе, в них встроили решетки под приточную вентиляцию. Также присутствуют латунные элементы, подсветки, стекло, зеркала.
Спальня
В спальню ведет проходная гардеробная. Интерьер выполнен в прохладных серых оттенках, при этом выглядит очень уютно за счет текстиля и аксессуаров.
В спальне предусмотрено большое количество зон хранения и сценариев света: точечное освещение, люстра с классической розеткой, подсветка штор, настенные бра.
Гостевая спальня
Для второй спальни выбрали очень нежную теплую цветовую палитру. Стены также украсили молдингами, а кровать установили с высоким мягким изголовьем в обивке «каретной стяжкой».
Кабинет
Стены окрашены в лазурный цвет, диван подобрали в тон. Реечные фасады на мебели выполнены из МДФ, предусмотрели стеклянные полочки с подсветкой.
Санузлы
Мастер-санузел спроектировали с душевой и двумя раковинами, что очень удобно. Для отделки стен взяли керамогранит светлого и темного оттенка, плюс акцентную деревянную панель из влагоустойчивого материала (TSS панель).
Второй санузел находится при входе, он не только гостевой, но потом будет детским, поэтому здесь разместили душевую и ванну-чашу, как и мечтали заказчики. В этом санузле использовалась такая же плитка, как и в мастер-санузле, но в некоторых местах между элементами установили латунные вставки — они придают роскоши и отлично сочетаются со светильниками.
Прихожая
В проходных помещениях использовали те же приемы, что и в жилых комнатах: молдинги на стенах, однотонная покраска, золотые аксессуары и фурнитура.
Фотограф: Александра Музыка
Бренды, представленные в проекте
Кухня
Отделка: плитка, Italon; краска, Little Greene
Бытовая техника: Bosch
Мойка: Villeroy & Boch
Гостиная
Отделка: краска, Little Greene
Техника: ТВ, Samsung
Ванная комната
Отделка: плитка, Italon
Напольное покрытие: плитка, Italon
Сантехника: Villeroy & Boch; ванна, Belbagno
Смесители: Grohe
Прихожая
Отделка: краска, Little Greene
Напольное покрытие: плитка, Italon
Хотите, чтобы ваш проект был опубликован на INMYROOM? Присылайте фотографии интерьера на wow@inmyroom.ru


















