Вкратце
Молодой предприниматель и коммерческий фотограф-видеограф обратился к дизайнеру Вере Домбровской с четкой задачей: обустроить квартиру в Санкт-Петербурге, которая совмещала бы в себе две ключевые функции. С одной стороны, это должно быть уютное, комфортное жилое пространство для отдыха и быта, с другой — функциональная и эргономичная рабочая среда, которая станет готовой декорацией для фото- и видеосъемок.
Вера Домбровская — профессиональный дизайнер интерьеров с 5-летним опытом. «Мой подход основан на принципе: относиться к пространству заказчика, как к своему собственному. Я глубоко погружаюсь в проект, досконально продумывая каждую деталь, чтобы создать не просто стильный, но по-настоящему эргономичный и живой интерьер, в котором хочется остаться. Предпочтения, привычки и пожелания заказчика — фундамент любого проекта. Я внимательно слушаю, чтобы интерьер стал отражением личности, а не просто красивой картинкой. Этот проект создавался в тандеме с декоратором Антониной Ким».
Подробности
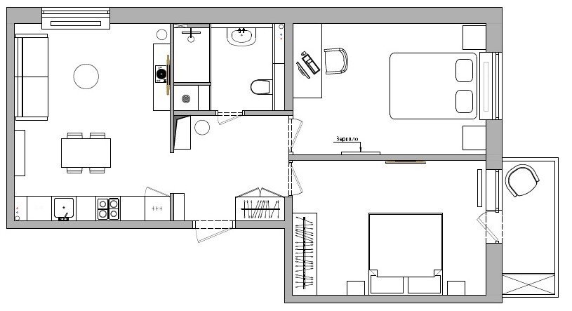
Исходную планировку от застройщика сохранили. В квартире обустроили все необходимые зоны: просторную кухню-гостиную со столовой, две спальни, в одной из которых нашлось место для рабочегоместа, а также прихожую и совмещенный санузел.
Особое внимание было уделено кухонной зоне, которая полностью встроена в нишу и выполнена на заказ. Ее фасады из шпона дуба, столешница из нержавеющей стали и элементы из рифленого стекла создают современный и тактильно богатый образ. В левой части размещена колонна со скрытым холодильником, рядом с мойкой — посудомоечная машина стандартного размера. От крупной техники заказчик сознательно отказался, оставив лишь компактную кофемашину, которая органично дополнила общую композицию.
Для кухни-гостиной удалось изготовить стол по индивидуальным размерам, который по тону идеально сочетается со стульями, — его сделали в одной из местных столярных мастерских. Винтажные стулья в столовой зоне и диван в оливковом оттенке стали яркими акцентными предметами, задающими характер комнате и подчеркивающие стиль мид-сенчури, который лег в основу проекта.
Спальня хозяина следует принципу «ничего лишнего»: в ее основе — четкие линии и продуманная функциональность. Нестандартное размещение кровати — изголовьем к окну — добавило помещению индивидуальности и позволило удобно организовать пространство: по обеим сторонам расположились узкие прикроватные тумбы. А прямо напротив, у стены, находится рабочая зона.
Ключевым пожеланием клиента были светлые, почти белые стены — как чистый лист, который служит идеальным фоном для предметов искусства и декора. Этот же принцип был применен в санузле, где на фоне светлой отделки появился акцентный элемент — бордовая плитка на фронтальной стене.
Бренды, представленные в проекте
Отделка: краска, Dulux
Напольное покрытие: паркетная доска, Karelia
Смесители: IDDIS
Освещение: Arte Lamp


















