Вкратце
Заказчики — семья с дочерью, проживающая в Москве, — приобрели жилье с целью создать «петербургскую квартиру», но без излишеств. В интерьере требовалось подчеркнуть атмосферу города, избегая при этом доминирования классического стиля. Исходя из этого, дизайнером Еленой Лебедевой из студии Plan A было сформировано стилевое решение: в основу легли лепнина и фриз, «разбавленные» современным технологичным оснащением.
Подробности
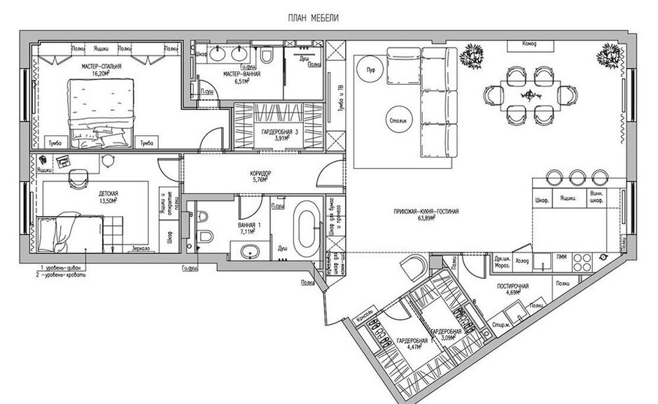
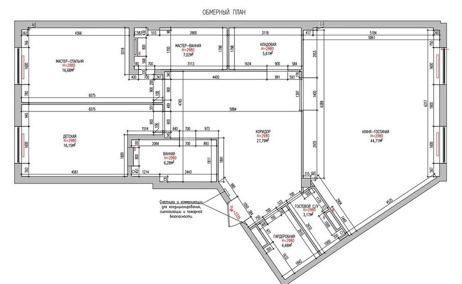
При покупке квартиры заказчикам понравилось абсолютно все, кроме ее планировки: она была неудачной, с многочисленными лишними углами Дизайнер преобразовала угловатые помещения в хозяйственные зоны: в гардеробную, постирочную и коридор. Такой подход позволил визуально выровнять пространство, сделав его более удобным и эргономичным. В квартире также обустроили кухню-гостиную, мастер-спальню, детскую, два санузла.
Выбор дома был неслучайным и обусловлен наличием пристани. Жилой комплекс имеет прямой выход к набережной Невы и собственную пристань, что позволяет добраться до объекта на лодке. Этот аспект особенно привлек внимание заказчиков, подчеркнув их образ жизни, соответствующий петербургской стилистике. Заказчики владеют лодкой и с удовольствием используют ее для отдыха во время своих приездов в Санкт-Петербург.
Стилистика интерьера характеризуется классической базой, дополненной современной мебелью. Чтобы избежать перегруженности, оснащение было выбрано современное и технологичное: корпусная мебель в гостиной, встроенные двери скрытого монтажа, трековые светильники. Диван обладает возможностью регулировки глубины сиденья, что осуществляется либо электрически, путем нажатия кнопок, либо механически, путем опускания и поднятия спинки. Такие функциональные элементы подчеркивают смешение стилей, делая интерьер глубоко проработанным и удобным в повседневном использовании.
Стена за телевизором облицована натуральным камнем. Дизайнер и заказчица совместно выбирали слэб с уникальной фактурой и рисунком, из которого затем было реализовано решение для ТВ-зоны по индивидуальному эскизу, разработанному согласно проекту.
Цветовая гамма носит природный характер и включает оливковые, терракотовые и бежевые оттенки. Стены в квартире окрашены, дополнены молдингами и гипсовой лепниной. Идеальным решением стал выбор глубокого оттенка краски — бежевого, с едва уловимой оливковой ноткой.
В хозяйской спальне современные элементы органично вписаны в классическое оформление стен, дополненное изысканным фризом. Особое внимание уделено акцентной стене за изголовьем кровати, реализация которой потребовала значительных усилий. Сложность задачи заключалась в объединении подвесных тумб, молдингов, зеркал и розеток таким образом, чтобы создать идеально гармоничное целое. На стене необходимо было разместить множество элементов, тщательно их соединить и рассчитать положение каждого предмета с миллиметровой точностью.
Изначально заказчики выразили пожелание иметь обширные зоны для хранения. В квартире спроектированы три гардеробные: первая расположена при входе и предназначена для верхней одежды и обуви; доступ ко второй осуществляется через первую, в ней хранится демисезонная одежда; третья, примыкающая к спальне, выделена для повседневных вещей. Все гардеробные изготовлены из шпона на итальянском производстве и оснащены вертикальными встроенными подсветками. Дополнительно в спальне и детской комнате установлены отдельные шкафы.
В отношении материалов выбор пал на натуральный камень, дерево, ткани натурального состава ручного плетения и гипсовую лепнину (исключая полиуретан). Корпусная мебель и кухонные фасады выполнены из массива дерева, при этом внутреннее наполнение шкафов также изготовлено из дерева. Это придает изделиям особую благородность и значительно выделяет их как по качеству исполнения, так и внешне.
Шторы изготовлены из тикового шелка — материала с необычной на ощупь текстурой и нефабричным плетением, где даже видны узелки, свидетельствующие о ручной обработке нитей. Ковры выполнены из смеси эвкалиптового шелка, шерсти и арт-шелка.































