Однокомнатная квартира 45 кв. м в классическом стиле для мамы
Молодой человек приобрел эту однокомнатную квартиру для своей мамы и обратился в нашу студию с просьбой разработать дизайн-проект для этого жилья. Стиль был выбран классический.
Для начала мы сделали перепланировку. После которой половина помещения стала полноценной кухней, а вторая половина – спальной и гостиной. Удобная форма квартиры позволила сделать еще и отдельную гардеробную.
Дизайн квартиры оформлен в нежных светлых тонах, с применением элементов классического стиля – светлой мебели, хрустальных люстр, текстильных драпировок.
Еще портфолио от Денис Серов

Однокомнатная квартира 50 кв.м в Московской области, современный стиль
Наша студия получила заказ на этот дизайн-проект от молодой семьи с маленьким ребенком. Их желанием было - выделить в однокомнатной квартире детскую зону и еще, помимо спальных мест для членов семьи, установить дополнительное спальное место (на случай ночевки гостей).
Детскую зону мы расположили в гостиной и оформили интерьер комнаты в нежных светлых тонах. Стену возле кроватки декорировали яркими полосатыми обоями.
Гостиную и балкон, примыкающий к ней, мы соединили в одно помещение. В получившейся нише, поместили небольшой рабочий кабинет.
Кухню мы решили оформить в интересной кремово-оливковой гамме и с применением лаконичного скандинавского стиля.
Для дополнительной спальной зоны нашлось место в прихожей.

Трехкомнатная квартира 140 кв. м в современном стиле, Москва
Дизайн-проект четырехкомнатной квартиры 140 кв. м в Москве мы разработали для успешного бизнесмена. По просьбе заказчика, мы применили в дизайне его жилья упрощенный современный стиль, но с использованием дорогостоящей обстановки и отделочных материалов.
Все оформление квартиры выполнено на контрастном сочетании цветов. На светлом фоне стен – темная мебель. При этом, мы решили не перегружать интерьер большим количеством декоративных деталей.
Большое внимание мы уделили тому, чтобы каждая часть пространства в квартире была функциональна. В достаточно длинном и узком коридоре, например, мы поместили три гардеробных.
В зонировании пространства нами были применены самые разнообразные дизайнерские приемы – установка ниш, подиумов, выступов, многоуровневых потолков, комбинирование фактур и красок в отделке, применение различных вариантов освещения.
В конечном итоге мы получили единое стилевое пространство, весьма комфортное для проживания в нем молодого состоявшегося мужчины.

Квартира-студия 30 кв. м в современном стиле
Представленный здесь дизайн-проект мы разработали для молодой семейной пары.
Изначально площадь их небольшой квартиры была менее 30 кв. м. С целью увеличения пространства, мы присоединили к помещению гостиной прилегающий к ней балкон. А затем разделили ее на две зоны – спальню и гостиную-кухню.
Для большего поступления естественного света в гостиную, от зоны спальни мы ее отгородили полупрозрачной раздвижной панелью. В верхнюю часть стены, разделяющей зоны, так же установили прозрачный элемент.
Квартира в итоге получилась атмосферной и стильной, не смотря на то, что бюджет был экономичным, а большая часть мебели приобретена в IKEA.

Трехкомнатная квартира 120 кв. м в современном стиле, в Москве
Этот дизайн-проект мы разработали для немолодой семейной пары. В своей трехкомнатной квартире 120 кв. м они проживают одни, так как взрослые дети живут отдельно.
Дизайн квартиры мы выполнили в современном стиле, используя бежево-золотистые оттенки и яркие шоколадные цветовые акценты.
Планировка квартиры очень удобная – в одной из комнат находится гостиная-кухня, во второй расположилась спальня. А третья комната выполняет функцию рабочего кабинета, и, при необходимости, спальни для гостей.
В каждой комнате расположено большое панорамное окно, открывающее доступ к естественному свету и воздуху.
Прихожую решили оставить открытой и в качестве ее ограждения использовать стеклянную конструкцию.
Чтобы не загромождать пространство квартиры лишней мебелью, было решено установить один большой общий гардероб. Доступ к гардеробу открыт как из спальной комнаты, так и из гостиной.

Загородный дом 250 кв. м в Подмосковье, классический стиль
В нашу студию обратилась семья, владеющая большим загородным домом в Подмосковье. Ремонт в их доме был проведен 10 лет назад. Хозяевам захотелось его обновить. Свой дом они пожелали видеть светлым и ярким, с необычными элементами декора. Стиль решили применить классический.
По желанию заказчиков, мы ушли от множественного применения лепнины и прочих классических элементов. Гораздо большее внимание было отдано необычным отделочным материалам, мебели, и цветовому сочетанию.

Четырехкомнатная квартира 110 кв. м для семьи с тремя детьми
Дизайн-проект четырехкомнатной квартиры 110 кв. м в Москве. Выполнен в современном стиле.

Квартира-студия 25 кв. м в Москве
Дизайн-проект квартиры-студии 25 кв. м с отдельной спальной. Желанием заказчиков было из маленькой однокомнатной квартиры получить жилье с отдельной спальной комнатой, кухней-гостиной, удобной прихожей и раздельным санузлом. С помощью умелой перепланировки и дизайнерских приемов, это сделать вполне удалось. Несмотря на дефицит пространства, квартира получилась уютной и светлой. В дизайне использовался современный стиль.

Трехкомнатная квартира 100 кв. м в классическом стиле, Москва
Дизайн-проект трехкомнатной квартиры 100 кв. м в ЖК «Изумрудные холмы», г. Красногорск. Интерьер оформлен в классическом стиле – дорогие натуральные материалы, пастельные и золотые тона, но с добавлением современных элементов.

Однокомнатная квартира 44 кв. м в центре Москвы
Дизайн-проект однокомнатной квартиры 44 кв. м в центре Москвы.
Заказчиками была немолодая семейная пара, дети которых уже взрослые, живут отдельно, но часто приезжают к родителям в гости.
После проведенной перепланировки, в однокомнатной квартире появилось дополнительное спальное место для гостей. При оформлении помещения был использован современный стиль.

Загородный дом 300 кв. м в стиле прованс
Дизайн-проект трехэтажного дома 300 кв. м в Подмосковье. Использован стиль прованс.

Трехкомнатная квартира 140 кв. м в Москве, классический стиль
Дизайн-проект трехкомнатной квартиры 140 кв. м в современном классическом стиле.
К нам обралась 25-летняя девушка, владелица большой трехкомнатной квартиры, с просьбой разработать дизайн интерьера ее будущего жилища. В процессе работы мы немного изменили планировку, сделав ее более удобной.
Выбирая стиль, мы остановились на классике, постаравшись дополнить ее современными мотивами. Так как квартира предназначалась для молодой девушки, особое внимание мы уделили оформлению спальни и ванной комнаты.

Четырехкомнатная квартира 140 кв. м в современном стиле
Дизайн-проект четырехкомнатной квартиры 140 кв. м в современном стиле
В нашу студию обратилась молодая семья с двумя дочками 7 и 8 лет. Они заказали нам дизайн-проект большой четырехкомнатной квартиры 140 кв. м в Москве.
В квартире нас ожидали не очень удачные особенности планировки – несколько углов комнат были больше 90◦, а в большом центральном помещении, где должна была разместиться гостиная-кухня, находилось только одно окно. Мы справились со всеми трудностями и произвели на свет этот дизайн-проект.
Для того чтобы в гостиной-кухне было достаточно естественного света, крупную мебель мы расположили в стороне от единственного окна.
Удлиненная форма комнаты, отведенной под родительскую спальню, позволила установить здесь еще и ванную комнату, и гардероб.
Для девочек мы оборудовали общую детскую и общую игровую комнаты. В этом возрасте они очень дружны, а в будущем – можно будет переоборудовать для каждой отдельное помещение.
Все балконы, имеющиеся в квартире, мы соединили с жилой площадью.

Частная дача 150 кв. м в Подмосковье
Дизайн-проект двухэтажного загородного дома 150 кв. м в г. Сергиев-Посад. Дом используется в качестве дома для загородного отдыха. Дизайн выполнен в современном классическом стиле.

Трехкомнатная квартира 145 кв. м в эклектичном стиле, в Москве
Дизайн-проект трехкомнатной квартиры 145 кв. м в эклектичном стиле в Москве.
Этот дизайн-проект был произведен для состоятельной пожилой пары. В своей большой квартире они живут одни, но на выходные к ним приезжают в гости взрослые дети.
Дизайн этой трехкомнатной квартиры мы предложили выполнить в стиле эклектика и сочетать в интерьере близкие друг к другу направления – арт-деко, классику и модерн.
Благодаря тому, что квартира расположена в монолитно-каркасном доме, нам удалось совместить гостиную с кухней. И квартира стала просторней визуально, ее жилое пространство наполнилось воздухом и светом.
В каждую из двух спален мы разместили по гардеробной. Еще один гардероб установили в прихожей.
Решив не перегружать большую ванную, стиральную машину мы поместили в отдельное помещение – постирочную.

Двухкомнатная квартира 90 кв. м в современном стиле для молодого мужчины
Дизайн-проект двухкомнатной квартиры 90 кв. м в современном стиле.
Этот дизайн-проект был разработан для 25-летнего молодого мужчины. В скором времени он планировал создать семью, а потому заблаговременно приобрел жилье в ближнем Подмосковье и попросил нашу студию сделать для него дизайн-проект.
Интерьер всей квартиры выдержан в современном стиле. Мы использовали приглушенные оттенки коричневого, фиолетового и серого цвета, контрастируя их с белым и светло-бежевым цветами. В итоге получилась достойная и благородная палитра.
В отделке помещения мы использовали, кроме традиционных материалов, камень и стекло.
Тщательно продуманная система освещения в квартире так же добавила ей индивидуальности.

Трехэтажный коттедж 300 кв. м в стиле прованс
Дизайн-проект трехэтажного загородного дома 300 кв. м на юге Московской области для семьи с тремя детьми. Использованные стили – прованс, модерн и современная классика.

Двухкомнатная квартира 80 кв. м в современном стиле
Дизайн-проект двухкомнатной квартиры 80 кв. м для молодой семейной пары. В оформлении квартиры нами был использован смешанный стиль.

Трехкомнатная квартира 100 кв. м в Москве, классический стиль
Дизайн-проект трехкомнатной квартиры 100 кв. м в классическом стиле
Этот дизайн-проект был нами разработан для молодой семьи с дочкой школьного возраста. Их две однокомнатные квартиры необходимо было преобразовать в одну трехкомнатную.
Благодаря современным методам перепланировки, все имеющееся в нашем распоряжении пространство, а так же часть подъезда, мы превратили в современное комфортабельное жилье с удобной планировкой и отличным видом из окна. Выбранный стиль – современная классика.
В основном в интерьере преобладают спокойные, теплые оттенки, создающие изысканную атмосферу.
Практичным решением было – использовать в отделке покраску по обоям. Зону TV мы выделили декоративным камнем, придав интерьеру необходимый контраст.
Для визуального расширения пространства, мы некоторые стены в помещении декорировали зеркальными вставками. А над зоной столовой поместили витражный элемент на потолке.
Приятные шоколадные оттенки, зеркальный и блестящий декор в помещении позволяют создать атмосферу роскоши и благополучия.
Кухня-гостиная 30 кв. м, выполненная в современном стиле
Дизайн-проект кухни-гостиной 30 кв. м в современном стиле
К нам обратились клиенты, которым мы выполняли уже ранее заказ – разрабатывали дизайн-проект их дачи. Теперь они хотели переделать свою комнату площадью 30 кв. м и разместить в ней гостиную и кухню. Мы с удовольствием взялись за работу.

Загородный коттедж 400 кв. м на Юго-западе Москвы
Дизайн-проект большого загородного дома 400 кв. м в Подмосковье был разработан по заказу его хозяина – молодого успешного бизнесмена. В этом доме он предполагал постоянно жить со своей семье – женой и двумя дочками школьного возраста.
Используемый стиль – современная классика с элементами арт-деко.
На первом этаже разместилась общественная зона с гостиной кухней и санузлом для гостей. Приватной зоне – спальне хозяев, детской для детей и двум ванным комнатам был отдан весь второй этаж здания. В мансарду дома поместили рабочий кабинет, игровую для детей и сауну.
В интерьере гостиной использованы теплые светло-коричневые оттенки. Изюминка интерьера – большой встроенный биокамин с мраморной облицовкой, находящийся под телевизионной панелью.

Однокомнатная квартира 35 кв. м в современном стиле для молодого человека
Дизайн-проект однокомнатной квартиры 35 кв. м в Москве. Желанием заказчика было получить современный, максимально функциональный, лаконичный интерьер.
В оформлении квартиры были использованы светлые тона с цветовыми акцентами шоколадных оттенков.
С целью экономии пространства, от громоздкой мебели было решено отказаться. Вместо нее установили разного размера неширокие шкафы с открытыми полками. Конструкционный дизайн помещения в полной мере уравновешивает сдержанность обстановки.
В итоге получился недорогой, но современный, комфортный и атмосферный вариант жилья для одного человека.

Трехкомнатная квартира 90 кв. м в современном стиле, в г. Москва
Дизайн-проект этой трехкомнатной квартиры 90 кв. м в Москве выполнен в медово-горчичных оттенках с добавлением шоколадных цветовых акцентов.
Здесь гармонично все - сочетание цвета, фактур, различных декоративных элементов. Квартира выглядит атмосферно, стильно и очень современно.

Трехэтажный дом 250 кв. м в современном стиле
Дизайн-проект для большого трехэтажного дома был создан для семьи с двумя маленькими детьми. Дизайн интерьера оформлен в современном стиле, с элементами эко-стиля, который подразумевает применение натуральных материалов и живых растений.
Практически вся мебель в доме выполнена на заказ по эскизам дизайнеров.

Однокомнатная квартира серии п-44т в Москве
Перед нами стояла задача – улучшить дизайн однокомнатной квартиры серии п-44т. Квартиру необходимо было сделать современной, уютной и комфортной.
Сделав необходимую перепланировку и используя эклектичный стиль, мы получили стильное, современное жилье – светлое и не перегруженное деталями.
На небольшой территории квартиры поместились спальня, гостиная, кальянная, кухня-столовая с зоной для работы. Ванную комнату мы оборудовали инфракрасной сауной.

Однокомнатная квартира 40 кв. м для девушки-студентки
Составляя дизайн-проект этой однокомнатной квартиры, предназначенной для проживания девушки, мы взяли за основу стиль модерн. Затем, дополнив интерьер технологичной начинкой - встроенной бытовой техникой, шкафами-купе, получили современное, уютное и презентабельное жилье. Такая квартира отлично подходит для жизни одного человека, или молодой семейной пары.
После проведенной перепланировки, спальня стала отдельным помещением, а на лоджии разместился маленький рабочий кабинет. Гостиную от спальни и прихожей мы отделили стеклянными перегородками.
В целом, у нас получилось очень современное жилье с ароматом корицы и нотками Азии, дополненное гламурными акцентами, глянцевым декором и брендовой мебелью.

Двухэтажный загородный коттедж 200 кв. м для семьи с двумя детьми
К нам в студию обратилась семья. Ремонт в их загородном коттедже был проведен 10 лет назад. Теперь требовалось обновить интерьер.
Нам предстояло создать в этом доме спокойный и светлый интерьер в классическом стиле с интересными, уникальными элементами декора.
При создании дизайна для этого дома, по желанию заказчиков, было решено уйти от большого количества лепнины и других классических элементов выбранного стиля. Большее внимание было уделено сочетанию цветов, фактур и предметов интерьера.

Трехкомнатная квартира 80 кв. м в современном стиле, г.Москва
Владельцы этой трехкомнатной квартиры – семья с ребенком. Заказывая нам дизайн-проект для своей трехкомнатной квартиры 80 кв. м, они попросили уйти от бежевых оттенков и использовать в интерьере более яркие цвета. Что мы и сделали.
Мы оформили интерьер этой квартиры в сиренево-коричневой гамме, а в детской использовали желтый цвет.
В гостиной-кухне яркие сиреневые оттенки мы разбавили нежными кремовыми тонами. Дизайн в гостиной получился простой и современный. Здесь мы поместили большой удобный диван, а в его изголовье повесили фреску, изображающую улицы Парижа.
В дизайне кухни нами был совмещен современный и классический стили. Здесь мы установили роскошный мебельный гарнитур с необычными темно-сиреневыми фасадами, отделанными стразами Сваровски.
Балкон был переоборудован в рабочий кабинет. А установленный здесь радиатор, позволит пользоваться помещением не только в теплое время года.

Трехкомнатная квартира 80 кв. м в Москве для семьи с двумя дочками
Дизайн-проект для этой трехкомнатной квартиры мы произвели с использованием современного стиля. Заказала нам его молодая, дружная семья с двумя дочками.
В дизайне квартиры нами были использованы цвета - бирюзовый, мокко, шоколадный, нежный кремовый. Сочетание этих оттенков создают особую яркую и радостную обстановку в доме.
Общественная зона в помещении получилась достаточно просторной и для семейного отдыха, и для приема гостей.
Самые разнообразные дизайнерские приемы и цветовой баланс, использованные в создании интерьера этой квартиры, сделали ее нестандартной и очень позитивной.

Однокомнатная квартира 48 кв. м для молодой пары
Наша задача состояла в том, чтобы в квартире с площадью 48 кв. м поместить гостиную, кухню, спальную зону и оформить все в современном стиле. Кроме того, было необходимо найти удобное место под небольшой рабочий кабинет.
В гостиной мы применили насыщенные цвета – бирюзовый, шоколадный, терракотовый на фоне светлых стен. Одну из стен здесь украшает оригинальная восточная роспись. Для хранения вещей в гостиной мы соорудили подвесной стеллаж, чтобы исключить загромождения этой зоны лишней мебелью.
От отдельной прихожей мы решили отказаться. Стеклянная витражная перегородка визуально отгораживает зону входа и санузел от зоны гостиной.
Зону кухни выделяет яркий витраж на потолке. В полу сооружен сухой бассейн.
Спальню мы объединили с балконом, сделав ее тем самым шире. А в том месте, где был балкон, сделали небольшой рабочий кабинет

Трехкомнатная квартира 80 кв. м для семьи с ребенком
Молодая пара с ребенком обратились в нашу студию с просьбой создать дизайн-проект для их двухкомнатной квартиры. Их желанием было – дополнительно выделить место для третьей комнаты с полным сохранением всех функциональных зон в квартире. Они хотели современное и удобное для себя жилище.
После перепланировки мы получили три помещения – гостиную, спальню и детскую комнату.
Эксперименты с цветом и фактурой, а так же глянцевые поверхности помогли сделать интерьер квартиры интересным и наполненным. В оформлении квартиры мы использовали глянцевую керамическую плитку, декоративный искусственный камень, акцентные стены.
В гостиной орехово-апельсиновую палитру идеально дополнили электрокамином. Зону кухни мы вынесли на подиум и этим ее дополнительно выделили. Все пространство гостиной выглядит очень гармонично – как одно целое.
Самые различные дизайнерские приемы, примененные нами в каждом помещении этой квартиры, сделали ее современной, привлекательной и очень удобной.

Двухкомнатная квартира 55 кв. м в Москве, стиль современный
Дизайн-проект двухкомнатной квартиры 55 кв. м выполнен с использованием нескольких современных стилей. Так пожелали заказчики – семейная пара с сыном-студентом.
Предполагалось, что в скором времени сын переедет в отдельное жилье, а комната его будет использована в качестве спальни для родителей. Это обстоятельство нами было учтено при проведении перепланировки в квартире.
В дизайне квартиры использованы яркие и теплые тона – сочетание коричневых, кремовых, бежевых и светло-зеленых оттенков.
В гостиной преобладает стиль хай-тек. Глянцевый натяжной потолок, а так же другие светоотражающие поверхности увеличивают пространство в помещении. В контрасте с ними выступают здесь длинноворсовый ковер и диван со светлой обивкой в стиле модерн.
Интерьер комнаты для сына мы старались не перегружать мебелью. Для этого вдоль всей стены мы расположили большой шкаф-купе и стеллажи для книг.

Трехкомнатная квартира 100 кв. м в Москве, выполненная в современном стиле
Этот дизайн-проект был разработан по заказу семьи с двумя сыновьями.
В их большой и очень удобной квартире разместились все необходимые функциональные комнаты – кухня-гостиная, спальня для родителей и детская для мальчишек. Дизайн этих помещений мы выполнили с применением современной классики.
В интерьере преобладают сиреневые оттенки, изысканный белый цвет и цвет слоновой кости. Жилье получилось величественным, но не старомодным.
Главные акцентные элементы в квартире – панно из натурального оникса с подсветкой, которое находится в гостиной. А в спальне взрослых изголовье кровати украсило декоративное панно с фактурой каретной стяжки.

Однокомнатная квартира 45 кв. м в современном стиле
Этот дизай-проект был разработан по заказу молодой пары, для их однокомнатной квартиры 45 кв. метров.
Самым интересным в планировке этой квартиры можно назвать расположение ее кухонной зоны. Ее мы поместили в центре, как это делают в Америке. За счет такой планировки гостиная и спальня получили больше естественного освещения. Кухонная мебель размещена в специальных нишах, а потому визуально не загромождает помещение.
Благодаря грамотной перепланировке, квартира практически лишена неиспользуемых зон. Все здесь функционально и гармонично.
Все зоны в квартире выделены декоративными потолками и комбинацией различного полового покрытия. Например, в гостиной был использован натуральный дубовый паркет.
В отделке квартиры мы использовали искусственный камень, бамбуковые обои. Теплые оттенки шоколадного, кораллового и бежевого цвета дополняют друг друга и придают помещению современный комфортабельный вид.

Загородный дом 100 кв. м в стиле шале
Дизайн-проект этого загородного дома был разработан с использованием нескольких стилей – шале, кантри и рустикального. Эклектика здесь просматривается во всем – в фасаде здания, в постройках, находящихся на его участке. И это смешение не портит общего впечатления, а наоборот, добавляет уникальности этому дому.

Однокомнатная квартира 55 кв. метров в Москве, современный стиль
Этот дизайн-проект был разработан для однокомнатной квартиры 55 кв. м, в которой проживает молодая семейная пара.
Цветовая гамма, применимая нами в интерьере квартиры, и винно-шоколадные акценты создают эффект настоящего швейцарского дома.
По просьбе хозяев квартиры, мы добавили в перепланировку дополнительно гардеробную в прихожей, небольшую зону кабинета - в спальне и кальянную комнату – на лоджии.
Все оформление квартиры построено на контрастах цветов, отделочных материалов и на использовании различных вариантов освещения.

Четырехкомнатная московская квартира 180 кв . м в неоклассическом стиле
Этот дизайн-проект был разработан для пожилой пары. Они хотели видеть свое жилье изысканным и элегантным, но в то же время и современным. Для этого лучше всего подошел неоклассический стиль.
Изысканную классическую гостиную с элементами арт-деко мы оформили в нежной бежевой цветовой гамме с добавлением бирюзового акцента. Тонированный орех, покрывающий пол, гармонично сочетается здесь со светлым интерьером.
Барной стойкой мы визуально отделили столовую от места приготовления пищи в кухонной зоне. Для этой зоны мы выбрали мебель в английском стиле.
После проведенной нами перепланировки, лоджия превратилась комнату отдыха с тренажерами. При необходимости, ее можно будет использовать в качестве спальни для гостей. В этой комнате был применен стиль транситиональ.

Четырехкомнатная квартира 146.5 кв. м на Юго-западе Москвы, современный стиль
Этот дизайн-проект нашей студии заказала семья с двумя детьми. Для своей большой четырехкомнатной квартиры они выбрали современный стиль, кроме интерьера хозяйской спальни. Ее заказчики хотели видеть в классическом решении.
После проведенной работы, мы получили современную, комфортную квартиру в неброских, холодных оттенках. Из интересных дизайнерских идей в гостиной – мраморное панно, большая 3-D панель из гипса и фитостена из живых растений.

Загородный дом 200 кв. м в городе Находка, классический стиль
Дизайн-проект этого загородного дома мы выполнили, по желанию заказчиков, в классическом стиле. Интерьер получился торжественным и консервативным, но теплым и уютным.
Выбранная цветовая гамма – бежево-шоколадные и серо-голубые оттенки, разбавленные золотом и терракотой. В интерьере дома присутствуют все основные элементы классического стиля – мрамор, дерево, зеркальные вставки, выразительные орнаменты на полу, тканевые драпировки. Дом украшает светлая мебель, живописные полотна, изящные люстры из хрусталя.

Спальня с гардеробной 16 кв. м в современном стиле
Эта спальня находится в однокомнатной квартире 60 кв. м, хозяйка которой - молодая девушка.
Поэтому, в дизайн интерьера мы внесли современные элементы, но добавили женственности в виде восточных ноток. Текстильными драпировками нами были оформлены стены и потолок помещения.

Ванная комната 8 кв. м в современном стиле
Эта ванная комната находится в однокомнатной квартире 60 кв. м, выполненной в современном стиле. Дизайн этой ванны мы выполнили в бежевых оттенках с яркими фиолетовыми акцентами. В отделке мы так же использовали мозаику из мелкой плитки.

Прихожая с гардеробом 8 кв. м в современном стиле
Эта прихожая шоколадных оттенков находится в однокомнатной квартире 60 кв. м. Здесь нет ничего лишнего. Из элементов декора - зеркальные двери гардероба во всю стену и мраморное декоративное панно на полу.

Гостиная-кухня в однокомнатной квартире, выполненной в современном стиле
Эта гостиная-кухня расположена в однокомнатной квартире 60 кв. м. Цветовая гамма гостиной нейтральная – бежевые оттенки с сиреневыми и коричневыми акцентами. Вместо традиционного стола в столовой мы установили широкую барную стойку из искусственного камня. К тому же, она еще и отделяет зону кухни от зоны гостиной.

Спальня 12 кв. м в современном стиле
Очень уютная спальная комната в светлых тонах с шоколадными и сиреневыми акцентами находится в однокомнатной квартире 50 кв. м в современном стиле. Благодаря новейшим методам планировки, ей было отведено отдельное место.

Ванная комната 6 кв. м в современном стиле
Эта современная ванная комната находится в однокомнатной квартире 50 кв. м. Выполнена в теплых бежевых и шоколадных тонах.

Прихожая и коридор 8 кв. м в современном стиле
Эта прихожая и коридор в теплых бежево-шоколадных оттенках находится в однокомнатной квартире 50 кв. м, выполненной в современном стиле.

Гостиная-кухня 16 кв. м в однокомнатной квартире, в современном стиле
На балконе, примыкающей к этой гостиной, выполненной в классическом стиле, находится мини-кабинет для работы и небольшая библиотека.

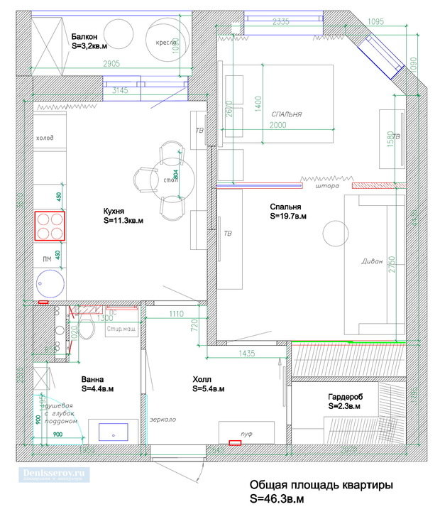
Однокомнатная квартира 45 кв. м, стиль современный

Двухкомнатная квартира 70 кв. м в стиле прованс

Трехкомнатная квартира 100 кв. м в современном стиле

Трехкомнатная квартира 95 кв. м в современном стиле

Трехкомнатная квартира 90 кв. м, современный стиль

Квартира 110 кв. м в стиле арт-деко

Квартира 100 кв. м в восточном стиле

Квартира 120 кв. м в стиле хай-тек

Двухкомнатная квартира 60 кв. м, современный стиль

Спальня в загородном доме, современная классика

Ванная комната в загородном доме, современная классика

Прихожая и лестница в загородном доме, современная классика

Кухня с балконом в загородном доме, современная классика

Гостиная в загородном доме, современная классика

Трехкомнатная квартира 76 кв. м в современном стиле

Трехкомнатная квартира, выполненная в современном стиле

Яркий дизайн четырехкомнатной квартиры

Прихожая в однокомнатной квартире, современный стиль

Ванная комната в однокомнатной квартире, современный стиль

Кухня-столовая в однокомнатной квартире, современный стиль

Гостиная в однокомнатной квартире, современный стиль

Дизайн ванной комнаты в квартире в Эстонии, современный стиль

Дизайн гостиной и столовой-кухни в Эстонии, современный стиль

Трехкомнатная квартира 90 кв. м в современном стиле

Синяя квартира в современном стиле

Детская комната для мальчика в современном стиле

Гостиная и столовая-кухня в загородном доме, современный стиль

Зимний сад в загородном доме

Ванная комната в загородном доме, современный стиль

Детская для малыша в загородном доме, классический стиль

Спальная комната в стиле арт-деко

Яркая гостиная-кухня в стиле арт-деко

Дизайн квартиры в современном стиле

Гостиная в загородном доме в Уфе, современная классика

Трехкомнатная квартира 105 кв. м в современном стиле

Двухкомнатная квартира в современном стиле элементами этники

Желтая ванная комната в современном стиле

Гостиная - кухня в однокомнатной квартире, современный стиль

Спальня в современном стиле с балконом

Комната отдыха в загородном доме, современный стиль

Сауна и бассейн в загородном доме

Гостиная в загородном доме, в современном стиле

Однокомнатная квартира 35 кв. м в современном стиле

Трехкомнатная квартира 120 кв. м в классическом стиле

Загородный дом 300 кв. м в современном стиле

Двухэтажный загородный дом 200 кв. м в классическом стиле

Таунхаус в современном стиле

Загородный дом в классическом стиле

Трехкомнатная квартира 30 кв. м в современном стиле

Ванная комната 4 кв. м в современном стиле

Кухня-столовая 14 кв. м в современном стиле

Гостиная с балконом 16 кв. м в современном стиле

Двухкомнатная квартира 60 кв. м в стиле прованс

Однокомнатная квартира 50 кв. м в современном стиле

Двухкомнатная квартира 60 кв. м в современном стиле

Трехкомнатная квартира 70 кв. м в классическом стиле

Однокомнатная квартира в стиле минимализм

Двухкомнатная квартира в стиле арт-деко

Дизайн-проект мансарды 100 кв. м

Сауна с бассейном в загородном коттедже

Однокомнатная квартира в стиле прованс

Двухкомнатная квартира в современном стиле

Гостиная в бежево-коричневых тонах, современный стиль

Детская комната для мальчика с космонавтом

Ванная комната с лиловой плиточной мозаикой в современном стиле

Детская комната с Бэмби в классическом стиле

Гостиная-столовая, современный стиль

Спальная комната, эклектика

Гостиная-кухня, эклектика

Рабочий кабинет для школьника

Ванная в коричневых тонах, современный стиль

Детская комната для малыша

Спальная комната в этническом стиле

Желтая детская в современном стиле

Гостиная-столовая в современном стиле

Рабочий кабинет в классическом стиле

Детская для мальчика в морском стиле

Светлая спальня в классическом стиле

Ванная комната в классике

Мини-кабинет рядом с фиолетовой гостиной, современный стиль

Кухня-столовая с фиолетовым акцентом в современном стиле

Прихожая с фиолетовым акцентом в современном стиле

Гостиная с фиолетовым акцентом в современном стиле

Солнечная детская

Салатовая спальня в прованском стиле

Санузел в современном стиле

Оранжевая детская, современный стиль

Гостиная с оттенками шоколада, современный стиль

Детская в современном стиле

Спальня в эклектичном стиле

Ванная комната в эклектичном стиле

Лестница в загородном доме в стиле арт-деко

Столовая в стиле арт-деко

Гостиная комната в стиле модерн

Сауна в загородном доме

Детская в загородном доме, классика

Рабочий кабинет в загородном доме, современный стиль

Спальня в загородном доме, современный стиль

Зона TV в загородном доме, современный стиль

Столовая-кухня в загородном доме, современный стиль

Гостиная в загородном доме, современный стиль

Ванная комната, классика

Персиковая спальня в классическом стиле

Рабочий кабинет, стиль минимализм

Персиковая гостиная в классическом стиле

Спальня в стиле минимализм

Ванная комната в стиле минимализм

Столовая-кухня в стиле минимализм

Гостиная в стиле минимализм

Ванная комната в этническом стиле

Спальня в этническом стиле

Рабочий кабинет в восточном стиле

Прихожая и коридор в стиле арт-деко

Гостиная в современном стиле с зоной мини-кабинета

Розовая детская в классическом стиле

Бирюзовая детская в классическом стиле

Спальная комната в классическом стиле

Кухня-столовая в классическом стиле

Зеленая спальня в современном стиле

Прихожая в современном стиле

Столовая-кухня, стиль модерн

Ванная комната, стиль модерн

Дизайн балкона

Гостиная в эклектичном стиле

Ванная в современном стиле

Детская комната для девочки

Ванная комната в классическом стиле

Столовая-кухня в стиле модерн

Сиреневая гостиная в стиле модерн

Санузел на загородной даче

Гостиная в стиле кантри на загородной даче

Столовая в стиле кантри на загородной даче

Сиреневая спальня в современном стиле

Ванная в стиле модерн

Рабочий кабинет в стиле модерн

Спальня в стиле модерн

Коридор и прихожая в стиле модерн

Кухня-столовая в стиле модерн

Гостиная в стиле модерн

Детская в стиле модерн

Бежевая спальня в классическом стиле

Спальня в современной классике

Столовая в деревенском стиле

Столовая-кухня в классическом стиле

Классическая гостиная комната

Розовая детская

Туалет в стиле авангард

Ванная комната в стиле авангард

Спальня в стиле авангард

Столовая-кухня в стиле авангард

Яркая гостиная в стиле авангард

Гардеробная в спальне трехкомнатной квартиры

Спальня в трехкомнатной квартире, современный стиль

Ванная в трехкомнатной квартире, современный стиль

Прихожая и коридор в трехкомнатной квартире, современный стиль

Гостиная-кухня в трехкомнатной квартире, в современном стиле

Классическая спальня

Гостиная-кухня, стиль моден

Детская комната в классическом стиле

Ванная в классическом стиле

Спальня в классическом стиле

Прихожая и коридор в классическом стиле

Гостиная-кухня в классическом стиле

Дизайн детской комнаты

Дизайн-проект спальни и мини-кабинета в современном стиле

Ванная комната в современном стиле

Дизайн прихожей в современном стиле

Кухня-гостиная в современном стиле

Прихожая в стиле модерн

Дизайн-проект туалета для детей

Дизайн-проект детской комнаты в четырехкомнатной квартире

Ванная комната в стиле модерн

Дизайн-проект спальни в стиле модерн

Гостиная-кухня в стиле модерн

Дизайн-проект детской комнаты

Детская комната для девочки-подростка

Дизайн-проект зеленой спальни, современный стиль

Дизайн-проект санузла в современном стиле

Гостиная в трехкомнатной квартире, стиль современный

Спальня в современном стиле в трехкомнатной квартире

Балкон в современном стиле с мини-рабочим кабинетом

Дизайн-проект прихожей в трехкомнатной квартире, современный стиль

Дизайн-проект гостиной-кухни в трехкомнатной квартире, выполненной в современном стиле

Дизайн=проект однокомнатной квартиры 50 кв.м.
Дизайн=проект однокомнатной квартиры 50 кв.м.

Квартира в стиле прованс 1

Квартира в классическом стиле

Квартира в стиле эклектика



















