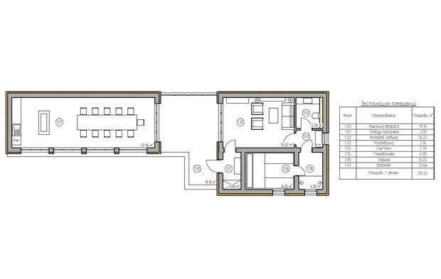
Баня в деревенском английском стиле
Планировка и дизайн фасада бани-беседки.
В бане расположились: прихожая-тамбур, комната отдыха с мягкой зоной и небольшим шкафом для бара и подогрева еды (микроволновка), раздевалка, санузел, помывочная и парная. При небольших метражах помещений они полностью отвечают всем требованиям удобства и функциональной наполненности. Беседку мы разделили на 2 основных зоны - зону готовки и мангальную, а так же выделили обеденную зону с прямым просмотром на мангал-камин. Фишка беседки в том, что она имеет прямой доступ в общий ландшафт всего поместья, так что летом можно открыть все окна и сделать ее открытой. А при желании можно использовать общую террасу для посиделок!
Еще портфолио от Студия дизайна "ГраДиз"

А-ля рус – проект дома из бревна в современном русском стиле
Дизайн проект дома из бревна площадью 126 кв.м. в Верхней Сысерти. Идея интерьера – это как стержень, на котором все держится. В этом проекте мы оттолкнулись от слов заказчика: "Мой дом – для меня!", "Место силы", "Бажовские места", "Сказочное место", "Модно. Современно. По-Русски", "Минимализм". Используя этот образ, был создан цвето-пластический ключ: формы минималистичные и современные, на контрасте с природными и неровными; текстуры натуральные, грубоватые, на контрасте с гладкими, современными;
цвет - классическая Русская триада: красный, желтый, синий. Решено – стены, пол и потолок сделать фоном, т.е. простой ремонт не привлекающий внимания. А мебель и декор сделать акцентными.

Огонь, вода и медные трубы – проект апартаментов для семьи из 4-х человек
Дизайн проект апартаментов площадью 230 кв.м. в Башне "Исеть". Заказчики очень любят путешествовать, у них хорошая насмотренность и понимание, как им будет удобно, хотя с первого взгляда решения могут показаться неоднозначными. Им нравятся темные цвета в интерьере, медные покрытия, яркие контрасты, необычные формы и фактуры. Проанализировав исходные данные, у нас родилась ассоциация с известным выражением « Огонь, вода и медные трубы», но у нас оно имеет немного другой смысл. А именно, цветовое сочетание и принцип выбора материалов при оформлении интерьера.

Швейцарские Альпы. Природный минимализм в Башне "Исеть" – реализованный интерьер для семейной пары с собакой
Дизайн проект апартаментов площадью 95 кв.м. в Башне "Исеть". При разработке интерьера мы отталкивались от предпочтений заказчиков по цветовому оформлению и желанию побывать в Швейцарии. Стали развивать пожелания дальше и провели следующие аналогии: Швейцария - страна, которая ассоциируется с высоким качеством жизни и сервиса. Башня "Исеть" позиционирует себя, как элитный комплекс с соответствующим обслуживанием. Визитной карточкой Швейцарии стали живописные пейзажи: маленькие колоритные города, чистейшие озёра и высокие снежные горы.
Апартаменты в Башне находятся на 35 этаже, откуда виден весь центр Екатеринбурга, словно мы поднялись на одну из вершин и смотрим на альпийский городок, расположенный у подножия этой горы. Отсюда же мы позаимствовали цветовую гамму, создающую ощущение зимнего дня в горах. Оттенки белого, серого, синего передают разнообразие живой природы, в виде камня, пушистых заснеженных елок, и на контрасте - теплые оттенки деревянных домов, освещенных мягким светом из окон. Игра контрастов продолжается и на сочетании фактур , используемых материалов: грубое и мягкое, глянцевое и матовое, за счет этого интерьер смотрится живым и гармоничным.
Награды: Шорт-лист 100+ AWARDS 2024
Впечатление. Интерьер в стиле Моне – реализованный проект для состоявшейся пары врачей
Дизайн проект квартиры площадью 85 кв.м. в ЖК "Александровский сад". Хозяевам этой квартиры в Екатеринбурге импонирует творчество импрессионистов, отличающееся легкостью, подвижностью и изменчивостью. За основу дизайн-концепции была взята картина Клода Моне «Впечатление. Восход солнца». В нашем интерьере мы постарались передать эти настроения с помощью фактур, форм, орнаментов и цветовых акцентов: сине-зеленых, синих, фиолетовых и оранжевых тонов. Наши заказчики несколько лет искали подходящую им двоим квартиру в границах улиц Московская - Куйбышева - Белинского - Щорса, так как прожили в этом районе всю жизнь. Они хотели сменить старую квартиру в доме советской постройки хотели сменить на более комфортабельную с красивыми местами общего пользования, уютным двором и внешне привлекательным фасадом. В конечном итоге, сделали выбор в пользу ЖК Александровский сад и ни разу не пожалели об этом. Пространство разделено на две части: общественную и приватную. Хозяева любят принимать гостей, и гостиную сделали максимально открытой и просторной — с мягкой зоной возле телевизора, столовой и функциональной кухней. Также предусмотрели места хранения, чтобы все, кроме декора, было скрыто от глаз, и при этом всем было удобно и логично пользоваться. Никакого «визуального шума» — на виду только красота, чистота и порядок.

Ешь. Молись. Люби. – проект для семьи из 4-х человек
Дизайн проект 2-х уровневой квартиры площадью 146 кв.м. в ЖК "Квартал на Некрасова". Источником вдохновения для нас послужили лёгкий и позитивный настрой клиентов, их активная жизненная позиция, а также открытость к экспериментам и творчеству. Эти факторы побудили нас на смелую идею — объединить в одном интерьере атмосферу сразу трёх стран! Мы окунемся в самобытную культуру Италии, Индии и Бали — тех стран, где происходит действие одноимённого произведения «Ешь. Молись. Люби.» Интерьер первого этажа, за исключением мастер-спальни, построен на смелых итальянских мотивах, с использованием ультрамодных предметов мебели. Достаточно монохромный фон интерьера оживляют мощные точки притяжения взгляда в виде модернизированной скульптуры Венеры Милосской с цветными кляксами, яркого зеркала, изящной консоли и округлого комода с необычными фасадами. Монументальные колонны, цифровой портрет Моны Лизы и картина с Колизеем, за которой прячется телевизор, – все эти детали органично переплетаются и увлекают нас в самобытность Италии.
Награды: ТОП-10 ADDAWARDS 2023
Dior. Квартира коллекционера – реализованный проект для состоявшейся семейной пары
Дизайн проект квартиры площадью 130 кв.м. в Клубном доме "Кандинский". Хозяева коллекционируют картины, статуэтки, фигурки, которые привозят из разных поездок. Это квартира людей, которые ценят искусство, необычные предметы. Образ заказчиков ассоциируется у нас с Dior. Компания Dior — это мода, красивые и качественные вещи, искусство. Dior последние несколько лет сотрудничает с современными художниками и пересматривает свои традиционные изделия. В ней очень ценят искусство. Заказчики также любят красивые качественные вещи. Хозяйка у нас ассоциируется с художественным утончённым образом. Это сам Диор. Её муж больше похож на Бернара Арно: это бизнес, прагматичность, хватка. Диор и Арно, бизнес и искусство прекрасно сосуществуют и дополняют друг друга. Каркас квартиры служит фоном для коллекции. Она состоит из картин, предметов мебели, порой очень странных и необычных, которые часто не ассоциируются со своей функцией. Мы создали атмосферу haute couture, красивой жизни, чтобы, заходя в квартиру, люди попадали как будто в другой мир, на другую планету.
Награды: ТОП-10 ADDAWARDS 2023

Семейный остров | ЖК Северный
Дизайн проект двухуровневой квартиры площадью 115 кв.м. в ЖК «Северный». Наши заказчики - очень дружная семья! Они с нежностью и заботой относятся друг к другу. Мы поняли, что квартира для них – это тихий островок среди городской суеты, где уютно и тепло находиться. Им нравится тематика тропиков, джунглей, и картинка сложилась… Это история из мультфильма «Король Лев»! Их семья – это львиный прайд, а тихий остров – это та скала предков среди бескрайней саванны. В интерьере мы использовали теплые природные оттенки джунглей, натуральные тактильные материалы в виде дерева и плетеного текстиля. Структурный керамогранит и декоративная штукатурка в виде белой глины дают ощущение каменистых ландшафтов острова. Важным элементом интерьера являются мягкие обволакивающие формы мебели и декора, которые дают чувство тепла и объятий родного дома.

Дом у озера – интерьер для успешной бизнес-вумен | ЖК "Clever Park"
Дизайн проект 3-х комнатной квартиры площадью 90 кв.м. в ЖК "Clever Park". Для заказчицы лучший отдых – это отдых на природе. Приходя домой, ей хотелось погружаться в атмосферу спокойствия и уединения. Где можно будет встречать рассветы и заряжаться на плодотворную офисную работу, а по вечерам растворяться в обволакивающем уюте. Изучив аналоги и цветовые предпочтения, появилась идея передать настроение загородного дома на берегу чистого озера.

Калейдоскоп – проект квартиры для семейной пары с дочерью | ЖК "Гулливер"
Дизайн проект 3-х комнатной квартиры площадью 90 кв.м. в ЖК "Гулливер". Заказчики очень любят путешествовать. Для них – это мотивирующая и вдохновляющая часть жизни! Необходимо было создать теплый, уютный и яркий интерьер, в который после очередной дальней поездки захочется вернуться. Важно было сделать интерьер цветным, чтобы квартира заказчиков скрашивала уральскую "серость". В ходе разработки концепции родилась ассоциация с калейдоскопом. Пропуская через себя солнечный свет, он дает возможность созерцать неповторяющиеся узоры, словно многообразие культур и стран, которые видят заказчики во время своих путешествий. Планировка претерпела кардинальные изменения: мы выстроили правильную геометрию помещений, поменяли местами детскую и спальню, и даже организовали мастер-спальню с отдельной ванной комнатой. Гостиная стала центральной точкой притяжения и общения, вокруг которой разворачивается "история" интерьера.

Лев, колдунья и платяной шкаф
Дизайн проект квартиры площадью 76 кв.м. в ЖК «ELEVEN», Башня Альфа в г. Москва. Идея начала развиваться, оттолкнувшись от двух обстоятельств: высокие потолки; невозможность двигать перегородки. Высокие потолки и невозможность сдвигать перегородки встречаются в старинных зданиях и памятниках архитектуры. Мы представили, что нам достался старый особняк, в котором мы начали делать демонтаж, убирать «старую» штукатурку, чистить потолки и вдруг нам открылся клад - фреска на потолке. А еще некоторые элементы лепнины и т.д. Прямо как в старом шкафу, порывшись в котором, непременно что-то отыщется. Оттуда и название: Лев, колдунья и платяной шкаф — как книга К.С. Льюиса, более известная по фильму "Хроники Нарнии". Но делать старинный и затхлый интерьер мы ни в коем случае не хотели. Вспомнили, как Итальянцы ловко миксуют старое с новым. И решили, что будем ставить современную мебель на фоне «откопанных» фресок и классической лепнины. В итоге у нас получился великолепный фон с историей и модная, современная, а главное удобная мебель! Что делает наш интерьер уникальным и не похожим на другие. А главное создает правильное настроение — вау!

Друзья | ЖК Clever Park
Дизайн проект квартиры площадью 160 кв.м. в ЖК Clever Park. Помните в 90-ые был такой добродушный сериал — Друзья. Про молодых ребят, про дружбу, про их отношения, про то как они веселятся, грустят, живут. Глядя на наших Заказчиков, нам вспомнился этот сериал и мы захотели воспроизвести ту атмосферы доброты, тепла и добродушия, пронизывающую весь фильм. Эту идею мы перенесли в интерьер через фактуру и цвет. Все фактуры натуральные: дерево, камень, лен. Это то, что приятно на ощупь и дает богатый тактильный опыт для пользователей. Цвета спокойные, природные, но с акцентами. Для создания атмосферы уюта мы использовали округлые формы, без острых агрессивных углов, добавили воздуха и простора.

1 + 1 = 3
Квартира для семейной пары с малышкой в ЖК Брусника в Академическом, в г. Екатеринбург

Летний сад
Квартира для бизнес-леди в ЖК Макаровский, г. Екатеринбург

КРУИЗ ПО ДЖУНГЛЯМ
Дизайн-проект квартиры 130 кв.м. в ЖК Форум Сити. В данном проекте нам не пришлось долго думать над идеей проекта, поскольку с заказчиками мы работаем не в первый раз. Нам с порога сказали: «Хотим джунгли!». А мы только рады! Это очень интересная идея для оформления любого пространства, где дизайнеры могут дать волю фантазии. Идея тропических лесов и культуры местных народов позволила нам создать поистине единственный и неповторимый интерьер.

Цветок в пустыне | Трехкомнатная квартира в Москве
Дизайн-проект трехкомнатной квартиры в Москве.
У заказчиков были очень разные представления о том, как должен выглядеть их будущий интерьер. Заказчице нравится спокойная современная классика, заказчику же хотелось необычное сочетание цветов. И эти противоречия привели нас к общей идее интерьера - "Цветок в пустыне". Спокойный фон в серо-бежевых тонах напоминает нам пески, барханы, а цветовые акценты мебели, текстиля, принтов на стенах - словно некие оазисы посреди бескрайней пустыни.
В ходе перепланировки мы объединили гостиную и прихожую. Это позволило нам избавиться от узкого нефункционального коридора и разместить вместительный шкаф для хранения верхней одежды и хозяйственного инвентаря. Вход в кухню организовали из гостиной, что позволило сделать кухню более функциональной и разместить полноценный гарнитур. Разграничили помещения раздвижными дверями, в сложенном виде они лишь прикрывают торец холодильника, таким образом кухня является как бы продолжением гостиной - это визуально добавляет простора. Ванную и санузел объединили, к ним также присоединили и площадь небольшого коридорчика. Смежные комнаты разделили, за счет этого у нас появилась ниша для гардеробной.

Утро в сосновом лесу | Коттеджный поселок Заповедник
Дизайн-проект дома для состоявшейся семейной пары в коттеджном поселке Заповедник.
Первое, с чего мы начинаем работу – это анализ объекта. В данном случае – это дом из бруса. И, как правило, интерьер дома из бруса можно оформить в разных стилевых направлениях, но главная наша задача – это сохранить натуральную фактуру дерева и, конечно, стремиться к экологичности. Дерево – главный герой нашей истории. Где же еще дерево является главным героем? Первым на ум приходят живописные произведения Ивана Ивановича Шишкина. Отсюда и название нашего проекта – «Утро в сосновом лесу». Идея природных мотивов как нельзя лучше подходит этому дому. Именно в природе все смотрится органично, даже контрасты.
Заказчики взяли за основу типовой проект дома из бруса, поэтому мы работали с существующими стенами, где перед нами стояла задача удобно и функционально расставить мебель. На первом этаже были расположены прихожая, лестничный холл, кухня-гостиная, гостевая спальня и ванная комната. На втором этаже – лестничных холл, спальня хозяев, два кабинета, постирочная и ванная комната.

Геометрия | ЖК Первомайская 60
Дизайн-проект квартиры площадью 95 кв.м. в ЖК Первомайская 60.
Заказчики уже имеют довольно большой опыт в обустройстве своего дома, поэтому хорошо представляли, какой дизайн хотят видеть в новой квартире: четкий, практичный, строгий, функциональный. Мы подобрали определенные формы и цвета, которые полностью раскрывают эту идею.
Явным преимуществом данной квартиры, кроме ее площади и расположения, является наличие семи панорамных окон. С другой стороны, тот факт, что эти окна занимают большую часть периметра наружных стен, серьезно осложнило процесс разработки планировочного решения, т.к. мы были ограничены в свободе расположения перегородок.
Общественная зона квартиры представляет собой открытое перетекающее пространство прихожей и кухни-гостиной, приватные же зоны скрыты от чужих глаз. Правая часть квартиры принадлежит хозяину квартиры и его увлечению игрой на электронной гитаре. Здесь же планируется проводить музыкальные вечера, поэтому спальня расположена в противоположной, тихой части квартиры. Гардероб размещен в отдельном помещении, чтобы один из супругов при переодевании не мешал другому отдыхать. За ним – кабинет хозяйки, которой для комфортной работы требуется длинный стол. Стандартную дверь между кабинетом и гардеробной не установить из-за окна, поэтому мы придумали откатную зеркальную дверь, которая решает сразу несколько задач.

Семейное гнёздышко | ЖК Clever Park
Наши заказчики приобрели данную квартиру для своей большой семьи. Дети и семья для них на первом месте, поэтому мы решили выстраивать идею оформления интерьера именно на основе семьи, уютного семейного гнёздышка, теплого домашнего очага. Семья – это оберег, это место, где мы чувствуем себя счастливыми. Именно в семье человек растет и развивается.
Для того чтобы данную квартиру сделать по-настоящему удобной, нам пришлось её полностью перекроить. Первые изменения коснулись зоны прихожей – мы сделали её непроходной. Расположили вместительные шкафы для верхней одежды, а также организовали зону быстрого гардероба. Также появились две отдельные детские комнаты, разнесенные в разные части квартиры. Спальня родителей отнесена от детских комнат и отделена дополнительным буфером в виде кухни-гостиной. У нас получилась мастер-спальня: вместительная гардеробная, кровать и просторная ванная комната, которую мы увеличили за счет бесполезного коридора. Кухню мы предложили перенести на место бывшего холла. По закону кухни можно размещать над нежилыми помещениями. С коммуникациями проблем не будет – они пройдут за стенкой ванной, рядом находится стояк канализации. В новой компактной кухне-гостиной мы разместили кухню с островом, обеденный стол со стульями и диванную группу. Напротив кухни мы организовали рабочий кабинет, пожертвовав частью детской комнаты. Рядом с другой детской расположена постирочная, в которой будут стоять стиральная и сушильная машины и прочий инвентарь для уборки.

Дизайн-проект квартиры в Клубном доме Тихвин
Клубный формат жилого дома подчеркивает уникальность и статус заказчиков. Эти качества мы взяли за основу при разработке интерьера, использовав выверенные дизайнерские решения и применив качественные материалы. В интерьере нет ничего случайного и безликого, здесь все подчинено запросам и комфорту хозяев.
Поскольку одной из главных задач было заложить в интерьер высокие презентационные характеристики интерьера, большое внимание уделили входной зоне. Выстроили геометрически правильный восьмиугольный холл, задействовав «лишнюю» площадь под технические помещения и гардероб. Развивая идею единого пространства, демонстрирующего вкус и элитарный образ жизни хозяев, кухню-гостиную спроектировали таким образом, чтобы максимально спрятать функциональные зоны. В дополнение к общесемейной гостиной, создали «каминную» комнату, которую можно использовать как для тихих уединенных вечеров, так и для шумных вечеринок. Обособленный блок помещений для родителей состоит из спальни, гардеробной комнаты и просторной ванной с окном. Одно из самых больших по площади помещений отдано под детскую дочери-подростка, т.к. дети в этом возрасте зачастую проводят большинство свободного времени дома, изолируясь в своей комнате.

На светлой стороне | 2-х комнатная квартира
Дизайн-проект 2-х комнатной квартиры в г. Ревда
В планировке изначально был очень длинный коридор, который переходил в такой же коридор. Всё выглядело клетушечно: мало свободного места, небольшие санузлы, небольшая кухня, небольшая гостиная. Нам необходимо было максимально раскрыть основное пространство — гостиную. При этом она должна была выступать не только гостиной, но и спальней хозяйки. Кроме того, нам нужно было сделать детскую и, не меняя остальную планировку, максимально эффективно использовать пространство для постирочной, ванны, кухни-обеденной и детской.
Мы предложили объединить коридор и гостиную, что максимально расширило пространство и добавило воздуха и света. Обособив прихожую, сделали её буфером между жизнью вне дома и домом: человек, приходя домой, может переключиться на домашние дела и отдых. В гостиной места маловато, но мы всё равно решили не делать диван-кровать. Вместо этого отделили кровать стойками из дерева, сохранив при этом воздух и объём, а вертикальные линии сделали потолки визуально выше.
В гостиной выделили три основные зоны: спальню, гостиную и гардеробную в проходной зоне. Кухня здесь небольшая, и круглый стол как нельзя кстати сохранит нам свободные квадратные метры, при этом функционально разместив за собой четырёх человек. Ванную и туалет мы объединили, чем освободили место для водонагревателя и постирочной — её мы решили сделать отдельно, т.к. места для неё ни в одной комнате не хватало, а ванная комната обязана быть только для релакса. Детская также разделилась на три зоны — гардеробную, зону игр и сна, а также зону для учёбы и хобби.

Альпийские просторы | Интерьер дома
Дизайн-проект интерьера дома для семейной пары в г. Снежинск.
Наши заказчики давно мечтали о своем доме, для отдыха от душного и шумного города, для уединения, для души. Поэтому концепция интерьера стала отражением мечты наших заказчиков. Для них самый лучший отдых – это лесные склоны, горы и горные озера. Мы подумали, что же может их объединить? Конечно же Альпы! Зеленые поля с пасущимися коровами, лесные склоны, свежий горный воздух, огромные рельефные скалы с заснеженными вершинами – все это создает определенную атмосферу, которую мы постарались передать в интерьере.
Нашей главной задачей была работа с существующей планировкой. Единственное изменение, которое претерпела планировка – это перенос двери в санузел, который обеспечил более комфортную логистику. Остальные задачи решали расстановкой мебели в существующих стенах: в кухне-гостиной мы выделили кухонную зону с островом, столовую зону для приема пищи и зону гостиной с угловым диваном и уютным креслом; в ванной и санузле удобно разместили всю необходимую мебель и сантехнику.

Все по полочкам | ЖК Тринити
Заказчики достаточно конкретные люди и точно знали, чего хотели. Максимум контрастов, сочетание дерева и черного, любят атмосферные интерьеры, но абсолютно не терпят бардак! Поэтому - минимум открытых поверхностей, максимум функционала и максимум атмосферы - так мы пришли к идее «все по полочкам», используя различные стилистики: от минимализма до лофта и эко. В итоге мы создали по-настоящему атмосферный и функциональный интерьер!

Кабинет психолога в БЦ SAMMIT
Идея интерьера родилась сама собой исходя из функционала. Это кабинет психолога, а к психологу идут, когда есть какие-то проблемы. Поэтому главная идея заключается в том, что пространство должно успокаивать и вызывать доверие.
Вообще, психолог в нашей стране - явление достаточно экзотическое, так уж сложилось. Не привыкли мы к помощи психолога. А к чему привыкли? К посиделкам на кухне. Там и праздник отмечали, и решали психологические проблемы друг друга. Все вопросы и проблемы обсуждались десятилетиями на кухне, к этому мы и привыкли, поэтому мы решили так — чтобы наш интерьер располагал и вызывал желание к доверительному разговору, мы решили придать ему небольшой налет советской квартиры с аскетичным ремонтом и минимальным набором мебели.
По сути, остается цвет, с которым мы работали. Подборку цветов мы делали исходя из следующей «картинки» - отдых на природе. Ведь это любит каждый. Природа обладает магическим свойством успокаивать и расслаблять, поэтому наверное мы так стремимся на природу.
Эти два элемента — «отдых на природе» и «разговор по душам в советской кухне» стали отправной точкой для создания интерьера.

Silenzio | ЖД Коперник
В квартире будет проживать супруги - муж и жена. Она элегантно и стильно одевается, любит пастельные тона, не кричащие цвета и акценты, занимается медициной. Он предпочитает спокойный и сдержанный стиль, хорошо разбирается в механике и инженерии. Оба любят качество в деталях, на первый взгляд не заметное. Есть двое взрослых детей и внучка (живут отдельно, часто приходят в гости). Познакомившись с этими людьми, нам захотелось создать легкий, надежный, функциональный образ и атмосферу тишины и покоя, уюта. Так и родилось название проекта.

Домашний SPA-комплекс на озере Увильды
Идеей при проектировании бани стало создание такого уникального места, где заказчик сможет отдохнуть от городской суеты, обрести внутреннюю гармонию, расслабиться и насладиться красотой природы, которая проникает в интерьер. Вдохновением послужила гармония души и тела, которую мы ощущаем в SPA. Это уже не просто баня, а персональный wellness на природе.

Сад Живерни | 4-х комнатная квартира
Дизайн-проект четырехкомнатной квартиры для супружеской пары площадью 87 кв.м.
У заказчиков очень сложная работа, связанная с медициной, с постоянным общением с людьми. И приходя домой, им необходимо уединение и отдых. На наш взгляд, именно единение с природой помогает качественно восстановить силы. Оказалось, что им очень близко творчество импрессионистов, которые так любили писать солнечные пейзажи. При создании этого интерьера мы вдохновлялись картинами Моне и его прекрасным садом в Живерни. У нас получилась своеобразная игра в сад. Элементы и цветовые акценты, которые мы использовали, создали необходимую атмосферу тепла и безмятежности, которыми пропитан цветущий сад.

Из однушки в трешку | ЖК Макаровский
Дизайн-проект однокомнатной квартиры в ЖК Макаровский.
Как сделать красивый дизайн при ограниченом бюджете? В этом интерьере мы решили "пальнуть" сразу из трех крупнокалиберных пушек: идея, цвет и юмор. Необходимо было придумать идею, смело ее раскрасить, не боясь применить цвет, и приперчить все это юмором. Маленькие интерьеры кажутся скучными из-за их размера: быстро все увидел, изучил, и все - он тебе наскучил. Но когда есть капелька юмора, он никогда не надоест, будет свеж и современен.
Наша идея - путешествие в сказочный мир, в некое райское место. Классное, светлое, и позитивное. И добились мы этого с помощью контраста тонов и цвета, ловко управляя взглядом зрителя.

Hecho A Mano Con Amor | Дом в Испании
Дизайн-проект жилого дома в Испании для семьи из 4х человек. Основным вдохновением для нас стала сама талантливая хозяйка дома, которая увлечена эстетикой деревянных резных изделий ручной работы и сама изготавливает авторскую керамику, что безусловно нашло отражение в интерьере. Именно поэтому проект получил название HECHO A MANO CON AMOR (в переводе с испанского - Ручная работа с любовью). Цветовая гамма интерьера наполняет пространство дома морским бризом, теплым песком бухты дель Боске и разнообразной зеленью.

Роскошная простота | ЖК Нагорный
В квартире будет проживать одна женщина. Она элегантно одевается, предпочитает ягодные оттенки в своем гардеробе. Характер новаторский, решительный. И в качестве одного из хобби - швейное дело. Именно считав ее образ, характер и увлечения, мы провели некую параллель между заказчицей и Коко Шанель. И попали в точку. Изучив особенности стиля Шанель, каждое из помещений мы одели в свой неповторимый наряд. Интерьер получился утонченным, сочным, строгим, но в то же время простым и роскошным. Отсюда и название этого проекта.

Природный контраст | Дизайн фасада бани
Заказчик очень любит путешествия, особенно по России — по Уралу, Байкалу и т.д. Мы же увидели в заказчике человека, для которого контраст является необходимым элементом. Связав всё вместе, мы пришли к идее природных мотивов. В природе всё смотрится органично, даже контрасты. Туман и камень, дерево и вода, оранжевый закат и синее небо, все противоположности притягиваются и создают некую идеальную среду, в которую мы и захотели поместить нашего заказчика. Так появилось название "Природный контраст".
При помощи плитняка на цоколе и отмостке мы приземлили дом и дали ему зрительную точку опоры. Всё здание выкрасили в благородный цвет, что хорошо вписало его в существующий ландшафт — он будет смотреться гармонично и летом и зимой. Тёмная обналичка и пол задают некий контраст и придают интересный вид. А подсветка в ночное время подчёркивает каждый архитектурный элемент, и дом в целом выглядит очень красиво.

Природный контраст | Дизайн интерьера бани
Заказчик очень любит путешествия, особенно по России — по Уралу, Байкалу и т.д. Мы же увидели в заказчике человека, для которого контраст является необходимым элементом. Связав всё вместе, мы пришли к идее природных мотивов. В природе всё смотрится органично, даже контрасты. Туман и камень, дерево и вода, оранжевый закат и синее небо, все противоположности притягиваются и создают некую идеальную среду, в которую мы и захотели поместить нашего заказчика. Так появилось название "Природный контраст".

Nouveau Classique | ЖК Женева
Nouveau Classique - дизайн-проект квартиры для холостяка: прогрессивного и продвинутого молодого человека.
Нам хотелось показать чувство свободы, стиля и чистоты мышления нашего заказчика. При этом очень важно было создать атмосферу утончённой изысканности и уюта. Отсюда родилась идея использовать европейскую стилистику с нотами Франции. С новым прочтением классики, т.е. чистые, изысканные формы и линии, материалы и фактуры.

Ла Зения | Дом в Испании, Аликанте
Индивидуальный архитектурный проект дома в Аликанте, Испания. После анализа ситуации вокруг мы поняли, что соседние строения морально устарели и не имеют ни архитектурной, ни исторической привлекательности: все дома будто нагромождены из непонятных объемов и линий. Мы же решили максимально выделиться и сделать дом современным, с использованием современных технологий и материалов. Дом должен максимально нравиться обычному обывателю. Исследуя тренды среди покупателей жилья, мы выявили подходящую стилистику. Дом разбили на несколько основных объемов, а чтобы подчеркнуть это, использовали разную высотность-уровневость, логичность линий и разнообразие в цветовой палитре: от белого через дерево - в бетон, и в черный. Все линии и объемы простроены так, чтобы у них было логичное завершение или продолжение. Используя золотое сечение мы определили, как те или иные пропорции должны работать друг с другом. В итоге дом получился свежим, интересным и современным.

Без вариантов | ЖК Макаровский
Дизайн-проект просторной квартиры для семейной пары с ребенком в ЖК Макаровский. При разработке дизайн-проекта мы всегда отталкиваемся от личности наших заказчиков, их увлечений и анализа подобранных аналогов. В данном случае, заказчика не интересовали интерьеры с историей. Поэтому мы работали с аналогами заказчика. Мы выделили приватную, общесемейную (общественную) и хозяйственную зоны. В приватной части квартиры расположили мастер-спальню с гардеробом и ванной, детскую, гостевую спальню, которая в дальнейшем станет второй детской и санузел. Общественная часть – огромная кухня-гостиная, которая включает в себя зону гостиной с большим телевизором, зону кухни с вместительным островом, зону столовой у панорамного окна с шикарным видом и зону кабинета хозяина, которая зонирована декоративными панелями. Для хозяйственных нужд выделили отдельную постирочную комнату и вместительную зону хранения в прихожей и холле.
Счастливы вместе: фото реализации
Фотографии двухкомнатной квартиры в ЖК "Ударник" для семьи с двумя детьми, которые будут жить в отдельной квартире по соседству.
Заказчице нравятся элементы современной классики, а заказчику интерьеры в стиле лофт. Чтобы совместить такие разные видения будущей квартиры, мы пошли на компромисс и очень удачно всё это замиксовали. А еще у супругов очень романтичные и теплые отношения, любят свободное время проводить наедине друг с другом. Отсюда и название "Счастливы вместе", которое отражает атмосферу в семье и сочетание несочетаемых на первый взгляд вещей.
Детская квартира: фото реализации
Заказчики купили две квартиры, но объединять не стали, решили поселить детей отдельно. Ситуация непривычна, но научно обоснована. Подростку необходимо более автономное место в доме, с более выраженным характером, способствующее проявлению большей независимости, чем детская комната в квартире родителей. Мы учли предпочтения детей к своим комнатам, которые кардинально разнятся, но не смотря на это, можно быть "Счастливыми вместе".
У детей разные предпочтения как в цветовом, так и в стилевом оформлении. Поэтому помещения общего пользования сделали нейтральными и постарались гармонично объединить все цвета, которые присутствуют в их личных комнатах. Получился интерьер с интересным декором, который добавил и уют и функциональность.

Гранатовая скала
Перед тем, как начать проектирование, мы провели серьезнейший анализ всего, что связано с местом. Проанализировав историю места, его "силу", мы выяснили, что и из сказов Бажова, и из местной истории, самое главное - это сама земля, её богатства и разнообразность полезных ископаемых, для добычи и обработки которых использовались, и вода (водяные колеса) и воздух (мельницы) и огонь (печи для плавки металла). И все это было сосредоточено в одном месте. Исторически здесь были перевалочные пункты различных народностей, но тут пересекались не только дороги, но и стихии. Это стало отправной точкой для идеи. Планировку сделали ступенчатой, чтобы снивелировать уклоны местности, и объединили уровни длинной прямой лестницей. Она стала объединяющим фактором: для идеи - она стала "Землей", "скалой", которая собирает вокруг себя все стихии, а в архитектурно-планировочном решении - собрала все объемы воедино. Она будто стала продолжением скалы.
Сияние Авроры: фото реализации
Фотографии двухкомнатной квартиры площадью 81 кв.м. в ЖК Clever Park

ЖК Проспект Мира - Дизайн мест общественного пользования
ЖК Проспект Мира - Дизайн мест общественного пользования, г.Екатеринбург.
Исторически компаунды это таунхаусы, расположенные на обособленной территории, строящиеся как правило в пригороде. В современном мире этот формат жилья несколько трансформировался и предполагает сочетание разных форматов жилья, в том числе многоэтажек, расположенных на обособленной, закрытой территории в городе. Такая своеобразная концепция "город в городе" с высокоразвитой инфраструктурой и повышенными требованиями к безопасности. Компаунды распространены в Китае, Египте, Саудовской Аравии. Их основное преимущество - ограниченный режим доступа на территорию для "не жителей" и возможность проживать там автономно, не выходя за территорию. Как это будет реализовано в компаунде Проспект Мира можно узнать, зайдя на одноименный сайт. А перед нами в процессе проектирования были поставлены следующие задачи.
1. Интерьер должен ассоциироваться у жильцов со стабильностью, уверенностью и безопасностью.
2. В дизайне желательно использовать элементы классического стиля.
Для удобства восприятия подобрали для интерьера ассоциацию с известным брэндом одежды. Они точно знакомы будущим жильцам, ассоциируются с классикой, стилем. Подразумевают «Знак качества». Так у нас родился интерьер в стиле магазинов CHANEL: уверенный, стабильный, дорогой.

Проект благоустройства внутренней территории (двора)
Компаунд «Проспект Мира», г. Екатеринбург.
Дружелюбная территория - это двор, в который хочется выйти и проводить там время. Для этого каждый его уголок должен быть продуман.
Для решения задачи всю территорию мы поделили на функциональные зоны, подходящие для разных возрастных категорий. И для каждого предложили свое занятие. Здесь есть где прогуляться родителям с коляской, предусмотрены песочницы и лазилки для детей. Есть скамейки для пожилых пар и людей с детьми, спортивная площадка для подростков и взрослых, а также укромные уголки для влюбленных парочек.
Также есть общая прогулочная зона с фонтаном и с подсветкой, вмонтированной в пол. Вечером она будет очень красиво смотреться из окон. Фонтан установили сухой - струи воды вылетают прямо из ровной поверхности тротуара. В таких фонтанах очень любят играть дети, и он будет актуален летом, в жаркую погоду.
В центральной аллее предусмотрен мини-ручеек, где можно прогуливаться и пускать кораблики. Зимой, когда вода естественно невозможна, на этот фонтан устанавливается елка. В другие времена года, когда актуальны другие праздники, здесь также можно проводить любые мероприятия.
Высокие борта вокруг деревьев не только защищают клумбы от вытаптывания, но и являются удобными скамейками, на которых можно сидеть.
Все элементы архитектуры, такие как трансформаторные будки и вытяжные системы, мы спрятали и замаскировали под интересные различные элементы. Например, грифельная доска для детей, где они могут порисовать мелом рядом с песочницей. Или пергола с перфорированными листами: под ней можно прогуливаться и выглядит это как интересный арт-объект.
В жилом дворе нужно предусматривать проезд пожарной машины. Мы не стали делать широкие дороги - вместо этого засадили территорию травой и сделали условные следы, по которым может проехать машина. Это очень классное решение: пожарный проезд есть, но он не выглядит, как дорога. Двор выглядит как двор, а не как проезжая часть. Также, что немаловажно, здесь не паркуются машины. Это будет двор только для людей, только чтобы проводить здесь с комфортом время. В такой двор можно безопасно выпустить детей, самому посидеть с книжкой или поработать с ноутбуком. Яблони летом будут красиво цвести и давать хорошую тень.
Парковка располагается под всем двором. Мы предусмотрели такие насаждения и такие решения (определенная толщина грунта, ливневка и пр.), которые позволяют растениям расти прямо на парковке, и чтобы это функционировало и выглядело красиво на протяжении многих лет.

Дом-книга
Дизайн фасада здания коворкинга в Брянске.
В данном проекте мы учли особенности не только здания, но и его назначения в прошлом и в будущем. Раньше это был банк, а сейчас там будет новый красивый коворкинг. Эта мысль никак не выходила из головы и мы стали думать, как связать одно с другим... В банках всегда есть кипа документов, папок, а в коворкингах помимо этого есть множество книг, брошюр и т.д. Так в мысли прочно засела именно книга. Чтобы понять книгу, необходимо было изучить структуру (это было не сложно, у нас в офисе их огромное количество). Самая архитектурно выразительная часть книги - это та сторона, где видны страницы и так называемые переплетные крышки. Вот эту красоту книги мы и применили на фасадах. Применили с фантазией и расчетом: некоторые книги стоят, некоторые лежат, но в целом это создает очень выразительные, нетривиальные и интересные с любой точки зрения фасады.

Впустить природу
Наши заказчики давно мечтали о своем доме за городом, в окружении природы, поэтому концепция интерьера стала гармоничным продолжением этой мечты. Впустить природу в дом, созерцая ее красоту и совершенность.
Как таковую перепланировку мы не делали, но предложили более функциональный и визуально интересный вариант расстановки мебели. Ключевым элементом дома предложили сделать очаг — круглый панорамный камин, огонь внутри которого будет виден со всех сторон, со многих точек в доме. Столовую зону разместили глубже, так как прежде она просматривалась с порога дома, что лишало хозяев чувства защищенности и уюта. Предложенная нами Г-образная кухня в данном случае более функциональна, чем П-образная, поскольку оборудование «рабочего треугольника» расположено компактно, и хозяйке не придется много крутиться. В зоне столовой добавили вместительный буфет для посуды, скатертей и пр. Изменения затронули и ванную комнату. Мы предложили прорубить окно, чтобы осветить интерьер естественным светом. Под окном расположили большую раковину с тумбой, справа — вместительную душевую.

Обуздать хаос
Заказчики обратились к нам, имея за плечами неудачные попытки справится с планировкой квартиры самостоятельно. Укротить эти 154 кв.м. со множеством углов и учесть при этом немалый список пожеланий семьи — такое по силам только профессионалам. Мы помогли хозяевам обуздать хаос и при этом подчеркнуть самобытность дома. Получился интерьер с лофтовой эстетикой, в котором чувствуешь себя свободным. Для большего эффекта, часть отделки сохранили первозданной — кирпичные стены отчистили от штукатурки, потолочные плиты перекрытия покрыли матовым лаком. Брутальность поверхностей компенсируется природными оттенками в мебели, мягким текстилем, рукотворным декором.

Концепция благоустройства прилегающей территории г. Москва
Основная идея концепции — включение природных элементов для гуманизации среды. Так в отделке спроектированных нами скамеек и беседки используется деревянный брус и камень в сетке. Также мы добавили элементы газона с высокой «пампасной» травой и деревом в гранитном покрытии тротуара.
Участок газона перед главным входом озеленен разными типами растений, которые в разные периоды обладают разными декоративными свойствами. Здесь реализована идея оазиса в городской черте: внутрь газона можно зайти и посидеть.
Другое место для отдыха — крытая беседка из дерева и стекла, сиденья выполнены из камня в сетке, покрытые сверху деревом. Для того, чтобы обеспечить безопасное и комфортное перемещение пешеходов, проектом предусмотрен высокий тротуар с укладкой контрастного по цвету гранита. Тротуар непрерывный, в месте пересечения с транспортом предусмотрен плавный опуск.

Таинственный остров
Заказчики очень занятые люди, и отдыхают только в выходные. Поэтому мы решили сделать квартиру для отдыха. Заказчики любят природу, в частности, отдыхать на море. Мы решили черпать вдохновение именно от их увлечений. Отсюда и родилась идея о создании таинственного острова, на котором есть волшебное место – некий оазис, который делает людей счастливыми. И заказчики приехали на этот остров, чтобы найти его.

Фасады Торревьеха
Дизайн фасада дома в Торревьеха, Испания.
В изначальном варианте решения фасадов было слишком много камня. Из-за этого дом смотрелся очень тяжело несмотря на то, что классические испанские фасады разбавляли современные элементы - стеклянные балконы, зимний сад и т.д.
Мы решили, что необходимо отойти от первоначальных испанских традиций и перейти к более новой, "колониальной" трактовке данных фасадов с современными элементами (витражное остекление в пол).
Поработали над правильностью расположения окон, над отделкой поверхностей. Исключили полукруглые арки и вообще убрали круги из фасадов. Разработали новую, очень крутую входную группу, которая прямо приглашает в дом. Несколько помпезно, но по современному применили кованные элементы. Колонны стали своим родом остовом, на котором стоят балконы и террасы (сделали их комбинированными: дерево + камень).
Колониальности так же добавили молдинги и различные карнизы.
Осталось место и для элементов доколониального периода: так на фасадах появился грубый камень, в частности таким образом мы выделили объем башни. В итоге получили крутое сочетание как в материалах, так и в стилистиках и цветах.

Уют в квадрате
Дизайн фасадов двух домов в Ла Мата, Испания.
Исходя из прямых форм наших домов, а так же поставленных задач, проект можно назвать "Уют в квадрате". Мы подчеркнули основополагающие линии зданий, дали завершенность спорным линиям. В проекте появилось дерево, чтобы подчеркнуть уютность и теплоту (не бездумно, а именно там, где оно было необходимо). Серый явился неким фоном для форм, линий, а так же других текстур и фактур, таких как дерево (оно стало выглядеть только эффектнее), стекло и белая штукатурка. Так как в Ла Мате очень жарко днем, а дом предназначен для покупателей из скандинавских стран, то и жизнь (тусовки, посиделки и веселое времяпровождение) в доме будет просыпаться ближе к вечеру, поэтому мы решили подчеркнуть формы и линии дома при помощи архитектурной подсветки.
2 дома стоят рядом и было необходимо создать архитектурный ансамбль - этого мы добились при помощи схожих приемов и материалов, при этом каждый дом остался индивидуален и по-своему оригинален!

Отпуск каждый день
Трехкомнатная квартира 130 кв.м в Екатеринбурге.
Заказчики занятые люди, с двумя маленькими детьми и им катастрофически не хватает времени на отдых и отпуск. У нас появилась идея отправить их в долгосрочный отпуск прямо в квартире с обновленным интерьером. Для них самый лучший отдых - это горы, горные озера, посиделки у костра. К тому же для них очень важна очистка воды и воздуха в квартире, это нас также отсылает к чистоте природы вдали от цивилизации. Свежесть горного воздуха, заснеженные вершины, гладь озера - все это создает умиротворяющую атмосферу, которую хочется созерцать и отдыхать душой и телом. С помощью цвета, материалов, форм мы передали это в интерьере.

Шале Прерий
Одной из задач было применить в разработке фасадов стилистические предпочтения заказчика (Современный + Шале).
Дом изначально зрительно разделен на 3 части, что визуально подчеркивалось еще и ландшафтом. Поэтому мы решили зрительно объединить все при помощи схожих приемов: ковка, материалы, столбы и т.д.
Шале подразумевает под собой использование открытых конструктивных элементов, таких как стропила, балки, стойки и прочее, а так же разделение на 2 и более уровней при помощи материалов (дерево, камень, штукатурка). Мы не стали отступать от канонов и применили все это, а так же использовали некоторые наработки Фрэнка Ллойда Райта из серии домов прерий (как некое современное дополнение).
В итоге получили "Шале Прерий", где все объемы встали на свое законное место, нет лишних линий - и все смотрится единым ансамблем.

Дом Вашингтон
Дизайн фасада индивидуального жилого дома в г.Вашингтон, США.
Наша задача состояла в «обновлении» фасада дома перед его продажей. Заказчику хотелось сделать дом, с одной стороны, более интересным и выделяющимся среди окружения, а с другой — органично его вписать в окружающую среду.
Ситуация на местности подсказала решение по оформлению фасада. Дома рядом очень консервативные - много отделано белым или серым сайдингом. «Наш» же дом архитектурно выгодно отличался, поэтому не потребовалось добавлять или убавлять объемы. В общую архитектуру окружения дом вписали путем добавления горизонтальных линий с помощью планкена. Добавили цвета в деревянную составляющую, контрастно выделили объемы при помощи штукатурки (фоном в данном проекте стало именно дерево).
В результате Дом стал выглядеть более правильно с архитектурной точки зрения, качественно выделяется на фоне близстоящих построек, и, что также немаловажно, органично вписывается в окружение.

Дом в деревенском английском стиле
Изначально у заказчика был типовой проект, который поставили на участок, но он не учитывал стилистические запросы заказчика, запросы на количество и метраж помещений (был слишком маленьким), а так же особенность ландшафта (в частности был неудобным заезд в гараж). Заказчик предоставил нам только один аналог - остальные ему все не понравились. Было необходимо жестко придерживаться стилистической направленности, а так же настроению дома, который был на аналоге. В итоге внешне получился дом в английском деревенском стиле с кирпичной, деревянной, а так же каменной отделкой.
В основе лежит форма параллелепипеда, к которому как бы приращиваются другие формы и линии. Сложная кровля позволяет задать неоднотипность постройки, а многоуровневость фасадов и сложность отделки, избавляет нас от скучности и педантичной правильности английского подхода.
Таким образом, дом получился не только атмосферным снаружи, но и очень удобным в быту и жизни.

Нота шафрана
Летняя терраса пятизвездочного отеля Хаятт Ридженси Екатеринбург.
Перед нами стояла задача создать интерьер отдельно стоящей летней террасы, являющейся частью пятизвездочного отеля Хаятт Ридженси Екатеринбург и реализовать его под ключ за 4 месяца (проект, закуп, ремонт, финишное декорирование).
За основу идеи интерьера мы взяли высокую кухню парижских уличных кафе. Блюда выглядят минималистично, но законченно и с большим вкусом.
Ахроматическая цветовая схема (оттенки серого, графитовый, черный) разбавлена яркими линейными объектами — горизонтальные жалюзи медного оттенка, повторяющие фасадное решение отельного комплекса зданий, и подушки на диванах цвета шафран. Они и стали тем завершающим штрихом, который подобно кулинарной пряности, обогащает и украшает «блюдо».

Дом-река
Просто творить в красоте, а когда окружающее пространство архитектурно разнородно, то единственное, что представляется возможным - это отрешение от всего, что есть рядом. Идею подкинула река, которая течет прямо перед домом. Именно она стала связующим звеном.
Не было ничего кроме света и реки. Все мы в детстве бегали по речному песку, оставляя следы, которые речная волна смывала, не оставляя и песчинки нашего присутствия... Линии реки, цвет песка на берегах - это все, чему должно было подчиниться строение.
Мы привязали дом к местности! Формы продиктованы планировками и инсоляцией. Все важные помещения должны быть красиво освещены естественным светом: отсюда стеклянный пол в зоне отдыха.
Так появился этот дом, который сам по себе - арт-объект, именно поэтому здесь нет лишних насаждений и декора.

Оттенки лесного утра
Название-идея проекта появилась из истории, которую мы придумали, пообщавшись с заказчиком. Хозяин дома любит природу, охоту, рыбалку и утренние прогулки по лесу. Ранним утром мы выходим на прогулку по еще полуспящему лесу. Туман. Восходящее солнце. Небо еще не полностью озарилось светом. Мох. Черника. И вот мы, прогуливаясь по этому утреннему раю, собираем чернику в лукошко. Нагулявшись вдоволь, возвращаемся в уютный дом, где бабушка или мама готовит из наших ягод вкуснейшие пироги. Мы кушаем их за завтраком с горячим чаем. День начался!

Утонченная роскошь дом
Дом мечты в пайн-крик был изначально ограничен требованиями коттеджного поселка: вся стилистика была разработана сторонними архитекторами и первые очереди уже были построены. Но у нас все-таки появился шанс немного видоизменить внешний облик и архитектурную составляющую дома. Все разработанные дома были одноэтажными и находились на прямых горизонтальных участках. У нас же участок имел серьезный уклон и мы сделали так, чтобы ни капли полезного пространства не потерялось. Чтобы использовать местность по полной, мы сделали дом двухэтажным: 1-й этаж является и первым и цокольным,а второй, по логике, превращается с одной стороны в первый, а с другой - во второй. Со стороны дороги дом выглядит, как двухэтажное здание, а с обратной стороны очень напоминает те одноэтажные дома, которые изначально были предложены архитекторами поселка.
В архитектурную составляющую вошли три основных объема: 1 - объем самого дома со скатной крышей (повторяющей скаты близлежащих домов), 2 - объем так называемого буфера или закрытой отапливаемой веранды с плоской кровлей, 3 - объем бассейна, так же с плоской кровлей. Все это дало нам необходимую динамику фасада и разнообразие форм, линий и объемов.
Одной из фишек являются огромные витражные окна, которые выходят на самые главные виды в КП - гольф поля. В отделке фасада мы использовали камень, дерево, штукатурку с покраской. А так как дом имеет большие окна, к этому списку можно добавить и стекло. Для выделения каждого из объемов мы на каждом из них использовали различные материалы, а объеденили их при помощи схожести прямых линий окон и конструктивных элементов. Что бы фасады не выглядели плоскими, добавили такие элементы как фальш-балки, балконы и разделение фасадов как по горизонтали, так и по вертикали: 1-й этаж - камень, 2-й - дерево и штукатурка.
Мы постарались, чтобы ландшафтная составляющая подчеркивала многослойность и многообразие форм самого дома. Этого добились при помощи ландшафтных террас и ограждающих конструкций из бетона, а так же при помощи насаждений и световых акцентов.
Все это позволяет нам говорить о том, что дом действительно можно с гордостью называть "дом мечты".

Таня+Юра
Наши заказчики — молодая, озорная, спортивная семья с малышкой-дочкой. Они и стали нашим вдохновением, концепцию мы назвали Таня+Юра. Главные «герои» любого интерьера — это хозяева, их харизма и энергия нуждаются в интересном и подходящем именно им обрамлении.

Мой дом - моя крепость
Дом выполнен в стилистике Баухаус 60-70-х годов с поправкой на современные решения и материалы. Сегодня эта стилистика затягивает все больше и больше архитекторов и любителей экстерьеров. Дом выглядит современно, сдержанно и лаконично. Суть идеи состоит в том, чтобы с одной стороны показать аскетичность архитектурных решений и форм, а с другой - сделать его теплым, уютным и приветливым. Чтобы показать некую мощь и надежность, мы применили на второстепенных фасадах бетон, а на главный фасад добавили дерево и подсветили, чтоб дом казался еще теплее. Одна из фишек дома - это линии. Одна из них идет буквой П, а другая буквой Г. Они выполнены в бетоне, и как бы защищают деревянную составляющую. Деревянные фасады - это уют, тепло, очаг: все то, что мы хотим видеть в своих домах и интерьерах, а бетонная составляющая - защита, обособленность, надежность!

Галерея гламура
При разработке дизайн-проекта мы всегда отталкиваемся от личности наших заказчиков. В этом проекте мы предложили идею арт-пространства, в котором пол, стены и потолок станут фоном, а мебель и декор — экспонатами, притягивающими взгляд.

Сияние Авроры
Заказчики любят природу, прогулки в лесу, созерцание. Мы вдохновились этими увлечениями и подумали о невероятном по красоте природном явлении — Северном сиянии. Оно поражает своими манящими красками, непредсказуемостью и загадочностью. С сиянием связано множество легенд. Одна из них повествует о римской богине утренней зари Авроре, в честь которой это природное явление получило свое название по латыни - Aurora Borealis.

Шутки в сторону
Проект "Шутки в сторону": название появилось после общения с заказчиками и анализа подобранных аналогов. Сами заказчики яркие, веселые и общительные люди с нетривиальным чувством юмора, но аналоги все сплошь серьезные, лаконичные с нотками минимализма и лофта.

Магия рассвета
Заказчики рассказали, что мечтают в новой квартире пить утром кофе и любоваться видом на город из окон. Мы подумали о том, как здорово начинать день с наблюдения рассвета из окон своего дома, наблюдать, как из ночной пустоты вдруг появляются сначала бледные полосы света, а затем все разгорающиеся, яркие растяжки цвета от голубого к красному. Это зрелище никогда не надоедает, вдохновляет, настраивает на хороший день. Так возникла концепция «Магия рассвета».

Детская квартира
Заказчики купили две квартиры, но объединять не стали, решили поселить детей отдельно. Ситуация непривычна, но научно обоснована. Подростку необходимо более автономное место в доме, с более выраженным характером, способствующее проявлению большей независимости, чем детская комната. Мы учли предпочтения детей к своим комнатам, которые кардинально разнятся, но не смотря на это, можно быть "Счастливыми вместе".

Счастливы вместе
Заказчице нравятся элементы современной классики, а заказчику интерьеры в стиле лофт. Чтобы совместить такие разные видения будущей квартиры, мы пошли на компромисс и очень удачно всё это замиксовали. А еще у супругов очень романтичные и теплые отношения, любят свободное время проводить наедине друг с другом. Отсюда и название "Счастливы вместе", которое отражает атмосферу в семье и сочетание не сочетаемых на первый взгляд вещей.

Утонченная роскошь
Дизайн-проект частного дома площадью 462 метра в Свердловской области.

Фотографии реализованного проекта квартиры 90 кв.м в ЖК Московский квартал
Ничего лишнего. Фотографии реализованного проекта квартиры 90 кв.метров в ЖК Московский квартал

Воздушный контраст
Интерьер однокомнатной квартиры в Москве площадью 50 кв.м.

Структура и свет фото
Двухкомнатная квартира для мужчины - холостяка площадью 129 кв.м. Интерьер решен крупными формами и геометричными элементами. К этому располагает конструктив квартиры: большая площадь и высокие окна, насыщающие пространство светом.

Рыцарь круглого стола
Классический интерьер загородного дома в поселке Палникс площадью 242 кв.м.

Жизнь в "Мечте"
Уютный и спокойный интерьер в ЖК "Мечта" с использованием дерева, бетона и камня

Розовый фламинго
Неординарный интерьер в стиле "смелая классика". За основу взят классический стиль и разбавлен нестандартными элементами с активным дизайном. В коридоре - "супергламурным" столиком от "KARE" и светильниками неправильной трапециевидной формы "AXOLIGHT", на кухне - коралловыми стульями от фабрики "B&B Italia", в гостиной - картиной с изображением джунглей, в спальне - розовым фламинго.

Немецкий вкус
Интерьер трехкомнатной квартиры площадью 65 кв.м. для молодой семьи

Скандинавская легкость
Интерьер четырехкомнатной квартиры площадью 101 кв.м. для семьи из четырех человек

Уютная классика

ФОТО Квартира с характером
У заказчиков было много идей будущего интерьера, все из которых мы постарались гармонично разместить под одной крышей. "Яблочную" кухню, о которой мечтала заказчица, санузел с джунглями, ванную в морском стиле с 3D-полом, спальню с бубном, напоминающем заказчикам о жизни на севере.

51 оттенок серого ФОТО
В этой квартире для юной девушки-студентки одна комната отдана под спальню, а другая целиком под гардеробную. В интерьере много дизайнерских фишек: минималистичная кухня "под бетон" с ажурным шкафом из стекла и металла (веяние последних европейских выставок), "теплая" ванная с тиком и декоративной штукатуркой "под травертин", стильный санузел с сияющей плиткой с эффектом чешуи и многое другое!

Северное сияние
Стильный проект квартиры площадью 142 кв.м. в Ханты-Мансийске. Интерьер выполнен в стиле арт-деко и изобилует блестящими поверхностями, золотом и серебром, зеркалами в шикарных рамах, сияющими люстрами.

Style parisien ФОТО
Интерьер для музыканта в парижском стиле. В квартире (44 кв.м.) акцент сделан не на стены, а на предметы мебели, светильники и декор.

Звездная квартира ФОТО
Эту квартиру в Екатеринбурге площадью 53 кв.м. мы сделали для известной волейболистки. Квартира получилась яркой и позитивной, полностью соответствующей своей энергичной и жизнерадостной хозяйке. Интерьер выполнен в современном стиле с использованием четких и лаконичных элементов. При этом он молодежный и даже немножко хулиганский за счет использования ярких цветов, контрастов и веселых элементов, таких как светильники в виде шляп в спальне и постеров с супергероями в гостиной. Постеры по цветовой гамме подходят всем комнатам, тем самым объединяют интерьер вокруг себя.

Первый дом
В этой однокомнатной квартире в ЖК "Мечта" будет жить пара студентов, которым родители купили квартиру. В интерьере нет каких-то очень дорогих решений, дизайн построен на интересном сочетании материалов и цветов. Чтобы выделить зоны, используются акценты в виде оригинального декора, ярких стен и потолка, необычных светильников.

Структура и свет
Интерьер квартиры для холостяка площадью 129 кв. м.. В пространстве преобладают крупные формы, геометричные элементы и натуральные материалы.

Родом из Греции
Интерьер коттеджа площадью 229 кв.м в поселке "Финский залив". Атмосфера Греции создается за счет цветов, тактильных ощущений, фактур. Основой является белая декоративная штукатурка, на фоне которой выделяются элементы декора, чистый синий цвет, текстиль в виде грубых холщовых тканей натуральных оттенков, необработанное дерево, яркие ковры

Шоколадный торт фото
Стильный и современный интерьер трехкомантной квартиры площадью 111 кв.м. В каждой комнате - свое настроение и свои эмоции. Пространство подкупает четкостью, ясность и лаконичностью.

Гостевой дом "Никольский"
Яркий и запоминающийся дизайн в стиле лофт, выполненный в лучших традициях хостелов: кирпичные стены, балки, бетон. Когда в гостевом доме "Никольский" будет останавливаться путешествующая молодежь, они будут чувствовать себя комфортно и легко, потому что будут находиться в понятном и стилистически "родном" интерьере.

Баня в поселке "Чусовское озеро"
Легкий и воздушный интерьер с обилием текстиля нежных оттенков и ярких акцентов.

Необычное в простом
Оригинальная кухня-гостиная, в которой на первый план вышло увлечение Заказчицы изготовлением изделий из керамики. Сам интерьер нейтральный и лаконичный: акцент сделан на арт-объекте из керамических шариков. Стена за диваном имитирует акварель, поддерживает ее кухонный фартук, который будет расписан лично хозяйкой квартиры.

Территория детства
Уютная квартира для семьи с четырьмя детьми. На создание интерьера общих помещений нас вдохновили работы британского дизайнера Кэлли Хопен. Кухня-гостиная представляет из себя элегантное пространство в современном стиле с классическими элементами, такими как карнизы. Детские не привязаны к идее общего пространства, каждую комнату мы сделали неповторимой и отражающей интересы ее маленького хозяина.

Цвет специй
Квартира в Екатеринбурге площадью 130 кв.м. для любителей высоких технологий

Ничего лишнего
Минималистичный стильный интерьер таунхауса в г. Лесном (Свердловская область). В доме преобладают черные цвета, скрытые конструкции, понятные материалы. В общем, ничего лишнего!

Style parisien
Во взглядах на обустройство дома Заказчик схож с европейцами, которые не видят смысла вкладывать деньги в стены. Куда правильнее, по их мнению, потратить больше средств на мебель, декор, свет - те предметы, которые, в случае чего, можно увезти с собой. Отталкиваясь от таких рассуждений, мы предложили Заказчику парижский стиль, сочетающий в себе классические и современные элементы, лепнину, качественный декор и произведения искусства. Реализовать задумку помогла необычная планировка с круглой стеной, окна в пол и великолепный вид из окна, который сам становится частью интерьера.

Гостиная-кухня для молодой семьи
Кухня-гостиная в современном стиле для молодой семьи выполнена в контрастных оттенках молочно-белого и мятного цветов

Высокий уровень
Просторная кухня-гостиная площадью 65 кв.м. с великолепным видом из окна и потолком-куполом.

Северная классика
Хозяева этого шикарного дома в поселке Финский залив любят дерево и понимают его особенности и ценность. Для них было важно сохранить цвет дерева и подчеркнуть его красоту, что мы и сделали. Стиль интерьера мы определили как модный сегодня контемпорари, в котором лаконичные современные элементы соединяются с элегантной мебелью.

Март в Париже
Интерьер выполнен в стиле европейская классика и пропитан свежестью и легкостью. В квартире нет тяжелых массивных элементов. Все вещи простые, но своей изюминкой. В квартире чувствуется торжественность, дающая ассоциации с Парижем и придающая парижский шик.

Диагонали
Cпокойный, свежий и стильный интерьер для молодой семьи с ребенком. В каждом помещении есть свой акцент, при этом пространство не перегружено деталями, как и хотели Заказчики. В интерьере много серого, но за счет использования дерева пространство выглядит теплым и домашним.

Кусочек льда
Заказчики решили обустроить себе райский уголок на морском побережье, чтобы перебраться туда жить на пенсии. Интерьер дома лаконичный и прохладный, в нем будет комфортно спрятаться от палящего солнца и суеты. В доме использованы влагостойкие материалы, римские шторы, свежие цвета.

Квартира на 20-м этаже
Хозяева квартиры на 20-м этаже в ЖК "Крыловъ" - супружеская пара, которая уже вырастила детей и сейчас живет для себя. Заказчица - открытая и легкая дама, "двигатель" проекта и его вдохновение. Ей нравятся "нарядные" интерьеры и вещи со вкусом. Заказчик - серьезный и обстоятельный мужчина, тщательно взвешивающий каждое решение. Ему больше по нраву строгие интерьеры. Объединяет семью любовь к классическому стилю, в котором и будет выполнен интерьер. Какие-то комнаты более строгие, какие-то - более "нарядные".

Шик и блеск
Хозяйка этой квартиры в Сургуте - яркая и активная девушка, которая заказала в нашей студии уже не один проект. Сейчас перед дизайнерами стояла цель создать креативный интерьер для семьи из четырех человек. Идея заключается в игре на контрастах стилей и материалов: европейские стилевые течения и ультраклассика контрастируют здесь с грубыми балками, состаренными покрытиями и блестящими поверхностями.

Квартира на Московской - реализованный
Просторная квартира в стиле минимализм с элементами эко-стиля для молодой семьи. Квартира получилась просторной, светлой. В интерьере использованы природные элементы (трава, галька, стабилизированный мох, брашированный паркет, шпонированные панели), натуральные цвета (песочный, зеленый, желтый) и мягкое освещение. Интересно обыграна сложная геометрия пространства. Изначально в квартире была только одна комната правильной формы. Нестандартное пространство с несущей колонной дизайнеры превратили в "фишку".

Большая семья
Квартира площадью 150 кв. метров для большой семьи. В интерьере использованы спокойные цвета с яркими контрастными акцентами и интересными сочетаниями.

Припыленный черный
Брутальный интерьер с мужским характером в стиле Нью-Йорк. Обилие глянца, неожиданные контрасты, интересные дизайнерские решения.

Спокойный бирюзовый
Интерьер квартиры в ЖК "Гольфстрим" (76, 5 кв.м.) разрабатывался для молодого человека-студента, чуть позже к нему с севера переедут его родители. Интерьер выглядит спокойным, все помещения объединяет графичная "тема". На кухне она проявляется в виде геометричного фартука, в спальне в виде светильников и обоев, в ванной и санузле в ярких фасадах и плитке.

Добавьте цвета
Двухкомнатная квартира для молодой семьи. Интерьер получился бюджетным, позитивным и очень ярким.

Хорошее настроение
Интерьер однокомнатной квартиры (46 кв.м.) для девушки-студентки выполнен в скандинавском стиле. Для юной хозяйки очень была важна экологичность, которая играет в скандинавском стиле главенствующую роль. Квартира получилась лаконичной, изящной и легкой и "с настроением". Думаем, что такой интерьер вдохновит девушку на победы.

Шале с морским характером
Заказчики хотели, чтобы в их гостевом доме царила атмосфера старинного корабля. В интерьере много морских деталей, например, канаты, весла, деревянная обшивка. На первом этаже можно с комфортом отдыхать всей семьей, на втором - скорее в мужской компании.

Home sweet home
Заказчики хотели, чтобы интерьер дома (217 кв.м.) не относился ни к одному из стилей, а был индивидуальным. Так получился оригинальный интерьер, в котором элементы кантри соседствуют с элементами прованса, лофт с классикой, а современный стиль с шале. Заказчики не боялись экспериментировать, поэтому дом получился ярким и красочным.

Звездная квартира
В этой квартире (53 кв.м.) профессиональная спортсменка будет отдыхать и проводить время с друзьями в свободное от разъездов время. Хозяйка квартиры не побоялась добавить в интерьер цвета, поэтому каждое помещение получилось индивидуальным и ярким. При этом цвет применяется по-разному. Где-то это яркий потолок с бледными стенами, а где-то - радуга из плитки.

50 оттенков серого
Двухкомнатная квартира (64, 4 кв.м) для молодой девушки-студентки. В квартире можно выделить две зоны - зона готовки и общения с друзьями (кухня) и личное пространство (спальня и гардеробная).

Бетон и глянец. Квартира для двоих
Супружеская пара заказала дизайн-проект однокомнатной квартиры (47,7 кв.м.), основными задачами которого было создать спокойное и гармоничное пространство, на котором будет размещено все необходимое. Разместить все необходимое, а именно зону спальни, гостиной, кухни, столовой, а также много мест для хранения позволила грамотная планировка. А вот спокойствия дизайнеры достигли неожиданно - за счет игры контрастов бетона и глянца, дерева и зеркал, белого и черного.

Оникс
Интерьер однокомнатной квартиры площадью 49 кв.м. получился легким и светлым, благодаря обилию зеркал, подсветки, а также глянцевых и полированных поверхностей. Оригинальные текстуры, продуманный свет, красивые цвета делают интерьер лаконичным и легким. Основная идея заключается в том, чтобы создать интерьер, который, спустя годы, не надоест. Мы создали самодостаточный фон, который в разные периоды жизни заказчица сможет дополнять декором разных цветов и таким образом привносить в дом новое настроение. При этом она получит массу эмоций от творческого процесса и от результата.

Два в одном
«Два в одном» - это легкий и свежий интерьер в стиле европейская классика. В результате перепланировки, мы объединили две квартиры в одну. Комнату и кухню однокомнатной квартиры мы превратили в комнату дочери, а в трехкомнатной квартире за счет пространства коридора расширили гостиную.
Гостиная и коридор плавно перетекают друг в друга, при этом гостиная комната не смотрится проходной. Комната выполнена в голубых тонах, но смотрится очень уютно за счет использования дерева и розовых акцентов. Комната дочери получилась очень милой, благодаря использованию большого количества декора. Грамотное использование сразу трех видов обоев помогло выделить зоны отдыха, учебы и гардероба.
Комнату сыну делали «на вырост», именно поэтому отдали предпочтение универсальной морской теме. Обои с маяком, кровать, обмотанная канатом, рамы на стенах.
Потолок в спальне и рамки с картой Парижа на стене спальни делают ее похожей на парижскую квартиру. Основой интерьера стали обои с цветами и персиковый текстиль.

Белый, пушистый, свежий
Трехкомнатная квартира (69, 5 кв.м.) в Екатеринбурге (ЖК Крыловъ) для творческой семьи из трех человек. Для дизайнера важно было предусмотреть как личное пространство для каждого, так и место, где вся семья сможет проводить время вместе. Так в квартире появилась просторная и "мягкая" кухня- гостиная с кудрявыми табуретами и овечками на стене, а также уютная и романтичная спальня и оригинальная детская. Интерьер получился легким и свежим, в нем много интересных деталей и оригинальных идей.

Атмосфера праздника
Четырехкомнатная квартира (179,5 кв.м.) в Верхней Пышме появилась после объединения однокомнатной и трехкомнатной. Маленькую квартиру превратили в огромную спальню с гардеробом и санузлом, а в большой выделили зону для гостей (кухня, холл, гостиная, гостевая), а также детскую с ванной. Заказчики хотели праздничный интерьер, в котором будут использованы качественные и дорогие материалы. Дизайнеры предложили создать атмосферу блеска при помощи глянцевых поверхностей, богатого освещения, обилия зеркал и предметов "под золото". Интерьер получился красивым и светлым, 3-метровые потолки поддерживают идею торжественности.

Безупречный вкус
Этот проект доказывает, что при наличии чувства стиля и хорошего вкуса можно создать очень элегантный интерьер даже при ограниченном бюджете. Идея квартиры для молодой девушки заключается в сочетании классических и современных элементов. Сама по себе квартира небольшая (43 кв.м.). Ванную мы увеличили за счет узкого длинного коридора, объединили гостиную и кухню и выделили в этом пространстве спальную зону, закрытую раздвижными перегородками.

Concrete
Однокомнатная квартира (47 кв.м.) для мужчины в стиле лофт. Выбор стиля обусловлен не только предпочтениями заказчика, но и геометрией пространства. Бетон на стенах, кирпич, яркие детали, открытая проводка - все это делает квартиру интересной и неповторимой и позволяет зрительно расширить пространство. Бетонные стены и потолки и яркие детали сбивают с толку и отвлекают от сложной геометрии, а открытая проводка позволила не опускать потолки. Освещение и мебель выбраны очень функциональные. Светильники использованы преимущественно встроенные и накладные, что экономит пространство. В интерьере есть эффектные детали, например, трубы в ванной, покрашенные в красный цвет, или столик из палеты, сделанный своими руками.

Квартира на Московской
Проект трехкомнатной квартиры в стиле минимализм с элементами эко-дизайна мы разрабатывали для молодой гостеприимной семьи. В интерьере использовано много натуральных элементов: деревянные панели и паркет, песочные цвета, акценты в виде зеленого, желтого и травяного цветов, панели из мха. Дизайнеры хорошо поработали над планировкой. Несмотря на то, что в квартире нет помещений правильной прямоугольной формы, и между гостиной и кухней стоит большой опорный столб, мы грамотно расположили мебель и выделили в гостиной столовую зону. Также после перепланировки появились две гардеробные: одна в спальне, а другая вместо нефункционального коридора.

Гжель
В небольшой квартире в Екатеринбурге (48 кв.м.) дизайнеры разместили все необходимое для жизни молодой пары. После грамотной перепланировки удалось выделить гостиную, кухню, рабочую зону, столовую, спальню, санузел, прихожую с вместительным шкафом и гардероб. Интерьер получился очень уютным и смелым. Яркие цвета здесь сочетаются с классическими элементами, что делает особенным. Стиль можно обозначить как классика в современной интерпретации.

Мятное гнездышко
Интерьер квартиры (179, 5 кв.м) в таунхаусе в Тюмени разработан для счастливой жизни дружной семьи. Дизайнеры создали гармоничное пространство, в котором хочется проводить время с семьей, квартира получилась очень уютной и теплой. Помещение разделено на зоны, но все равно смотрится единым, комнаты словно перетекают одна в другую. В интерьере преобладают нежные свежие цвета, есть сочетания бирюзовых, белых, молочных оттенков с контрастными акцентами. В доме есть гостиная, кухня с зоной столовой, домашний кинотеатр, две детские, комната для игр, детский санузел.

Квартира с историей
Перед нами стояла задача разработать дизайн-проект квартиры в стиле поп-арт для творческой девушки. Особенность проекта в том, что квартира находится в доме 1928 года постройки, и дизайнеры решили подчеркнуть этот факт. Так в интерьере появился кирпич на стене и доска на полу.
Хозяйка старинной квартиры - молодая яркая девушка, которая очень любит проводить время с друзьями. Именно поэтому в доме можно выделить зону тусовок (гостиная и кухня) и зону отдыха (спальня и гардероб). Квартира смотрится очень современной и стильной за счет необычного сочетания цветов и темы поп-арт.

Баня в стиле шале
Желание Заказчицы сделать баню в стиле шале очень обрадовало нас, ведь это очень атмосферный стиль, который еще и отлично вписывается в общую стилистику поселка "Финский залив".
В интерьере бани мы решили оставить деревянные стены, только немного подчеркнуть их текстуру за счет тонирования. Атмосферу в помещения вносит интересный декор: состаренные лыжи на стене, пни-столы, торшер, зеркала с деревом, спилы деревьев на стенах, панно с изразцами. Интерьер строится на традиционных для шале цветах: красном, зеленом, черном и сером.

Лаконичная элегантность - фото
Новый интерьер дома по-настоящему изменил жизнь нашей заказчицы и ее троих детей. Женщина признается, что просто обожает свой интерьер и любуется им «при лунном и дневном свете».
Интерьер кухни построен на контрасте черного и белого цветов. Интересно смотрится декоративный прием - зеркальная стена. Визуально она похожа на окно, поэтому расширяет пространство и придает ему некую торжественность.
Ванная зрительно разделена на две части. Здесь используется перевернутая композиция: верх выполнен в черном цвете, низ – в белом. Это расширяет пространство, как и примем с плиткой, переходящей с пола на стены.
В спальне выделено две зоны: место для отдыха и рабочая зона. В целом, интерьер выглядит роскошным и элегантным. Стена у изголовья, украшенная лепными элементами и молдингами, покрашена в цвет стен, за счет чего выглядит современной.
Комнату для дочек необходимо было сделать удобной для двух девочек с разницей в возрасте. Чтобы в комнате можно было одновременно отдыхать и работать, не мешая друг другу, дизайнер выделил зону отдыха и рабочую зону. Найден был компромисс и в плане цветовой гаммы. Маленькая девочка хотела цветную комнату, взрослая – черную. Дизайнер предложил покрасить комнату в темный сливовый цвет, а под потолком пустить белую полоску, и этот вариант пришелся по нраву всем! Для рабочей зоны выбрали фотообои с Микки Маусом, потому что он одинаково любим и взрослыми, и детьми.
Комната для сына выполнена в урбанистическом стиле. На стенах использован кирпич, а на стене, по просьбе самого мальчика, выполнена копия работы Бэнкси.

Геометрия цвета
2-х комнатная квартира площадью 85,45 кв.м.
Основным пожеланием семейной пары к будущему интерьеру было не использовать дерево и пушистые ковры. Заказчики видели будущий интерьер просторным, современным, функциональным, светлым и с яркими акцентами.
Глобальной перепланировки в этой квартире не предполагалось.
В квартире была большая и очень просторная спальня, а в одном из 2-х санузлов оказалось достаточно места, чтобы разместить там стиральную машину. Из минусов существующей планировки можно отметить вытянутую гостиную, колонну, а также большое количество выступов в прихожей. В результате прихожую дизайнеры всё же подвергли небольшой реконструкции: прихожая была отделена от гостиной благодаря установке перегородки, а также в прихожей убрали многочисленные выступы.
В дизайне квартиры были использованы такие современные материалы, как керамогранит, мозаика, паркетная доска. А главная идея интерьера заключается в распределении ярких акцентов на белом фоне.

Птица счастья и две собаки
Работа над дизайн-проектом дома площадью 272,9 кв. м. в поселке Рассоха была очень интересной. Хозяева дома – семья из двух человек. Смелые заказчики категорически отказались от использования в интерьере бежево-коричневых сочетаний и отдали предпочтение насыщенному зеленому, серебряному, золотому и фисташковому цветам. В итоге, у нас получился очень необычный проект в классическом и восточном стилях. Каждая комната в этом доме - настоящий шедевр

Офис в современном стиле
Для Заказчика был разработан дизайн-проект кабинета, предполагающий удобство, функциональность и вдохновение на работу.
Чтобы увеличить площадь помещения, было решено объединить кабинет с просторной лоджией, это позволило расширить пространство до 23, 5 кв.м. Благодаря этому в центре помещения расположили стол для переговоров на шесть человек, а в зоне лоджии рабочее место и небольшую зону для отдыха.
Деревянные текстуры и стеновые панели изо мха очень удачно выделяются на фоне целостной белой стены, в которой скрыты дверь и шкаф. Большое количество контрастов удачно сочетаются в интерьере, благодаря этому интерьер не выглядит скучным.

Шоколадный торт

Яблочный штрудель

Дизайн-проект хостела "Сова и Жаворонок"

Салон красоты в Академическом

Теплый прием. Фотографии реализованного проекта

Зеленая весна

Черничное настроение

Квартира на 23-м этаже
Новая жизнь типового проекта

Лаконичная элегантность

Пейсли

Виктория

Натуральные мотивы

Свежо и графично

Уютные контрасты

Зеленый чай

Frank

Белый фон для яркой жизни

Свежо и с изюминкой

Легкий лофт

Функциональный уют

Офис адвокатского бюро

Яркие акценты

Уют по-французски

Кофе с молоком





