
Закрыть
Marina Timokhina
Фото из статьи
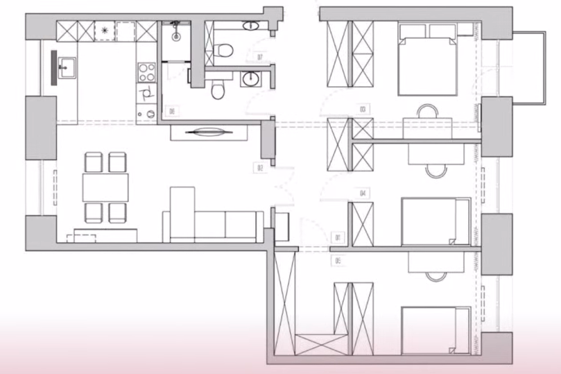
В красках лета: яркий и сочный интерьер в квартире 91 м²4,8
– 5 отзывов
Гамма
Сохранить
Закрыть

Разрешить использование cookies?
Мы используем cookies для удобства и персонализации. Подробности в Политике конфиденциальности. Согласие можно отозвать в любой момент.