Сервис

8 (495) 255 78 84
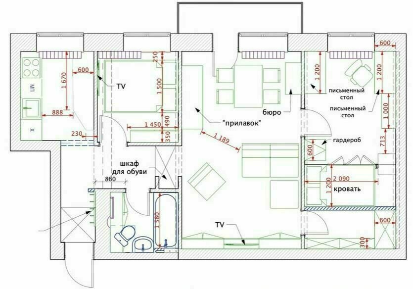
Фотография:  в стиле , Квартира, Интерьер комнат, Дизайн интерьера, Переделка, ремонт коридора, дизайн узкого коридора, декор узкого коридора, переделка хрущевки, Хрущевка, интерьер хрущевки, как обновить хрущевку, коридор в хрущевке, интерьер коридора – фото на INMYROOM
Закрыть
Софья Устинова
Журналист
4,2
– 22 отзыва
Гамма
Сохранить
Закрыть
Информация