
Закрыть
Marina Timokhina
Фото из статьи
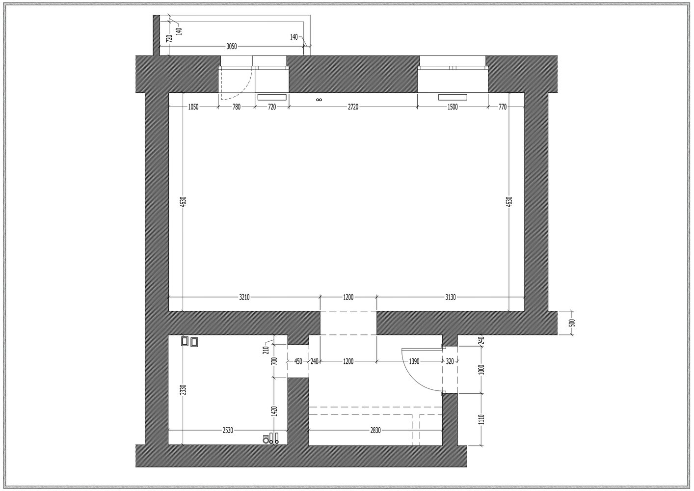
Двушка 48 м² в сталинке, где мебель с «Авито» и черновые материалы стали частью дизайнаДизайн
Петр Григораш, Дарья Блаженкова
Гамма
Другие фото в этом проекте
Сохранить
Подобрать товары
Закрыть
Сервис

Разрешить использование cookies?
Мы используем cookies для удобства и персонализации. Подробности в Политике конфиденциальности. Согласие можно отозвать в любой момент.