Сервис

8 (800) 300 61 76
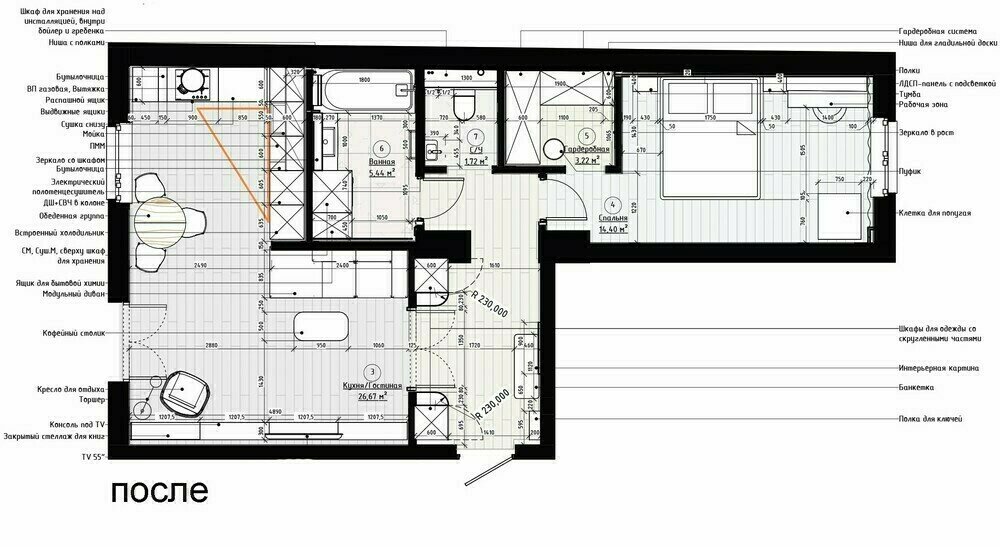
Дизайн: Юрий Воробьев
Закрыть
Элина Гусева
5,0
– 3 отзыва
Гамма
Сохранить
Закрыть
Информация