
Закрыть
Marina Timokhina
Фото из статьи
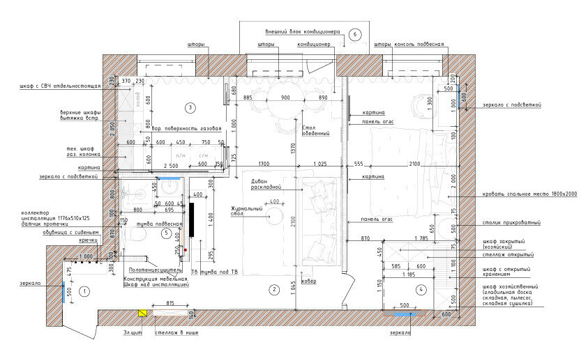
Как из «убитой» хрущевки обустроили яркую двушку 47 м²Дизайн
Полина Чернышова
4,7
– 63 отзыва
Гамма
Другие фото в этом проекте
Сохранить
Подобрать товары
Закрыть

Разрешить использование cookies?
Мы используем cookies для удобства и персонализации. Подробности в Политике конфиденциальности. Согласие можно отозвать в любой момент.