
Закрыть
Marina Timokhina
Фото из статьи
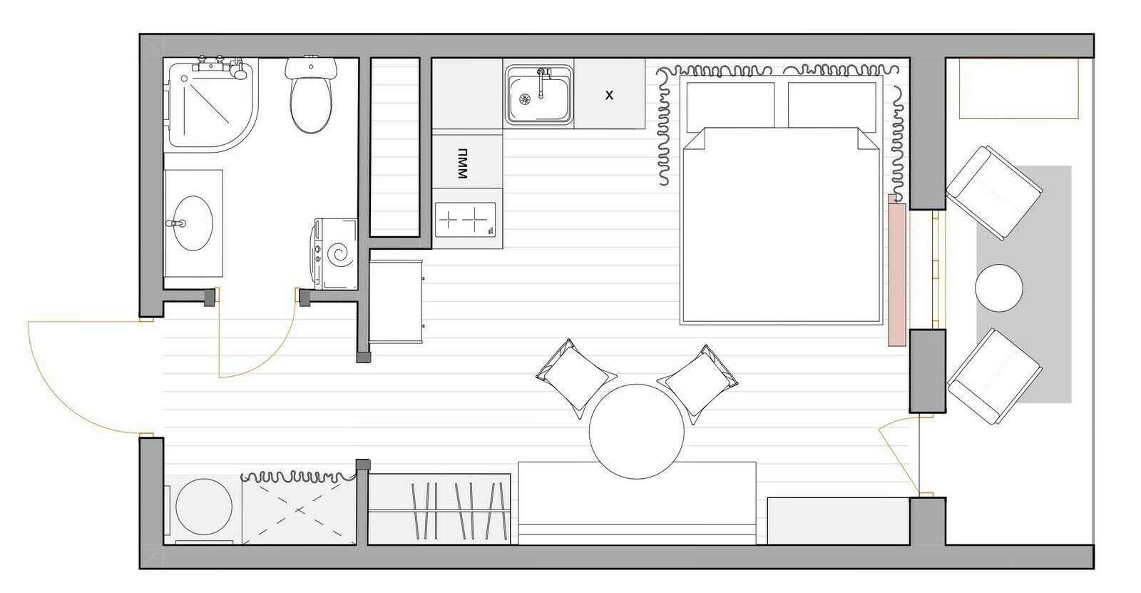
Петербургский шик и оттенки шоколада в мини-студии 24 м²Дизайн
Нина Симонова
4,4
– 30 отзывов
Гамма
Другие фото в этом проекте
Сохранить
Подобрать товары
Закрыть
Сервис

Разрешить использование cookies?
Мы используем cookies для удобства и персонализации. Подробности в Политике конфиденциальности. Согласие можно отозвать в любой момент.