Сервис

8 (495) 255 78 84
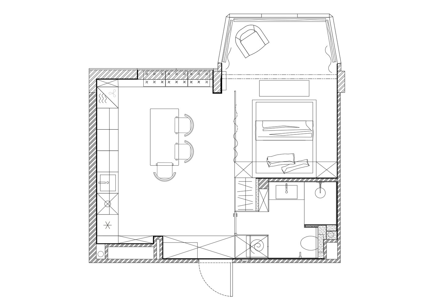
Фотография: Планировки в стиле , Малогабаритная квартира, Квартира, Проект дня, Санкт-Петербург, 1 комната, до 40 метров, Анна Луцкевич, современный с элементами минимализма – фото на INMYROOM
Закрыть
Marina Timokhina
Дизайн
4,0
– 19 отзывов
Гамма
Другие фото в этом проекте
Сохранить
Подобрать товары
Закрыть
Информация