
Закрыть
Marina Timokhina
Фото из статьи
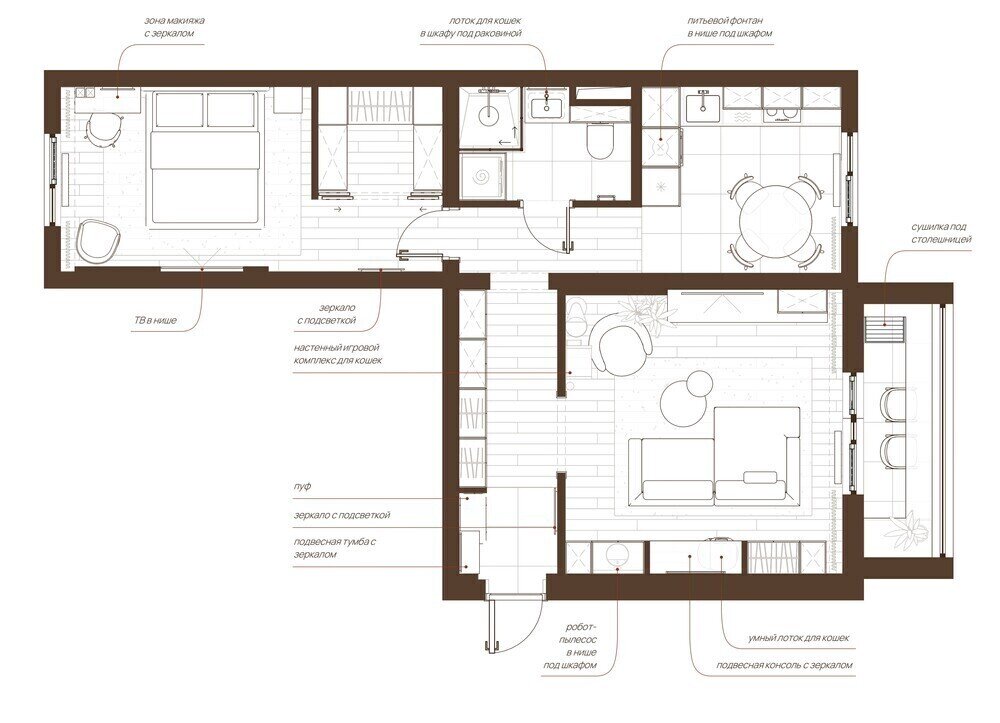
До и после: редизайн кухни в двушке 61 м² от застройщика4,8
– 8 отзывов
Гамма
Сохранить
Закрыть
Сервис

Разрешить использование cookies?
Мы используем cookies для удобства и персонализации. Подробности в Политике конфиденциальности. Согласие можно отозвать в любой момент.