Сервис

8 (391) 216 78 77
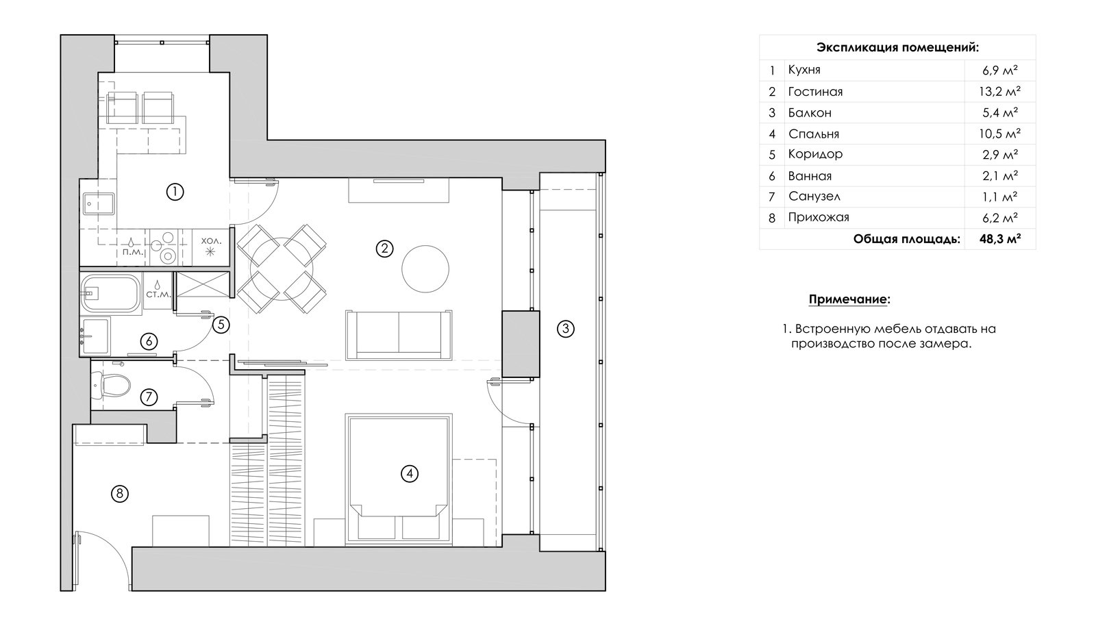
Фотография: Планировки в стиле , Эклектика, Квартира, Eames, Белый, Минимализм, Проект недели, Москва, Бежевый, Перегородка, Коричневый, Барная стойка, ИКЕА, маленькая гостиная, идеи для маленькой гостиной, перепланировка двухкомнатной квартиры, идеи для маленькой кухни, Eijffinger, Kerama Marazzi, спальня-гостиная, перепланировка двушки, маленькая кухня, идеи планировки маленькой кухни, Lussole, малометражная кухня, планировка маленькой кухни, Khroma, Odeon, барная стойка на кухне, дизайн маленькой комнаты, Favourite, Egger, Территория кухни, Anderssen, Наталья Сытенкова, дом серии II-29, Армата – фото на INMYROOM
Закрыть
Сохранить
Подобрать товары
Закрыть
Информация