Сервис

8 (800) 300 61 76
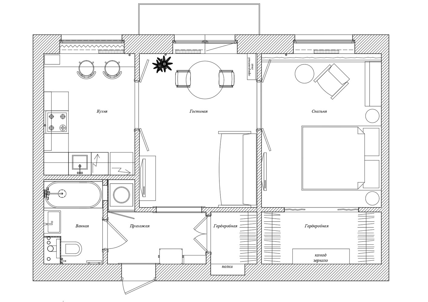
Фотография: Планировки в стиле , Современный, Квартира, Проект дня, Санкт-Петербург, 2 комнаты, 40-60 метров, Винтажный, Александра Якушенко – фото на INMYROOM
Закрыть
Marina Timokhina
Дизайн
4,5
– 26 отзывов
Гамма
Другие фото в этом проекте
Сохранить
Подобрать товары
Закрыть
Информация