Вкратце
Для заказчиков, унаследовавших эту квартиру, было важно сохранить атмосферу уюта и теплоты, присущую семье, которая жила здесь многие годы. Задача дизайнера Александры Якушенко заключалась в бережном обновлении пространства: технически необходимо было заменить все, сохранив душевность и ощущение родного дома.
Подробности
Дом на Свердловской набережной, где находится квартира, включен в список объектов культурного наследия, являясь примером сложившейся ансамблевой застройки Петербурга. Выверенные пропорции зданий, уютные «итальянские дворики» и гранитная набережная с видом на Смольный собор узнаваемы по старым открыткам и путеводителям по Ленинграду.
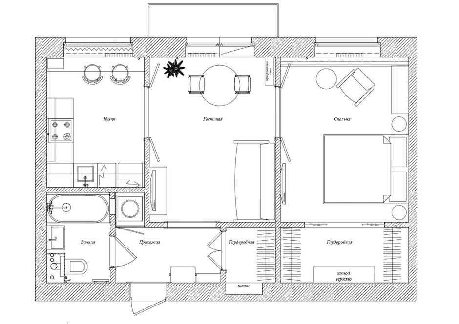
В «типовой двушке» площадью 49 кв. м стояла задача максимально эффективно использовать пространство. В результате перепланировки объединили ванную и туалет, создали постирочную в коридоре, а также соединили комнаты в анфиладу, организовав гардеробную в бывшем проходе. Высокие и широкие дверные проемы помогли нивелировать ощущение низкого потолка. Так квартира утратила советскую «типичность», приобретя воздушность, характерную для стиля mid-century.
Обратите внимание на видео:
«Поскольку квартира задумывалась как инвестиционный проект, я стремилась создать дизайн, сочетающий разумный бюджет и высокое качество, — делится Александра. — Однако главным приоритетом для меня всегда остается эмоциональное впечатление, которое производит готовое пространство. Мне и заказчикам было важно, чтобы в эту квартиру в итоге поселился человек, способный оценить ее по достоинству».
Отголоски советской эпохи прослеживаются в отделке, формате плитки, раскладке пола, формах дверей гардеробной и кухни. Главным же стилеобразующим элементом стала отреставрированная мебель чешской фабрики «Итон Собеслав», добытая, по семейной легенде, в советских «роковой борьбе» за дефицит и терпеливо ждавшая своего часа в коммунальной квартире.
Ярко-рыжий оттенок чешского гарнитура приглушили в сторону более спокойного ореха, отремонтировали и перетянули кресло, диван и торшер. Все эти предметы хранят дух времени и память о своих хозяевах и перейдут к будущим поколениям, поскольку красивы, добротны и натуральны.
Кухня была изготовлена на заказ в стиле советской эпохи. Верхние ящики расположены только по одной стене, чтобы сохранить «воздух». Технику выбрали современную, но с отсылками к стилистике mid-century: варочная поверхность и духовой шкаф с латунной фурнитурой, холодильник необычного оттенка, сочетающегося с синими фасадами кухни. Кухня выполнена из недорогих материалов, но благодаря цветовому решению и ручкам, она обрела шарм.
В спальне организовано функциональное пространство с местом для чтения и большой гардеробной, которую закрывает графичная штора. Даже когда она открыта, видна не одежда, а комод с зеркалом. Прикроватный столик-сова из индонезийского магазина кажется немного противоречивым, но именно такие вещи создают в интерьере живой диалог разных культур и времен и отлично вписываются в общую концепцию.
Вход в гостиную, так же как и входная дверь, оформлен порталом, что придает ему парадности. За счет попадания естественного света и зеркальных дверей в гардеробную, прихожая растворяется в своих размерах, становится визуально очень просторной.
Отдав дань прошлому и сохранив все лучшее, в проект были интегрированы и достижения современности: стиральная и посудомоечная машины, кухонная техника, бойлер, кондиционер, видеодомофон, телевизор и современное освещение. Все это потребовало замены коммуникаций, установки датчиков протечек и прочих технических деталей, обеспечивающих современный комфорт. Таким образом, проект стал философским осмыслением жизни как бесконечного процесса сохранения и привнесения нового.
Бренды, представленные в проекте
Напольное покрытие: кварцвинил, Vinilam; плитка, Vives
Сантехника: унитаз, Am.Pm; ванна, Marka; смесители, IDDIS
Освещение: Arte Lamp; Odeon Light; Kink Light
Хотите, чтобы ваш проект был опубликован на INMYROOM? Присылайте фотографии интерьера на wow@inmyroom.ru.















