
Закрыть
Marina Timokhina
Фото из статьи
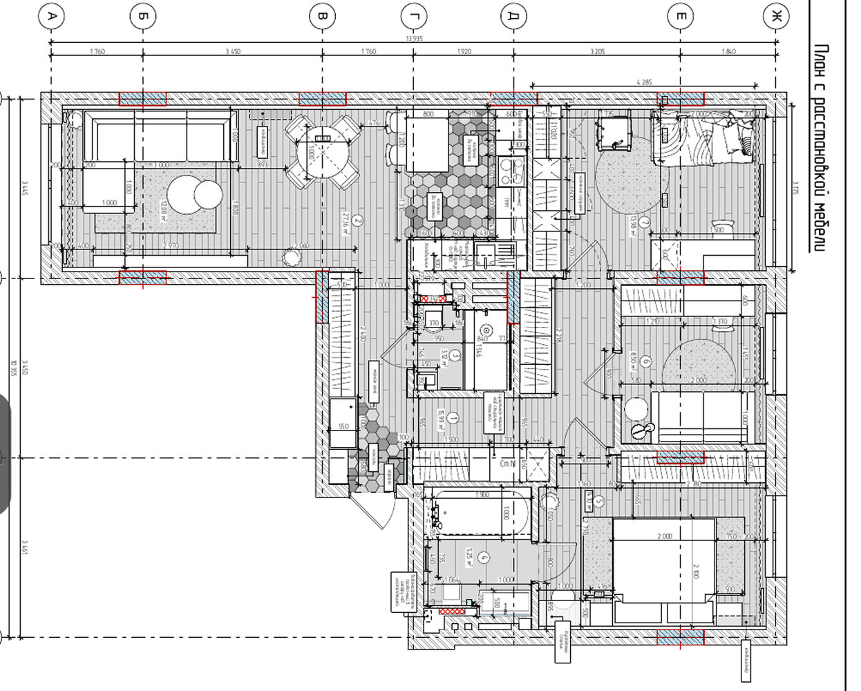
Микс фактур и контрастные акценты: как стильно обустроили квартиру 87 м² в НовосибирскеДизайн
Лиана Акопян
4,3
– 8 отзывов
Гамма
Другие фото в этом проекте
Сохранить
Подобрать товары
Закрыть
Сервис

Разрешить использование cookies?
Мы используем cookies для удобства и персонализации. Подробности в Политике конфиденциальности. Согласие можно отозвать в любой момент.