
Закрыть
Marina Timokhina
Фото из статьи
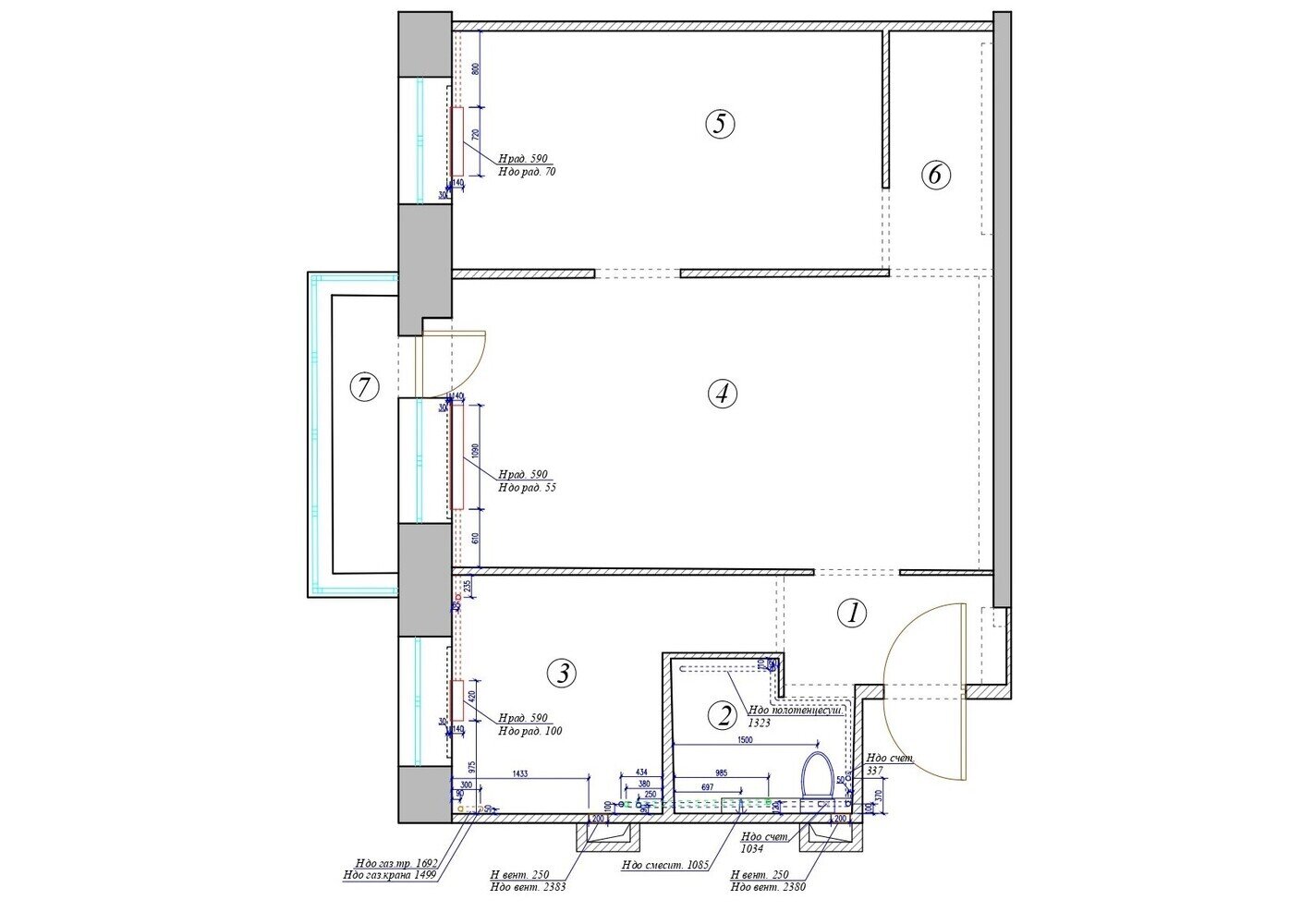
Как из обычной двушки 41 м² в хрущевке обустроили уютную квартиру с анфиладной планировкойДизайн
Анастасия Заркуа
3,5
– 2 отзыва
Гамма
Другие фото в этом проекте
Сохранить
Подобрать товары
Закрыть
Сервис

Разрешить использование cookies?
Мы используем cookies для удобства и персонализации. Подробности в Политике конфиденциальности. Согласие можно отозвать в любой момент.