Сервис

8 (843) 211 97 99
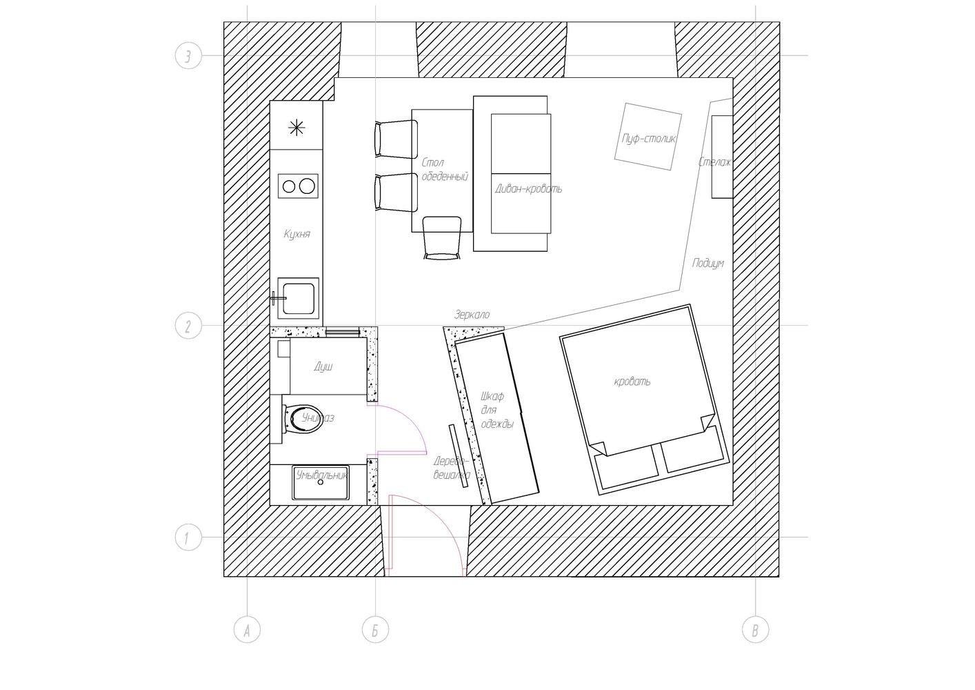
Фотография: Планировки в стиле , Лофт, Студия, Проект недели, Москва, Александр Феськов, Кирпичный дом, до 40 метров – фото на INMYROOM
Закрыть
Сохранить
Подобрать товары
Закрыть
Информация