Сервис

8 (383) 285 53 03
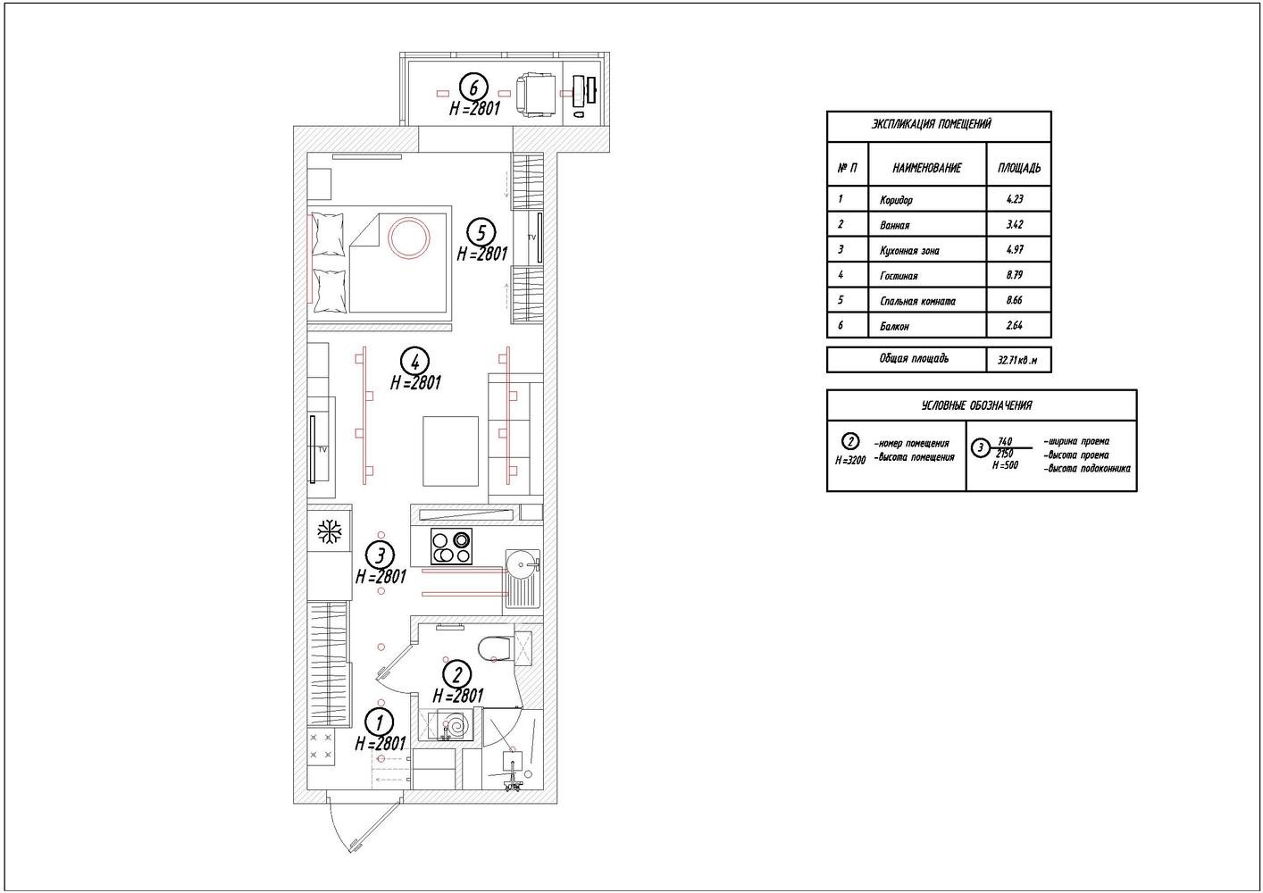
Фотография: Планировки в стиле , Современный, Квартира, Студия, Проект недели, Московская область, Иванна Дегтяренко, новостройка, Монолитный дом, до 40 метров – фото на INMYROOM
Закрыть
Ирина Собыленская
Дизайнер интерьера
5,0
– 2 отзыва
Гамма
Другие фото в этом проекте
Сохранить
Подобрать товары
Закрыть
Информация