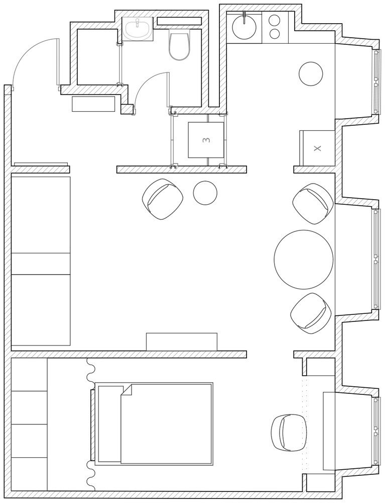
Фотография: Планировки в стиле , Квартира, Проект недели, 2 комнаты, до 40 метров – фото на INMYROOM
Закрыть
Сохранить
Подобрать товары
Закрыть
Информация