Сервис

8 (800) 300 61 76
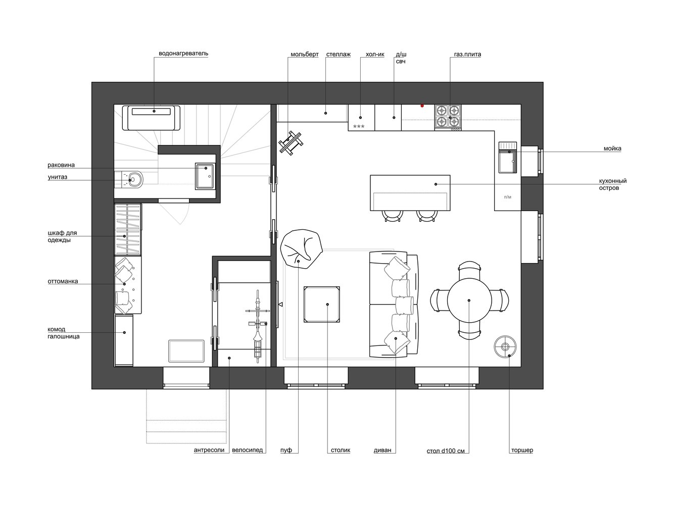
Фотография: Планировки в стиле , Современный, Дом, Проект недели, Дом и дача, Московская область, кухня-гостиная дизайн, Студия 3.14, Таунхаус, Тимур Абдрахманов, Борис Комаровский, Ирина Леготкина, таунхаус с мансардой – фото на INMYROOM
Закрыть
Ирина Собыленская
Дизайнер интерьера
4,8
– 5 отзывов
Гамма
Другие фото в этом проекте
Сохранить
Подобрать товары
Закрыть
Информация