Сервис

8 (843) 211 97 99
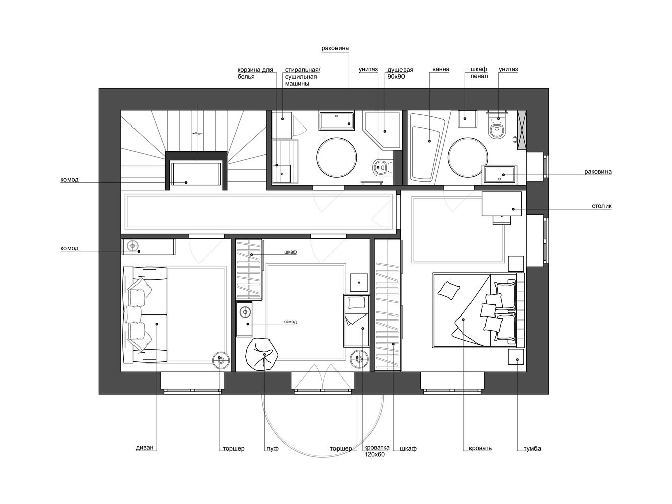
Фотография: Планировки в стиле , Современный, Дом, Проект недели, Дом и дача, Московская область, кухня-гостиная дизайн, Студия 3.14, Таунхаус, Тимур Абдрахманов, Борис Комаровский, Ирина Леготкина, таунхаус с мансардой – фото на INMYROOM
Закрыть
Ирина Собыленская
Дизайнер интерьера
Гамма
Другие фото в этом проекте
Похожие фотографии
Сохранить
Подобрать товары
Закрыть
Информация