
Закрыть
Adelia Khmelevskaya
Менеджмент в индустрии
Фото из статьи
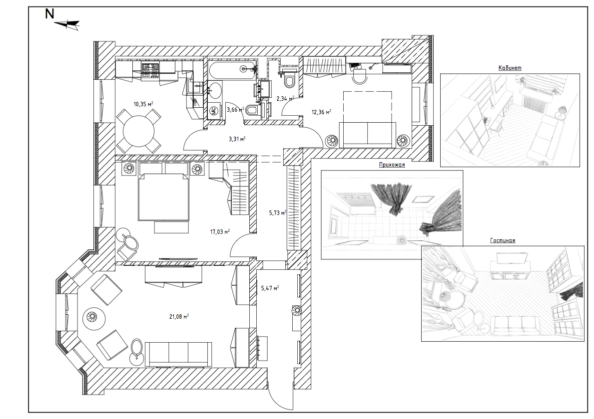
Трешка в старом кирпичном доме: проект в Москве4,7
– 15 отзывов
Гамма
Другие фото в этом проекте
Сохранить
Закрыть
Сервис

Разрешить использование cookies?
Мы используем cookies для удобства и персонализации. Подробности в Политике конфиденциальности. Согласие можно отозвать в любой момент.