Сервис

8 (800) 300 61 76
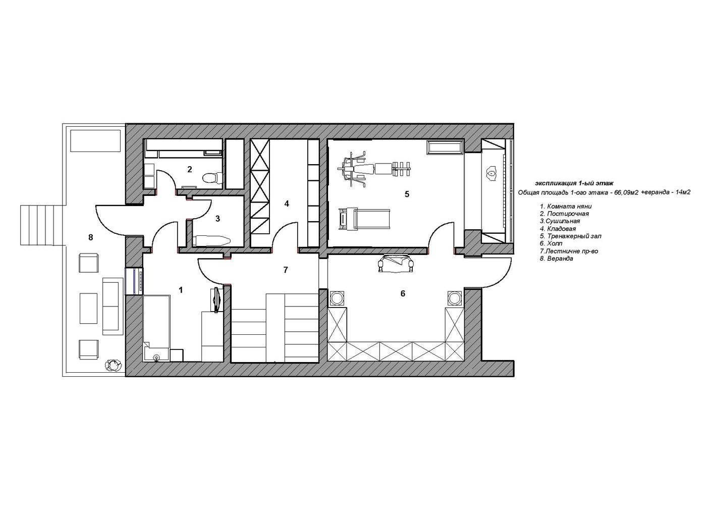
План с расстановкой мебели, 1 этаж
Закрыть
Сохранить
Подобрать товары
Закрыть
Информация