Сервис

8 (495) 255 78 84
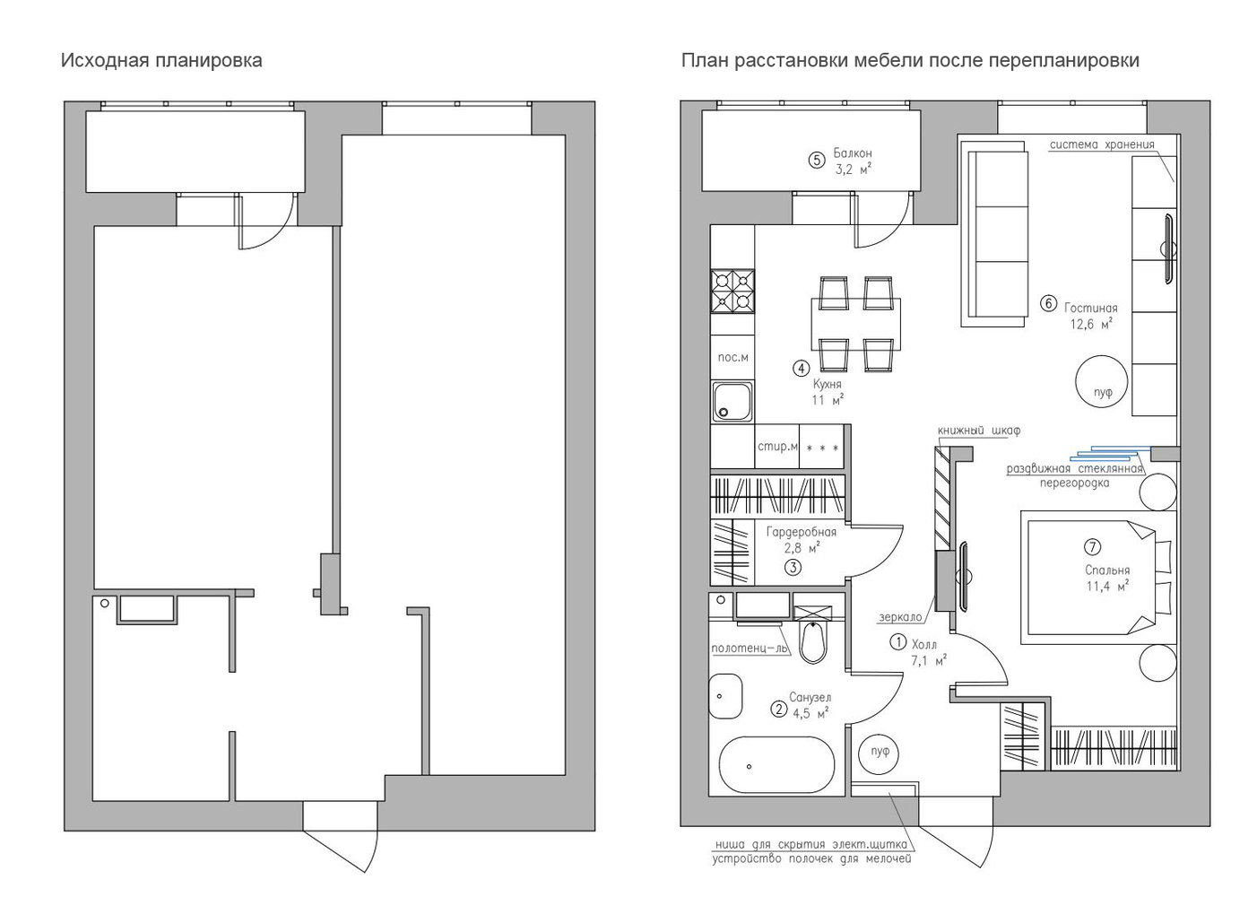
Фотография: Планировки в стиле , Современный, Квартира, Студия, Проект недели, Новая Москва, Монолитный дом, 40-60 метров, Лена Логинова – фото на INMYROOM
Закрыть
Ирина Собыленская
Дизайнер интерьера
5,0
– 2 отзыва
Гамма
Другие фото в этом проекте
Сохранить
Подобрать товары
Закрыть
Информация