
Закрыть
Mariya Stepanova
Журналист
Фото из статьи
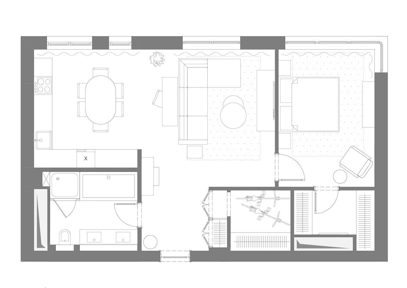
Светлая квартира без шкафов в Сколкове5,0
– 1 отзыв
Гамма
Другие фото в этом проекте
Сохранить
Подобрать товары
Закрыть
Сервис

Разрешить использование cookies?
Мы используем cookies для удобства и персонализации. Подробности в Политике конфиденциальности. Согласие можно отозвать в любой момент.